一个家庭和灵活的工作空间。Quadro的总部是一家年轻而有活力的水龙头公司,它的重新设计是通过改造房间和将品牌的特殊性转移到室内设计中来的。 Quadro的创新方法体现在选择将高贵的材料与基本的、典型的、永恒的设计相结合。同时,该项目使用简单、纯粹的体量和由天然材料和中性、温暖的颜色组成的调色板。
A domestic and flexible workspace. The restyling of Quadro’s headquarters, a young and dynamic tap-ware company, was conceived by remodeling the rooms and transferring the brand's peculiarities into the interior design. Quadro's innovative approach manifests itself in the choice of combining noble materials with an essential, archetypal, timeless design. At the same time, the project uses simple, pure volumes and a palette composed of natural materials and neutral, warm colors.




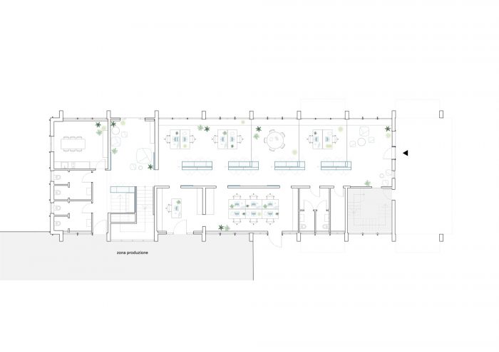
底层在视觉上呈现为一个统一的空间,打破了典型的走廊-办公室组织。一连串的玻璃墙和四棵桦树的存在模糊了这种分离,使自然光侵入空间。
The ground floor is presented as a visually unified space, breaking up the typical corridor-office organization. A sequence of glass walls and the presence of four birch volumes blur this separation and allow natural light to invade the space.

除了作为一个容器,这些元素给了房间一个层次,并允许他们通过集成的滑动墙进行分离。需要更多隐私的办公室,以及员工厕所和服务器室,被放置在入口和通往一楼的楼梯之间的南部服务地带。
As well as acting as a container, these elements give the rooms a hierarchy and allow them to be separated through integrated sliding walls. The offices, that required more privacy, as well as the employee toilets and the server room, have been placed in the southern service strip between the entrance and the staircase to the first floor.


在上楼之前,在更衣室和茶水间附近,有一个非正式的休闲区;一个桦木体量被插入地板下的区域,以管理生产和管理区域之间的分离,并伴随着访客到上层的空间。在作为公司陈列室的大型开放空间内,产品展示成为主角。
Before going up to the upper floor, near the changing rooms and the refreshment room, there is an informal relaxation area; a birch wood volume is inserted in the under-floor area to manage the separation between the production and management areas and accompanies the visitor to the spaces on the upper floor. Inside the large open space that serves as the company showroom, the product display becomes the protagonist.

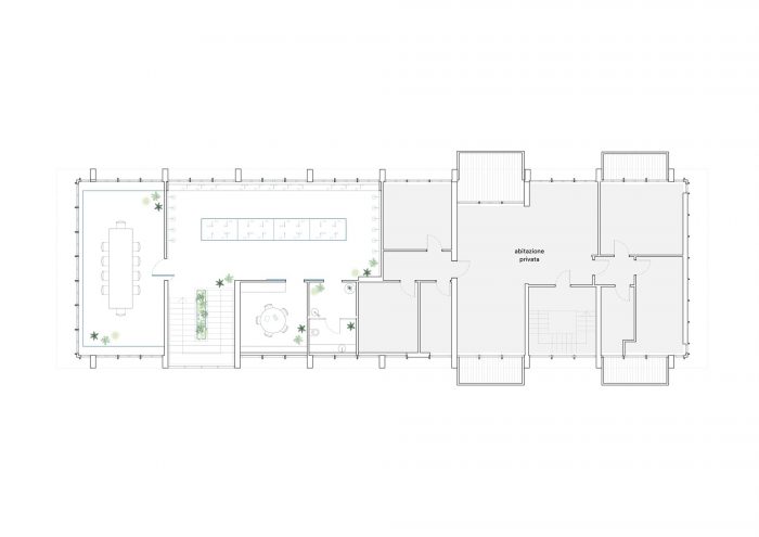
该布局的设计是为了以一种灵活和容易改造的方式展示所有的系列:构成空间背景的墙壁上覆盖着有规律的孔洞图案的面板,而在空间的中心是四张桦木桌子,其顶部被分成可替换的面板。 在天花板上,一个灯光的基础设施确保了每个设置的合适照明。
The layout has been designed to display all the collections in a flexible and easily remodeled manner: the walls that form the backdrop to the space are covered with panels with a regular pattern of holes, while in the center of the space are four birch tables with tops divided into interchangeable panels. On the ceiling, an infrastructure of light ensures suitable lighting for each set-up.

会议室的特点是三面都有连续的窗户,由桦木镶板强调,在短边上,桦木镶板有了身体,成为一个容器元素;在空间的中心是一个黑色Fenix的大型雕塑般的会议桌。自然光通过一个带有可调节垂直带的百叶窗系统进行管理,可以在整个工作日内对照明进行完美的调节。
The meeting room is characterized by continuous windows on three sides, emphasized by birch wood paneling which, on the short sides, takes on the body and becomes a container element; in the center of the space is a large, sculptural meeting table in black Fenix. Natural light has been managed with a system of blinds with adjustable vertical bands that allow perfect regulation of the lighting throughout the working day.
























Architects: studio wok
Area : 370 m²
Year : 2022
Photographs :Marcello Mariana
Manufacturers : HAY, Miniforms, FLOS, Manerba
Collaborators : Federica Torri
Client : Quadro srl
Bespoke Joinery : Fioroni Design, Ardenno (SO)
City : San Maurizio d'Opaglio
Country : Italy