QUAN位于台湾的三重鼎炉工业区。它是台湾常见的典型的街道房屋。它与周围的环境有着相同的暴力和不规范的建筑形式,如铁盖和非法建筑。建筑表皮经历了长时间的使用痕迹。经过现场调查,我们发现这个区域有独特的城市背景和历史痕迹,这也触发了我们对QUAN的定位。
QUAN is located in Sanchongdingkan Industrial Zone, Taiwan. It is a typical street house commonly seen in Taiwan. It shares the same violent and unregulated architectural forms as the surrounding environment, such as iron cover and illegal construction. The building skin has experienced traces of use over time. After the site survey, we found that this area has a unique urban context and historical traces, which also triggers how we locate QUAN.



QUAN的前身是电梯轴部件的加工和制造厂。它被传承到第二代,希望进行产业转型。过去,电梯行业大多是由大型OEM工厂生产。第二代转型希望能跳出大厂的限制。期待连接电梯行业的生态圈,打造 "电梯选型店",为客户提供完全定制的电梯。
The predecessor of QUAN was the processing and manufacturing factory of elevator axle parts. It was passed down to the second generation and hoped to carry out industrial transformation. In the past, the elevator industry was mostly produced by large OEM factories. The second generation of transformation hopes to jump out of the restrictions of large factories. Looking forward to connecting the ecosystem of the elevator industry, and creating an “elevator selection store” that provides customers with fully customized elevators.



在设计和规划中,三楼的空间设置为展览、讲座、展示,电梯。 业结合艺术、设计、制造等多功能空间表演,拓展不同的客户群体和产业类型。二楼为接待、办公、会议空间,一楼为新型仓储、运输空间。
In the design and planning, the space on the third floor is set as exhibitions, lectures, and exhibitions, and the elevator. The industry combines art, design, manufacturing, and other multi-functional space performances to expand different customer groups and industrial types. The second floor is a reception, office, and meeting space, and the first floor is a new type of storage and shipping space.



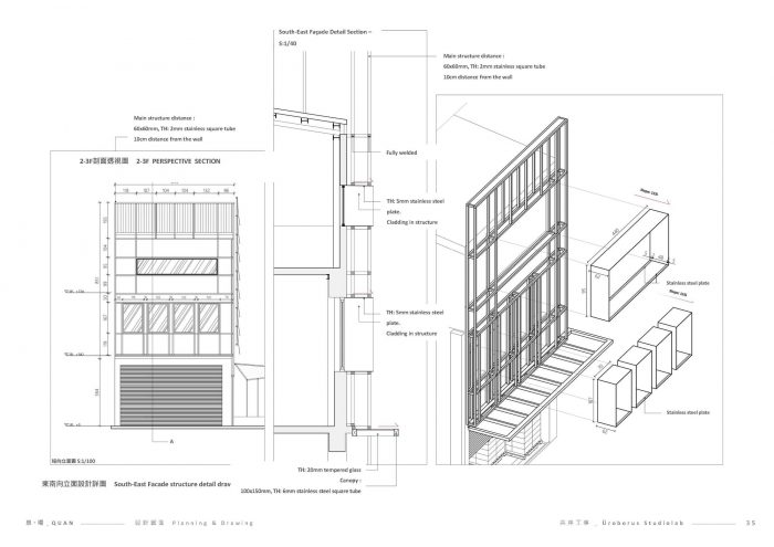
在设计团队与业主的讨论中,"新型工厂 "的概念被认为是对普通材料的解构和重新整合,并融入了当代设计和周围环境。铁顶上的蘑菇头、室外机、水塔等表示出了当地的特色,我们在建筑立面上挂上了大面积的农业上常见的兰花网布,像画布一样反映出周围的环境,并过滤掉那些过去必须要遮挡的物体,使之成为一个有框架的场景,希望不要让客人分心。巩固春天的方式。
During the discussion between the design team and the owner, the concept of a “new type factory” was taken as the deconstruction and reintegration of ordinary materials and integrated into the contemporary design and the surrounding environment. The mushroom head, outdoor unit, and water tower on the iron roof stated out of the local characteristics, we hung a large area of orchid mesh cloth, which is common in agriculture, on the façade of the building, reflecting the surrounding environment like a canvas, and filtering those objects that had to be covered in the past, making it a framed scene, hoping to not distract the guest. Way to strengthen the spring.


场的地方个性。使工厂不再只是工厂,而是与周围环境对话,连接地方,创造一个新型的工业区生活场所。建筑的内部和外部用薄而透明的材料稍作隔离,从而形成两个观察角度。
The local personality of the field. Make factories no longer just factories, but dialogue with the surrounding environment, connect places and create a new type of industrial area living place. The interior and exterior of the building are slightly isolated with thin and transparent materials, thereby creating two viewing angles.

从内部到外部。外立面的网布解决了大面积落地窗的隐私问题。更有意思的是,站在大窗前,网布似乎对城市街景有了一层过滤,风吹雨打都会一束。光线可以成为一幅画。
From inside to outside: The mesh cloth on the exterior façade solves the privacy problem of the large floor-to-ceiling windows. What's more interesting is that standing in front of the large window, the mesh cloth seems to have a layer of filters for the urban street scene, and the wind and the rain will be a bunch. Light can become a painting.

从外面到里面。在设计上选用了具有金属光泽的银灰色兰花网布。纯净而优雅的面孔,像画布一样反映出周围的环境。长长的立面上的网布也将QUAN的原始立面变成了一个剪影,隐约地隐藏在帆布后面。它与周围的城市环境相吻合。城市的气质、气味和声音,再加上风的吹拂和网布的飘动,始终是春天。场带来了不同的外观。在短小的立面上,用铁结构来配合立面的开口,进行切割。纵横交错的线条分割与侧面街道上的电线杆和电线相呼应,加强了周围环境的效果。
From outside to inside: The silver-gray orchid mesh with metallic luster is chosen for the design. A pure and elegant face that reflects the surrounding environment like a canvas. The mesh cloth on the long façade also turns the original façade of QUAN into a silhouette, which is vaguely hidden behind the canvas. It conforms to the surrounding urban environment. Temperament, the smell, and sound of the city, plus the blowing of the wind and the floating of the mesh, are always springs. The field brings out a different look. On the short façade, the iron structure is used to match the opening of the façade to make cuts. The vertical and horizontal line segmentation echoes the telephone poles and wires on the street on the side, which strengthens the surrounding environment.

错综复杂的、充满活力的、随意的城市状态。短立面窗框的设计方法是用金属板牵引窗框来调整西面的光线。同时延伸了窗景的视觉体验,邀请周边环境进入空间,重新咀嚼属于台湾工业区的原味。
The intricate, vigorous, and casual urban state. The design method of the short façade window frame uses a metal plate to draw the window frame to adjust the light in the west. Also extends the visual experience of the window scene, invites the surrounding environment to enter the space, and re-chews the original flavor belonging to the Taiwanese industrial area.

实验性的电梯从地面到顶层,而顶层位于基地的中心,被封闭在透明的玻璃幕布中。轿厢内没有按钮,以一种新的方式重新定义了人类和电梯之间的关系。电梯周围的中性色调使电梯特别集中于空间。玻璃反映了环境,暴露了电梯部件,人们在轻型电梯中上下穿梭的垂直过程,它同时达到了展示产品/空间的效果。
The experimental elevator runs from the ground to the top floors which are in the center of the base and is enclosed in a transparent glass curtain. There is no button inside the car, redefining the relationship between humans and the elevator in a new way. Neutral color tones around the elevator allow the elevator specially focused on the space. The glass reflects the environment, exposes the elevator parts, and the vertical process of people traveling up and down in the light elevator, it achieves the effect of displaying products/space at the same time.
















Architects: Ürobrous_studiolab
Area : 530 m²
Year : 2022
Photographs :Yi-Hsien Lee and Associates YHLAA
Lead Architects : Hao-Chun Hung
Structure : COLUMBUS STRUCTURAL
Construction : WEN- HUA CONSTRUCTION / SHEN- MAO GREENHOUSE CONSTRUCTION
Design Team : Yaun- Yun Huang, Hong- Wei Huang, Chi- Yu Lai, Szu- Ying Tan, Shao- Bo Wu
Client : CHIUAN- CHENG INTERNATIONAL
Country : China