位于墨西哥金塔纳罗奥州图卢姆市的中等密度公寓楼的设计,以中高收入市场为目标,以下列前提为基础: - 在建筑规模内提高居民的社区感,在建筑方案中引入聚会场所。- 利用公寓布局中社会和私人区域之间的过渡空间和门槛,提高每个单元内的个性和隐私感 - 通过所有组成机构的构成及其规模,尽可能减少每个单元的能源消耗。- 尽可能保留和重新安置现有的植物群,同时引入新的景观,在密度和组成上与图卢姆的特有景观兼容。- 创造一个以使用该地区典型的有机材料为特点的建筑,耐候性强,老化效果好,与工业材料相结合,对于一个具有高质量设计和自身特点的商业项目来说,成本效益高。
Located in Tulum, Quintana Roo in México, the design for the medium density apartment complex, targeted to a mid to high income market, has its basis on the following premises: - Improve the sense of community among the residents inside the scale of the complex, introducing meeting places into the architectural program. - Improve the sense of individuality and privacy inside each unit, using transitional spaces and thresholds between social and private areas of the apartment layouts - Reduce the energy consumption of each unit as much as possible by the composition of all the component bodies and their scale. - Preserve and relocate as much of the present flora as possible, while introducing new landscape compatible in density and composition with the endemic landscape of Tulum. - Create a building noted by the use of organic materials typical of the region, weather resistant and that age beautifully, contraposed with industrial materials which are cost effective for a commercial project with high quality design and a character of its own.


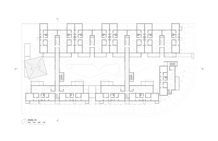
其结果是一套38套公寓,有三种配置,从2房和3房,110和220平方米不等。该项目还包括公共区域、停车场和服务区。总建筑面积为5600平方米,根据其在项目中的重要性和在3700平方米长方形地块中的位置,分布在四个不同大小的狭窄街区。两个街区有四层楼,高度为12米,从东到西贯穿整个地块,也能捕捉到自然风。第三座三层楼的建筑将短边封闭在地块的拐角处,可以俯瞰地块并将其与街对面的公园连接起来,并创造了一个通往综合体的自然通道。第四座建筑是服务设施和棕榈树,它的双倍高度可以保护项目的核心部分免受夕阳的影响,该部分被称为水和风的天井。这个大型的中央开放空间是将狭窄的街区对准周边的限制,从而实现了每个建筑之间平均16米的距离,确保了理想的视觉距离,同时也配置了一个55米长的广阔空间,游泳池就位于其中。需要指出的是,在街道上,这个宽阔的纵向空间完全可以供行人通行,这要归功于两座桥的加入,这两座桥将长长的街区连接起来,同时通过消除通道上的楼梯,使循环更有效率。最后,水和风的天井不仅是综合体的召集人和分配空间,它本身也为项目的绿色和可渗透面积贡献了20%。它是居住在这个住宅区的特殊体验的一部分,它与它所处的非凡的热带和驯化环境的关系。
The result is a set of 38 apartments in three configurations, varying from 2 and 3 bedrooms and 110 and 220 sqm. The program also includes common areas, parking lot and service areas.The total built area is 5,600 m2, distributed in four narrow blocks of different sizes, according to their importance in the program and its position in the 3,700m2 rectangular plot. Two blocks have four storyes to a height of 12m and run across the plot from east to west, also catching natural breezes. A third three-story building closes the short side towards the corner of the plot that overlooks and connects the plot with the park across the street and creates a natural access plaza to the complex. The fourth block houses the services and the palapa, whose double height protects from the setting sun from the heart of the project named the patio of water and wind. This large central open space is the result of aligning the narrow blocks to the limits of the perimeter, thus achieving an average distance of 16 meters between each building that ensures a desirable visual distance, while at the same time configuring an expansive space of 55 meters long where the swimming pool is located. It is important to point out that at the street level, this wide longitudinal space is completely free for pedestrian traffic, thanks to the addition of two bridges that join the long blocks and at the same time make circulations more efficient by eliminating flights of stairs at the access level. Finally, the patio of water and wind not only is the convener and distributor space of the complex, it also contributes in itself for 20% of the green and permeable area of the project. It is part of the particular experience of inhabiting this housing complex in its relationship with the extraordinary tropical and domesticated environment in which it is located.

就其本身而言,材料的调色板是最小的:墙面和外墙采用水泥灰泥和集成红色颜料。这种颜色的选择是由于其作为背景的光学特性,允许与植物的身体和体积形成对比。公寓的内墙是抹灰的,允许每个用户引入他们自己的调色板。有机材料是竹子,用于护栏和隐私屏风,石灰石,用于地板和浴室,以及木材,可以防潮和防虫。与之相对应的是工业材料的耐用性和结构性要求。钢、铝和钢化玻璃有三种程度的不透明度,并带有颜色的点缀。对我们来说,这个项目意味着接受挑战,用当地的组件和对场地的特殊条件的敏感性来制作商业建筑,以证明高质量的设计,用高质量的空间来衡量,反映在用户的生活质量上,是一笔好买卖。
For its part, the palette of materials is minimal: cement stucco with integrated red pigment for walls and exterior facade. This color selected for its optical qualities of being a background that allows contrast to the body and volume of the flora. The interior walls of the apartments are plastered, allowing each user to introduce a color palette of their own. The organic materials are bamboo, for guardrails and privacy screens, limestone, for floors and bathrooms, and wood, resistant to moisture and insects. In counterpoint, the industrial materials required of their durability and structural resistance: Steel, aluminum and tempered glass in three degrees of opacity with an accent of color. For us, this project meant undertaking the challenge of making commercial architecture with local components and sensitivity to the particular conditions of the site, to demonstrate that quality design, measured in quality spaces reflected in quality of life for users, is a good deal.


第三座三层楼的建筑封闭了朝向场地一角的短边,它俯瞰并连接着一个公园环形路,自然而然地成为建筑群的主要入口之一。第四块是服务设施和生活用的棕榈树,它的双重高度保护了项目中心的一个重要部分免受夕阳照射,我们称之为 "水和风的院子"。这个宽阔的中央开放空间是将狭窄的街区对准允许的周边限制的结果,从而实现了16米的平均间隔,确保了街区本身的理想视觉距离,同时也配置了一个55米长的宽阔空间,游泳池就位于此。简而言之,"水和风的庭院 "也是一个既召集又分配的中心,它本身就贡献了项目20%的绿色和可渗透面积。这是居住在这个住宅区的特殊体验的一部分,它与它所处的非凡的绿色和驯化环境的关系。装饰材料的目录是最小的。外墙和立面的水泥灰泥与集成的红色颜料。
Un tercer bloque de tres niveles cierra el lado corto hacia la esquina del terreno que mira y conecta con un parque- glorieta y de forma natural marca uno de los principales accesos al conjunto. El cuarto bloque aloja los servicios y la palapa de estar, cuya doble altura protege del sol poniente a una parte importante del corazón central del proyecto que llamamos “patio de agua y viento”. Este amplio espacio abierto central es el resultado de alinear los bloques angostos a los límites de las restricciones perimetrales permitidas, logrando así una separación promedio de 16 metros que asegura una deseable distancia visual entre los propios bloques, al mismo tiempo que configura un espacio expansivo de 55metros de longitud donde se ubica la alberca. En suma, el "patio de agua y viento" es también un centro a la vez convocante y distribuidor, que aporta en sí mismo el 20% del área verde y permeable del proyecto. Forma parte de la experiencia particular de habitar este conjunto de vivienda en su relación con el extraordinario entorno verde y domesticado en el que se ubica. Por su parte, catálogo de materiales de acabado es mínimo: Estuco de cemento con pigmento integrado rojo para muros y fachada exteriores.


选择这种颜色是因为它的光学质量,它是一种背景,可以提供景深,突出植物元素的主体和体积。对于公寓的内墙,使用了浆糊,让每个用户可以自由地引入他们自己的调色板。有机材料是栏杆和隐私屏幕的竹子,地板和浴室的石灰石,防潮和防虫的木材。与之相对应的是,工业材料补充了耐用性和结构强度的其余需求:钢、铝和钢化玻璃,有三种程度的不透明度,并有彩色的点缀。对我们来说,这个项目意味着再次接受挑战,用当地的成分和对场地的特殊条件的敏感性来制作商业建筑,以证明好的设计,以反映在用户的生活质量上的空间质量来衡量,也是好的商业。
Este color fue seleccionado por su cualidad áptica de ser un fondo que permite darle profundidad de campo y resaltar el cuerpo y volumen de los elementos vegetales. Para los muros interiores de los departamentos se usó pasta dejando la libertad que cada usuario introduzca su propia paleta de color. Los materiales orgánicos son el bambú para barandales y mamparas de privacidad, piedra caliza para los pisos y baños, maderas resistentes a la humedad e insectos. En contrapunto los materiales industriales complementan el resto de las necesidades de durabilidad y resistencia estructural: Acero, aluminio y cristal templado en tres grados de opacidad con acento de color. Para nosotros este proyecto significó acometer nuevamente el reto de hacer arquitectura comercial con componentes locales y sensibilidad a las condiciones particulares del sitio, para demostrar que el buen diseño, medido en calidad de espacios reflejado en calidad de vida para los usuarios, es también un buen negocio.





















Architects: Gabriel Konzevik, reyes rios + larraín
Area : 2300 m²
Year : 2017
Photographs :Edmund Sumner, Pim Schalkwijk
Manufacturers : URREA
Design Team : Salvador Reyes Ríos, Josefina Larraín, Gabriel Konzevik, Carlos Fleischer
Clients : Simca
Engineering : Simca
Landscape : Josefina Larraín
City : Tulum
Country : Mexico