我被邀请在法维奥斯的Quinta da Faísca,上杜罗河畔的Vinhateiro吃午饭。这种以午餐开始建筑的方式很有意思,充满了味道、气味和谈话。建筑,或者说思考建筑的行为是一种孤独的活动,但它需要友好、信息和关于将要设计的建筑物的功能和未来用户的具体知识。而且它需要时间。
I am asked to lunch at the Quinta da Faísca, Alto Douro Vinhateiro, Favaios. This way of beginning architecture with a lunch is an interesting one, and full of flavours, smells and conversation. Architecture, or the act of thinking about architecture is a solitary activity, but it requires conviviality, information and the specific knowledge about both the functions and the future users of the buildings to be designed. And it requires Time.



这是有形的信息,是吸收性的、变革性的,因此是创造性的。这个委托是继我们在米尼奥州卢罗设计和建造的一个葡萄酒厂之后的又一个委托。客户是相同的,目标是生产葡萄酒,但一切都如此不同。具体内容不同,手段也不同。但目标是相同的:创造伟大的葡萄酒,为那些寻求成为神的人提供甘露。
This is tangible information that’s absorbing, transformative and therefore creative. This commission follows on from another for a winery we designed and built in Louro, Minho. The clients are the same, the objective is to produce wine, but everything is so different. The specifics are different, as are the means. But the objective is the same: the creation of great wines, nectar for men who seek to become gods.


如同在Quinta da Casa da Torre,在Quinta da Faísca,也有历史、传统和好酒的存在。但有必要改善和扩大设施,以便生产出令人向往和赞赏的花蜜。还有就是旅游,葡萄酒带来的旅游,杜罗地区是一个接受者。
As in the Quinta da Casa da Torre, in the Quinta da Faísca there was also the presence of history, tradition and good wine. But it is necessary to improve and enlarge the facilities in order to produce nectar which is desirable and appreciated. And there is the tourism, which the Wine generates and the Douro Region is a recipient of.

现有的酒厂最近进行了翻新,并适应了新的技术和标准,但事实证明它太小了,无法发展商业活动,尤其是太小了,无法接待该地区好奇和热衷的游客。酒厂的扩建不仅仅是扩大了一个创造、储存和成熟葡萄酒的空间。在一开始,我就想用新材料建造的新形式来对比现有的建筑。这种方法对我来说很快就显得太简单了,是一种避免与现有环境和历史对抗的方式。
The existing Winery, which had recently been renovated and adapted to new technologies and standards, proved to be too small for the development of commercial activity, and in particular, too small to host the curious and keen tourists in the area. The extension of the Winery is more than the enlargement of a space where wine is created, stored and matured. At the outset I had it in mind to contrast the existing buildings with a new form built out of new materials. An approach that quickly seemed to me too easy and to be a way of avoiding confrontation with the existing context and with History.

当然,形式和材料的断裂在当代建筑中非常常见,但我认为这不应该是要采取的路线。橄榄树和石板墙被移走了,从主入口到酒厂大楼上层入口的落差被利用了。路径和入口被重新考虑了。
Certainly, the rupture of form and materiality is very common in contemporary architecture, but I considered that this should not be the route to take. Olive trees and slate walls were moved, the fall from the main entrance down to the upper level entrance to the winery building was made use of. Paths and access points were re-considered.

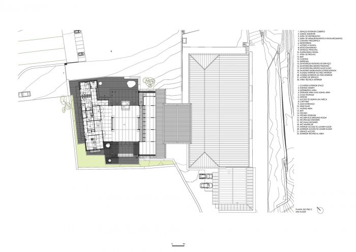
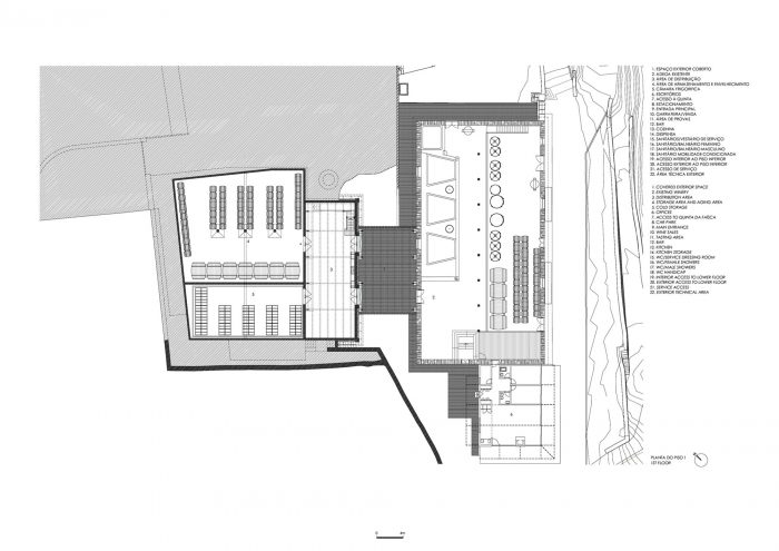
Adega da Quinta da Faísca的新体量由三个不同部分组成。
平坦的屋顶是由黑石板铺成的,所有的员工设施、浴室、商店和厨房都集中在这里。
The new volume of the Adega da Quinta da Faísca is composed of three different parts:
The flat roof volume clad in slabs of black slate, where all the staff facilities, bathrooms, stores and kitchen are concentrated.

被大屋顶覆盖的部分,(与现有的非常相似),在一楼有一个大的大厅,用于接待客人。有两个露台,一个在北边,用来接待游客,一个在南边,用来欣赏风景和连续的山脉和山谷,带我们一直到杜罗河,杜罗河塑造了他们,现在仍然如此。
The volume covered by the large roof, (which is very similar to the existing), where, on first floor level there is a big hall to host guest receptions. There are two terraces, one to the North, to receive visitors, one to the South to enjoy the landscape and the succession of mountains and valleys that takes us all the way to the Douro which shaped them and still does.

在这个大厅的下面,地下室的两个房间将容纳葡萄酒的处理和休息。在较低的层面上,并直接连接到现有的酒厂,将创建一个临时存储和分配的空间。
Below this hall, two rooms in the basement will accommodate the treatment and resting of the wine. At the lower level and attached directly to the existing winery, a space for temporary storage and distribution will be created.

第三个体量只是一个有盖的空间,它掩盖了离开酒厂和新区域之间的外部路线。它是一个开放的体量,凭借其构造和功能的轻盈性,它的目的是使酒厂能够运作并生产出优秀的葡萄酒,并且使经过这些空间的游客能够了解其工作原理,使他们的感官得到提升,从味觉到触觉,从视觉到嗅觉。
The third volume is simply a covered space that shelters the exterior route between the exiting winery and the new areas. It is an open volume, by virtue of its constructive and functional lightness It is intended that the winery should work and produce excellent wines, and that the visitors passing through the spaces can get an understanding of its workings and that they will allow their senses to be heightened, from taste to touch, from vision to smell.

结构的木材、墙壁的石板或镶边的花岗岩都不是模仿或仿造,而是对我们(葡萄牙)的建筑,特别是杜罗地区的建筑的连续性的诠释。有人说,爱的方式是通过胃。建筑的方式当然是通过头脑。如果再加上一顿好酒的午餐...那就更好了。
The timber for the structures, the slate for the walls or the granite for the edging are not mimetic or pastiche, but rather the interpretation of the continuity of what we have and know how to do in our (Portuguese), construction, in particular in the Douro Region. It is said that love’s way is through the stomach. Architecture’s way certainly is through the head. And when aided by a lunch with good wines… even better.


















Architects: Carlos Castanheira
Year : 2013
Photographs :Fernando Guerra | FG+SG
Carpentry : Carpicunha Madeira Ldª
Contractor : CMCJC Imobiliária Lda.
Mechanical : GET
Structure : HDP Gabinete de Serviços e Projectos de Engenharia Civil Lda
Electrical : Igemáci Engenharia S.A.
Hydraulic : Diâmetro & Cálculo Engenharia Lda.
Client : Sociedade Agrícola Casa do Cruzeiro S.A.
Architect In Charge : Carlos Castanheira & Clara Bastai Arqtos Lda.
Design Team : Orlando Sousa, Sérgio Barbosa
City : Favaios
Country : Portugal