这所房子既是设计师的住所,也是办公室,这一切都源于一个设计问题:"我想要什么样的房子?"作为一个设计师,必须调查屋主的需求、喜好和习惯,以获得尽可能满足客户需求的设计作品。我可以找到这个问题的答案,我喜欢带有隐藏细节的简单,朴实无华和谦逊,直到我发现了日本的 "Wabi sabi "哲学,它部分对应了我们想要设计这个房子的意义。我仍然在以有趣的方式和角度寻找 "Wabi sabi "的含义。无论是欣赏大自然的原貌之美,还是欣赏随时间变化的美,还是尽量减少不必要的东西以揭示隐藏的东西,还是利用不多余的空间来简单生活,等等。
This house serves as both the designer's residence and office, and it all started with the design question, "What kind of house do I want?" from being a designer who must investigate the homeowner's needs, preferences, and habits in order to obtain design work that meets the customer's needs as much as possible. I can find an answer to the question, and I like the simplicity with hidden details, unpretentiousness, and humility until I discovered the Japanese philosophy of "Wabi sabi," which partially corresponds to the meaning we wanted to design this house with. I'm still looking for the meaning of "Wabi sabi" in interesting ways and perspectives. Whether it is to appreciate the beauty of nature as it is, to appreciate the beauty that has changed over time, to minimize the unnecessary to reveal something hidden, to use space that is not superfluous to live simply, etc.



房子的前面被设计成退到土地最长的一面,为员工和访客提供停车位。地面的设计是用碎石而不是混凝土,以减少地面的硬度,使其看起来不像一个停车场。停车线被东侧房屋前的高大树木分割。东面的墙被设计成从外面看是实心的,以提供隐私并防止热量进入建筑。每天早晨日出时分,阳光照在墙上,投下阴影,沿墙创造出光和树的图像。住户们每天早上都会欣赏和体验那种光滑的特别抹灰的半手工墙面上的光和影。我认为影子随风或随时间移动的维度是很美的。
The front of the house is designed to recede into the land’s longest side to provide parking for employees and visitors. The floor was designed with gravel rather than concrete to reduce the hardness of the floor and make it look less like a parking lot. The parking line is divided by the tall trees in front of the house on the east side. The east wall is designed to be solid from the outside to provide privacy and prevent heat from entering the building. Sunlight shines on the walls every morning at sunrise, casting shadows and creating images of light and trees along the walls. Residents will admire and experience the light and shadow on the specially plastered, semi-handcrafted walls in that smoothness every morning. I think the dimension of shadows moving with the wind or with the time of day is beautiful.



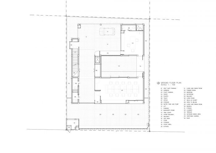
一楼有办公室和停车场。房子的中心被设计成一个向天空开放的树庭。这是办公室的主要景观,可以看到它是一个大盆景,有一条斜线将眼睛引向天空。只有在正午时分,阳光才会透过树叶,照射到下面的砾石地面。另一件我认为非常美丽的事情,只有在那个时候才能体验到,那就是这个。
There are offices and parking lots on the ground floor. The house's center was designed as a tree court that opened to the sky. This is the main view from the office, which can be seen as a large bonsai with an oblique line leading the eyes to the sky. Only during the midday hours will sunlight shine through the leaves and down to the gravel floor below. Another thing that I think is very beautiful and will only be able to experience during that time is this.



自然的风向是通过房子的后面,从后面到前面,被设计成一个风洞。住户在进入房子之前就能感受到自然风,这里的大部分居住空间都有空调。由于自然风的存在,楼梯被设计成放置在西南方向。楼梯底部的固定玻璃百叶窗可以吸收和分散进入建筑的风。
The natural wind direction is through the back of the house, which is designed as a wind tunnel from the back to the front. Residents will be able to feel the natural wind before entering the house, where most of the living space is air-conditioned. Because of the natural wind, the staircase was designed to be placed in the southwest. A fixed glass louver at the bottom of the stairs absorbs and disperses wind into the building.


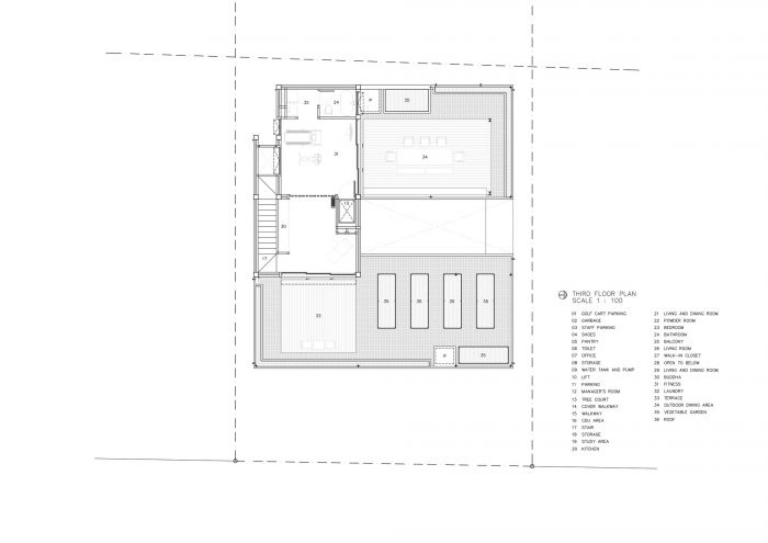
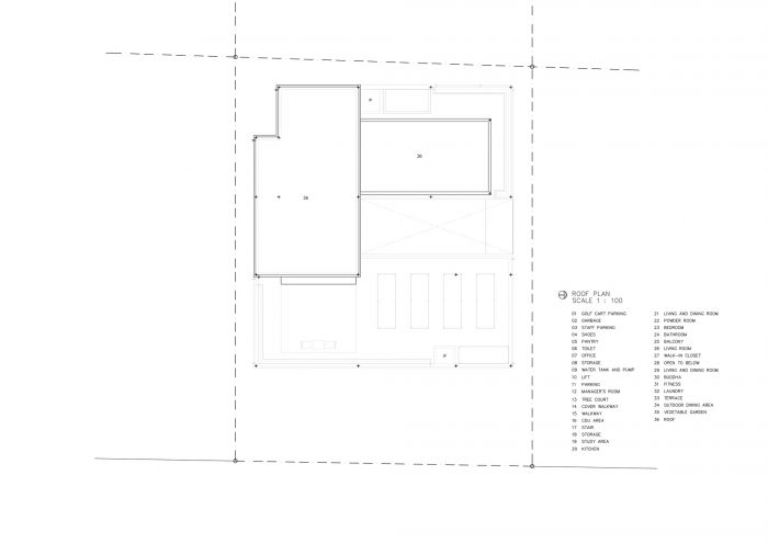
屋顶打算成为种植花园的地方,这些花园将在房子里使用。居民将有机会与自然重新联系,体验土壤,耕作,并放慢脚步。这些在城市生活中是不常见的。屋顶的另一侧被设置为户外用餐区,墙的边缘被抬高,遮住了周围环境的视野。唯一可见的是周围的天空,它根据一天中的不同时间而改变颜色。
The rooftop is intended to be a place to plant a garden that will be used in the house. Residents will have the opportunity to reconnect with nature, experience the soil, cultivate, and slow down. These are uncommon in city life. The other side of the rooftop is set up as an outdoor dining area, with the edge of the wall raised to obscure the view of the surrounding environment. The only thing visible was the surrounding sky, which changed colors depending on the time of day.



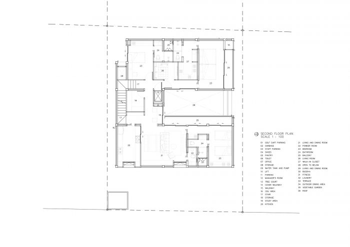
这所房子的内部设计是为了尽可能地使用最少的空间。这座房子内部的面积约为350平方米,一楼的办公区为110平方米,可容纳10名员工,还有一间经理室,可改成6人的会议室。二楼的房子有一个客厅-餐厅、厨房和三间卧室,总使用面积约为190平方米。三楼有一个50平方米的健身房和祈祷室。住宅部分有7位居民。
The interior of this house is designed to use the least amount of space possible. The area inside this house is approximately 350 square meters, with an office area of 110 square meters on the first floor, accommodating 10 employees, and a manager's room that can be converted into a meeting room for 6 people. The house on the second floor has a living-dining room, kitchen, and three bedrooms, with a total usable area of approximately 190 square meters. A 50-square-meter gym and prayer room are located on the third floor. There are 7 residents in the residential section.


一切,无论是一种生活方式,让我们简化了作为设计师或居民的身份。感知和欣赏周围环境的能力。在我们的生活中寻找意义或消除不必要的东西。这些对我探索自己的心灵是有帮助的。
Everything, whether it's a way of life that allows us to simplify our identities as designers or residents. The ability to sense and appreciate one's surroundings. Finding meaning in our lives or eliminating the unnecessary. These are helpful to me as I explore my mind.





















Architects: I Like Design Studio
Area : 550 m²
Year : 2022
Photographs :Soopakorn Srisakul
Manufacturers : Hevta Co.,Ltd., KS Wood, Sita, TOA
Structural Engineer : Kor-It Structural Design and Construction Co.,Ltd
Design Team : Narucha Kuwattanapasiri
Interior Designer : Narucha Kuwattanapasiri
Landscape Architect : Narucha Kuwattanapasiri
System Engineer : Kor-It Structural Design and Construction Co.,Ltd
City : Bang Khen
Country : Thailand