这个室内项目是为一对具有高雅品味的年轻和充满活力的夫妇开发的,目的是在位于格拉帕巴萨诺中心的一栋建筑的五楼的公寓里创造一个空间层次。
The aim of the interior project, developed for a young and dynamic couple with refined tastes, is to create a spatial hierarchy in the apartment located on the fifth floor of a building in the centre of Bassano del Grappa.





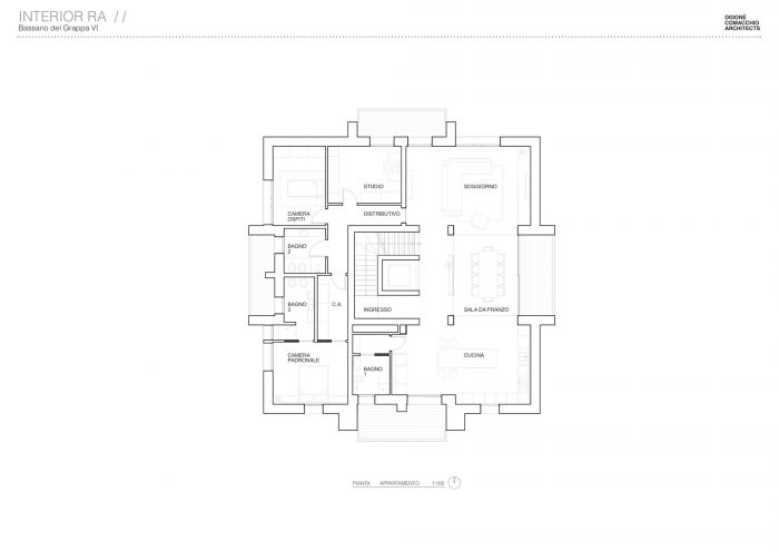
原先的空间显得很大很空旷,有一个不规则的屋顶和笨重的电梯,可以直接通向生活区。然而,该公寓受益于市中心、Monte Grappa和Asiago高原的美丽景色。
The original space appeared large and empty with an irregular roof and the bulky presence of the elevator that gives direct access to the living area. The apartment, nevertheless, benefits from beautiful views of the city centre, Monte Grappa, and Asiago’s plateau.

该公寓在功能上是合理的,使用了少量但精致的材料。起居区的两个元素调节了流线:一个木制隔板允许瞥见电梯,同时界定了入口区和餐厅及大厨房柜台的比例。后者的大小、形状和安排决定了厨房的节奏。
The apartment is functionally rationalised with the use of a few but refined materials. Two elements in the living area regulate the flow: a wooden divider allows a glimpse of the elevator while defining the entrance area and the proportions of the dining room and the large kitchen counter. The size, shape, and arrangement of the latter dictate the rhythms of the kitchen.


没有创造真正的物理障碍,这些空间显得清晰可辨。
Without creating real physical barriers, the spaces appear clear and recognizable.










Architects: Didonè Comacchio Architects
Area: 210 m²
Year: 2020
Photographs: Alberto Sinigaglia
Manufacturers: GRAPHISOFT, Linea Light Group, VitrA, Lago Design, Olev Light, Sitia, Zampieri cucine
Lead Architects: Didonè Comacchio Architects
Lighting: OLEV Light, Linea Light Group
Design Team:Didonè Comacchio Architects, Paolo Didonè, Devvy Comacchio
Collaborators:Alex Bunea
Kitchen:Zampieri Cucine, Zampieri Cucine
City:Bassano del Grappa
Country:Italy