兔子的故事,是位于曼谷的最热情和快速增长的数字营销机构之一,需要t!dtangstudio创造一个独特的办公室,给人一种现代感。首先,我们发现,这个区域是一个前两层的顶楼,被设置在空间中心的螺旋形楼梯所限制。然后我们决定利用这个楼梯来集中其余有限的空间。
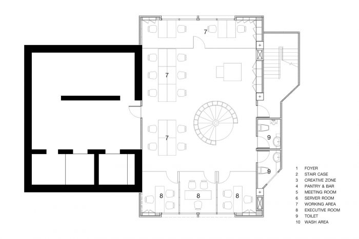
Rabbit’s Tale, one of the most enthusiastic and fast-growing digital marketing agency based in Bangkok, required t!dtangstudio to create a unique office that gives a sense of modernity. First, we figured out that the area, which is a former two-stories penthouse, is limited by the spiral stairs setting in the heart of the space. We then decided to use this staircase to centralize the rest limited space altogether.



因此,我们想出了一个灵感来自于他们公司的名字--"兔子的故事",这意味着一群喜欢创造故事的人(暗示着兔子)。也就是说,为了使这些故事成为惊人的真实,他们需要一个 "洞穴 "来作为他们自己的工作空间。
We accordingly came up with the idea inspired by their company name - ‘Rabbit’s Tale’ which means to a group of people (implying to rabbits) who love to create stories/tales. That being said, to make these tales becomes amazingly true, they therefore need a ‘burrow’ to be their own working space.

因此,从这个想法出发,我们通过将主要区域包裹在螺旋形的楼梯周围,以及将每个空间集中并连接到这个楼梯来创造这个洞穴。为了与兔子的洞穴概念保持一致,我们选择了较深的色调,并在办公室的入口处从背面照出一点照明装饰,使之成为最黑暗的氛围,如同生活在兔子的洞穴里。此外,通过在天花板上安装PAR灯,从螺旋形楼梯的顶部照射出耀眼的光线,这就像兔子洞的顶部入口一样。通过这样做,我们还使用了4x4毫米的渐变磨砂钢化玻璃,在楼梯周围创造了一个循环。
Thus, from the idea, we created the burrow by wrapping main area around the spiral stairs as well as centralizing and linking every space to this stairs. To be aligned with a rabbits’ burrow concept, we selected the darker shade with a little lighting decoration shining from the back side at the entrance of the office to make the darkest atmosphere as if living in a rabbit burrow. Also, there is a glaring light shining from the top of the spiral stairs by installing PAR lights on the ceiling which is liken to the top entrance of the burrow. By doing so, we as well used 4x4mm gradient frosted tempered glasses to create a circulation around the staircase.

另一个有趣的区域是一个创意空间,它推动了创造力,鼓励人们感到新鲜和活泼。这个空间也将成为一些休闲会议的场所。从客户的简介中,阶梯式座椅最终被选为主要的想法,因为人们可以舒适地盘腿而坐,或者按照他们喜欢的最方便的姿态躺下。我们还精心挑选了高脚桌设置在房间的角落,作为午餐和茶歇时间的空间。
Another interesting area is a creative space that drives creativity and encourages people to feel fresh and lively. This space will be a place for some casual meeting as well. From the client brief, the stepping seating was ultimately picked up as the main idea since people can comfortably sit cross-legged or lay down to the most convenient posture as they like. We also carefully selected the high table to set at the corner of the room as a space for lunch and tea break time.

在创意空间的落地书架后面,有一条兔子的动脉线藏在里面。那东西是一个服务器室,需要放在看不见的地方。 不仅如此,在大型黑色金属墙后面还有一个秘密房间。这个房间是为官方会议设计的,可以容纳6到8人,有300英寸的投影仪。
Behind floor-to-celing bookshelf of creative space, there is an arterial line of the rabbits hiding inside. That thing is a server room which needs to be kept out of sight. Not only that, but there is also another secret room behind the large black metal wall. This room was designed for official meeting purposes and can contain 6 to 8 people with 300-inch projector.

在二楼的主要工作区,有很多类似数字像素的柜子设置在楼梯的顶部。每一个方形单元都被设计成可移动的,可以安装在任何插座上,就像一件数字艺术品一样。在这个区域,我们选择了一种更明亮的颜色来创造全天的晨光,以使工人们感觉到从洞穴中跳到地面上,以及像兔子一样整天精力充沛,富有成效。
On the 2nd floor where is the main working area, there are a lot of digital pixel-like cabinets setting around the top of the staircase. Each square unit was designed to be moveable and fitted in any socket as if a digital piece of art. In this area, we selected a brighter color to create all-day morning sunlight in order to make the workers feel like jumping up from the burrow onto the ground as well as being energetic and productive just like a rabbit all day long.















Architects: tidtangstudio
Area: 260 m²
Year: 2013
Photographs: Ketsiree Wongwan
City:Bangkok
Country:THAILAND