目前,如何建造价格相对低廉但质量较高的小型公寓是住房建设中最重要的挑战之一。
The construction of small apartments that are relatively inexpensive yet still high quality is currently one of the most essential challenges in housing construction.


Ragnitzstraße 36项目通过以下方式来满足这些相互冲突的优先事项:
一个结构简单、系统化、高效设计的基础建筑结构容纳了所有的公寓。在南面,这个结构的两侧是曲折的、宽敞的阳台,而北面则有一个由膨胀金属包裹的凉棚开口。因此,该建筑的整体建筑特色是由相对廉价的建筑构件(如阳台)决定的。
The Ragnitzstraße 36 project is meeting these conflicting priorities in the following manner:
A structurally simple, systematic and efficiently designed base building structure houses all apartments. To the south, this structure is flanked by zigzag-shaped, spacious balconies, while the north side features a pergola opening encased in expanded metal. Thus, the building’s overall architectural character is defined by relatively inexpensive building components, such as the balconies.

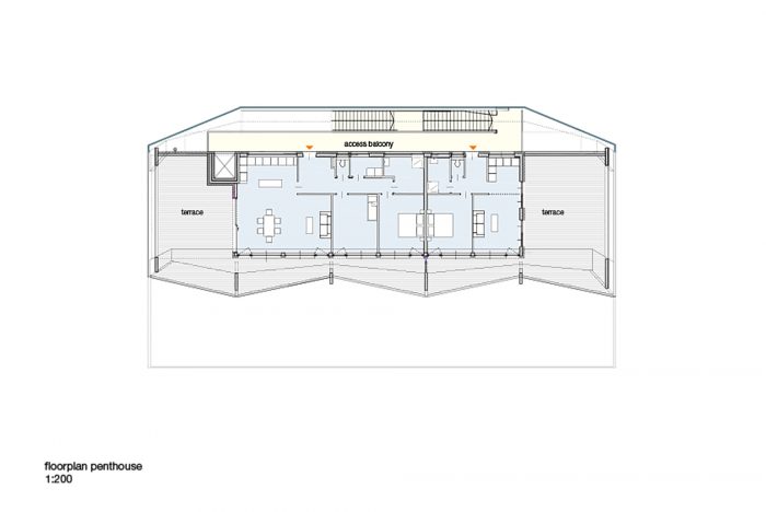
该建筑顶层有15套小公寓(40-50m²)和一个顶层复式公寓,下面有一个地下停车层。
The building houses 15 small apartments (40-50m²) and one penthouse on the top floor, with a subterranean parking level below.

所有的公寓都是朝南的,并设有宽敞的室外区域(阳台或露台),面向拉格尼茨巴赫的绿色空间。阳台和室外区域覆盖整个公寓宽度的部分屋顶,最小尺寸为17m²。这样一来,实际的生活区域就会向室外延伸,客厅和卧室就会显得更大、更宽敞。
All apartments are oriented to the south and feature spacious outside areas (balconies or terraces) that face the green space of Ragnitzbach. The balconies and outside areas that cover the entire apartment widths are partially roofed and feature a minimum size of 17m². Thus, the actual living area extends towards the outside area, and living rooms and bedrooms appear larger and more spacious.

落叶松木的阳台栏杆沿着悬臂板的曲折节奏呈扇形摆放,无论是材质还是工艺都营造出温馨的氛围。
The larch-wood balcony railings are placed in a fan-like manner along the zigzag rhythm of the cantilever slab, with both materials and workmanship creating a homely atmosphere.

北向的凉棚阻挡了Ragnitzstraße的交通噪音。膨胀的金属外墙从西面看几乎是透明的。
The north-facing pergola blocks the traffic noise of the Ragnitzstraße. The expanded metal façade is mounted such that it appears almost transparent from the west.

然而,当从东面走近建筑时,外墙显得封闭且体积庞大,当人们经过建筑时,会产生一种视觉上的倾斜效果。总的来说,该结构的外观会根据观者的视角而发生巨大的变化,这给建筑带来了一种非常具有雕塑感和立体感的感觉。
However, when approaching the building from the east, the façade appears closed and volumetric, which creates a kind of visual tilting effect as one passes the building. Overall, the appearance of the structure varies dramatically depending on the viewer’s perspective, which gives the building a very sculptural and three-dimensional feel.














建筑师:LOVE architecture and urbanism
面积:1888平方米
年份:2013年
摄影:Jasmin Schuller
厂家: Innowood
设计团队:DI Tamara Frisch, DI Pirsoka Frey, DI (FH) Arch. Erika Brunnermeier
总规划师:Franz Lederer,Grabner Baugesellschaft mbH公司
承重结构规划师:DI Hartmuth Petschnigg
建筑物理学:Technisches Büro Ing. Bernhard Hammer Gmbh
电气规划:LA TEC KG (DI Bernhard Gogg)
城市:格拉茨
国家:奥地利
Architects: LOVE architecture and urbanism
Area: 1888 m²
Year: 2013
Photographs: Jasmin Schuller
Manufacturers: Innowood
Design Team:DI Tamara Frisch, DI Pirsoka Frey, DI (FH) Arch. Erika Brunnermeier
General Planner:Franz Lederer, Grabner Baugesellschaft mbH
Load Bearing Structure Planner:DI Hartmuth Petschnigg
Construction Physics:Technisches Büro Ing. Bernhard Hammer Gmbh
Electrical Planning:LA TEC KG (DI Bernhard Gogg)
City:Graz
Country:Austria