这个项目占据了海格特保护区内一个爱德华时代露台的底层,重新设计并扩大了原来一个小的一室公寓的占地面积和体积。
Occupying the ground floor of an Edwardian Terrace in the Highgate conservation area, this project reworks and expands the footprint and volume of what was originally a small one bedroom flat.



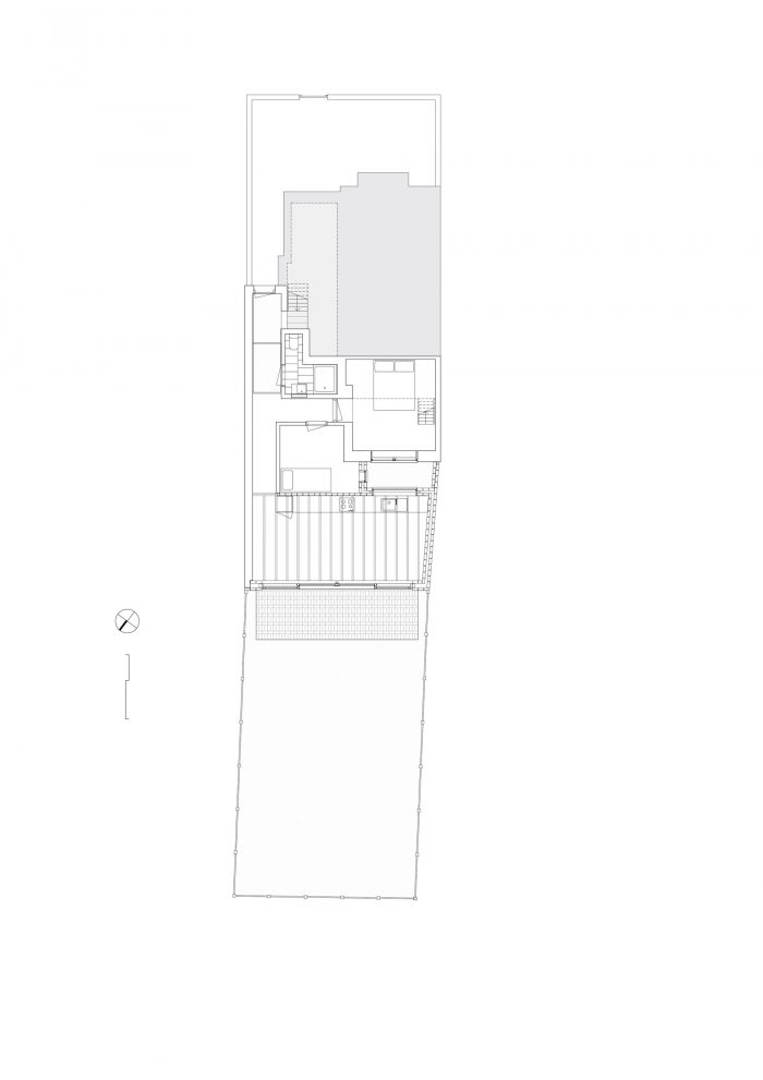
通过对原有地板和天花板的调查,发现了一系列未被充分利用的空隙,使得该部分可以扩展到新的层面,使原来的住宿条件翻倍。卧室和夹层围绕着一个新的砖砌的采光井组织起来,并通过相邻的生活区向花园借来一个视野。
Investigation beyond the original floor and ceiling revealed a series of underutilised voids, allowing the section to expand to incorporate new levels, doubling the original accommodation. Bedrooms and a mezzanine are organised around a new brick lined light well, and borrow a view through the adjacent living area to the garden beyond.



原有的爱德华时代的围护结构内的空间被涂上石膏,后方包含生活空间的新体量是由承重面砖和简单的软木屋顶结构组成。一个新的连续的楼板,比原来的地板水平低五个台阶,提供了一个直接连接到一个大花园。新的软木木工是在现场制作和完成的,橱柜是直接和经济的。
Spaces within the original Edwardian envelope are finished in painted plaster and a new volume at the rear containing the living space is made from load bearing face brickwork with simply expressed softwood roof structure. A new continuous floor slab, five steps lower than the original floor level, provides a direct connection to a large garden. New softwood carpentry was made and finished on site and cabinetry is straight forward and economical.

虽然在表达上平静而直接,但有一个意想不到的发明水平,提供了超越日常的基本特征和快乐。
Although calm and direct in its expression, there is an unexpected level of invention that provides essential character and joy beyond the everyday.









Architects: Russell Jones
Area : 75 m²
Year : 2020
Photographs :Harry Clover, Russell Jones
Structural Engineer : Constructure, Paul Longdin
Contractor : B&W Construction, Bartosz Skorka
Design Team : Hannah Guy, Joseph Little, Harry Clover
Country : United Kingdom