在新的房地产消费趋势中,有一个新名词叫'Young-kel Generation',意思是年轻人为了买自己的房子,拼命向银行和整个家族成员借钱。英克尔一代'是年轻一代担心由于房价急剧上升而在未来无法购买自己的房子而产生的焦虑的表现。这种情况变得如此严重。
Among the new real estate consumption trends, there is the neologism called ‘Young-kkel Generation’ which means that young people borrow money from banks and their entire family members as much as possible desperately to buy their own house. ‘Yeong-kkel generation’ is an expression of anxiety created by the young generation’s fear that they cannot buy their own houses in the future due to a sharp rise in house prices. This situation is getting so serious.




在韩国,"建筑空间 "现在只被认为是 "商业利润的房地产"。在通过机械测量评估的房地产概念中,"用于居住的建筑空间 "是没有意义的。由于竞争激烈的社会环境,这类社会风气自然而然地被移植到城市空间,形成了沉闷的城市景观。这就是为什么城市建筑变得毫无表情,在沉默中被孤立。
In South Korea, The 'architectural space' is recognized only as 'real estate for commercial profit' nowadays. In the concept of real estate, which is assessed by mechanical measurement, ‘architectural space for living’ has no meaning. As a result of the competitive social climate, these kinds of social trends are naturally transplanted into urban space and creating a dreary city landscape. This is why urban architecture became expressionless and isolated in silence.

但是,我们童年时玩耍的传统村落的风景,却通过每家每户的墙壁展示和交流。这种像环绕院子的矮墙一样的 "限制性干扰 "应该是城市建筑的一个基本元素。然而,在一个垂直的城市,不可能有这样的院子。因此,我们只是希望我们的建筑的薄阳台能起到这种作用,作为村庄的院子和墙壁。Tri_poly是一个建筑过程的故事,以恢复我们生活中那些失去的特征。
But, the scenery of traditional villages where we played in our childhood, was shown and communicated through the wall of each house. This kind of 'restricted interference' like low walls surrounding the yard should be an essential element of urban architecture. However, in a vertical city, there can be no such yards. So, we just hope thin balconies of our building will serve that role as a yard and walls in the village. Tri_poly is the story of an architectural process to restore those lost features of our life.



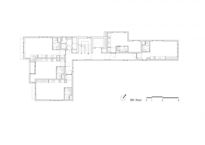
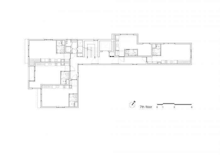
Poly1)连接三种不同的功能(Functional_poly) Tri_poly是一个多用途的建筑,由三种建筑功能共同组成。
邻里生活设施、官员(在韩国用于商业和住宅的两用建筑)和多户住宅从下向上叠加。我们构思了一个概念,通过一个共同的元素来协调三种功能:阳台。然而,根据现行法律,阳台不能安装在官员身上。Tri_poly是在符合现行法律的情况下,利用其独特的三角形结构,将三种功能和方案连接到一个建筑中,解决官员安装阳台的想法的结果。
Poly1) Connecting three different functions (Functional_poly) Tri_poly is a multi-purpose building that consists of three architectural functions together.
Neighborhood living facilities, officials (dual-purpose buildings used for commercial and residential purposes in Korea), and multi-household houses are stacked from below. We have conceived a concept that harmonizes three functions through a common element: the balcony. However, under the current law, balconies cannot be installed in officials. Tri_poly is the result of the idea of a solution to the installation of terraces at officials complying with the current law using its unique triangular structure and linking three functions and programs into one architecture.


Poly2)利用狭缝作为梯田(Terrace_poly)Tri_poly是指通过三角形结构的重复而连接的空间系统。
垂直的 "之 "字形图案在其外墙上形成了三角形的缝隙。这些三角形的裂缝为阳台提供了空间。三角形结构也成为支持负荷和窗户的设计的参考线。因此,Tri_poly创造的缝隙起到了将内部空间暴露在外面的作用,并为人们提供了一个可以舒缓压力的休息场所。
Poly2) Using slits as terraces (Terrace_poly) Tri_poly means a spatial system connected through the repetition of a triangular structure.
The vertical zig-zag patterns create triangle slits on its facades. These triangular cracks make room for balconies. The triangular structure also has become a reference line for a design that supports loads and windows. As a result, the slits which Tri_poly creates play a role in exposing the interior space to the outside and offer a resting place where people can relieve stress.


poly3)通过阳台进行交流(Viewing_poly) Tri_poly提供了各种类型的窗口,每个独立的空间都与外界相通。
在两边或三边开放的垂直建筑景观通过向外展示人们的各种生活方式,为城市景观提供了活力。
poly3) Communicating through the balconies (Viewing_poly) Tri_poly provides various types of the window where each individual space meet the outside.
The vertical architectural landscape opened on two or three sides offer vitality to the urban landscape by revealing the people’s various lifestyles to the outside.


The purpose of creating various windows and terraces may be to add abundant light and scenery to individual spaces, but the main design intention is to allow windows and terraces opened on multi-side to interfere in people’s privacy a little bit. Rather than the independence of privacy, we intend people to communicate through some interference and also reveal their stories through ‘these kinds of interference’. Through this, the scenery that we want to create is the urban landscape where the drama of our lives flows onto the facades of Tri_poly.














Architects: Maaps Architects
Area: 2571 m²
Year: 2021
Photographs: Jongoh Kim
Lead Architects: Sungmin Kim, Samyeol You, Myeongsu Ha
Design Team:Hyoin Lee Somi Kang Eunyoung Ko Junyoung Choi Jooyoul Pyo
Architects:Maaps Architects Cooperation
City:Yeongdeungpo-gu
Country:South Korea