早在1873年,第一所新教学校就建在现在的Rechenacker场地上,但它在1943年被炸毁。随后,奥伯豪森-斯泰伦区的地区出现了各种教育机构的特点。今天,建于1957年的Landwehrschule以及建于1973年的Rechenacker市政日托中心都位于该地。奥伯豪森市需要扩大现有的日托中心,从20世纪70年代开始,在Rechenacker教育园区内建造一座独立的建筑。
As early as 1873, the first Protestant school was built on the present Rechenacker site but it was destroyed by a bombing raid in 1943. The area in the district of Oberhausen Styrum was subsequently characterized by various educational institutions. Today the Landwehrschule, built in 1957, as well as the Rechenacker municipal daycare center, built in 1973, are located on the property. The city of Oberhausen needed to expand the existing daycare center from the 1970s with an independent building on the Rechenacker Education Campus.



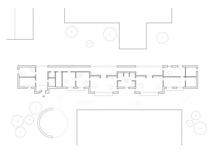
空间方案规定了一个两组的日托中心。由于为一栋建筑面积约为400平方米的新建筑而进行的场地处置被证明是相当具有挑战性的,我们开发了一个长60米、宽7.50米的建筑区。
The spatial program provided for a two-group daycare center. Since the disposition of the site for a new building with approximately 400 square meters of floor space turned out to be rather challenging, we developed a 60-meter-long and 7.50-meter-wide building block.

它位于小学和幼儿园之间。一堵 "墙 "可以被认为是建筑形式的一个类比。在南侧,新建筑与现有幼儿园的位置形成了一条 "游戏巷"。
Which is located between the elementary school and the kindergarten. A "wall" can be considered as an analogy for the building form. On the south side, a "play alley" is created by the placement of the new building in relation to the existing kindergarten.


南面外墙的形状以大开口为特征,这也是逃生通道所必需的。 一个L型的预制混凝土构件被放置在各自的窗户和法式门上,作为防晒元素,并成为建筑形状的特征。这个元素在北侧立面上被反射出来,作为儿童的长椅。
The shape of the south facade is characterized by large openings which were also necessary for reasons of an escape route. A precast concrete element in L-shape was placed over the respective windows and french doors as a sun protection element and characterizes the shape of the building. This element is mirrored on the north facade as a bench for the children.


北立面的特点是只有三层楼的深度和两个小点的窗户,目的是让孩子们看到他们人生的下一个阶段,"即学校"。从外面看,该建筑的实体化表现为一个红砖体量,从而与50年代兰德威尔学校的现有建筑形成了一种关系。
The north façade is only characterized by three-floor depths and two small point windows, which are intended to give the children a view into their next stage of life, "namely school". From the outside, the building's materialization appears as a red brick volume, thus forming a relationship with the existing buildings of the Landwehr School from the 1950s


该建筑从南侧进入,有一个设计明确的内向交错的入口。 平面图保持非常简单。两个小组活动室通过一条长长的走廊进入,走廊的长度与建筑的整体长度大致相当。
The building is accessed on the south side by an expressively designed inwardly staggered entrance. The floor plan is kept very simple. The two group rooms are accessed via a long corridor that roughly corresponds to the entire length of the building.


团体房的特点是,它们稍微超出了整体的体积。这就创造了房间的壁龛,以填充房间的木制家具的形式容纳检查室,从而为建筑内的儿童形成了清晰的地址。
The group rooms are characterized by the fact that they push themselves slightly out of the overall volumetry. This creates room niches that accommodate the checkrooms in the form of room-filling wooden furniture and thus form clear addresses for the children inside the building.









Architects: DRATZ Architekten
Area : 400 m²
Year : 2022
Photographs :Thilo Rohländer
City : Mülheim
Country : Germany