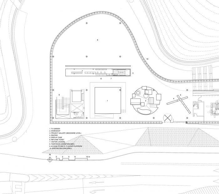
白南准艺术中心改造项目重新配置了现有博物馆约12000平方英尺的空间(约占公众可进入区域的三分之一),并为公众提供了解释、停留、交流和居住该机构的新方式。该项目尝试 "建筑中的建筑 "和 "人物中的人物 "的理念,探索类型化的方法,将未被充分利用的机构空间适当地用于更灵活、更有变革性的公共用途。
The Nam June Paik Art Center renovation project reconfigures approximately 12,000 sf of the existing museum (about one-third of the publicly accessible area) and provides the public with new ways to interpret, linger, exchange, and inhabit the institution. Experimenting with the idea of “building in a building” and a “figure in a figure,” the project explores the typological approach to appropriate underutilized institutional spaces for more flexible and transformative public use.



开放地面,博物馆新的入口层围绕着三个具有强烈形象和空间特征的大型项目区--白烨《电视花园(1974)》的新环境、项目画廊(新锐艺术家的实验性展览)和工作坊圈(新的公共项目)进行设计,它旨在促进公众与艺术及其故事的长时间和多种方式的互动。三个独立的人物与公众形成了一个新的机构界面,允许同时而又自主的节目,而精心的开放构成则促进了不可预测的交流和新的策展潜力。结合辅助性的移动元素,这些人物还构筑了额外的用户设施。
Open Ground, the new entry floor of the museum is designed around three large-scale programmatic zones with strong figural and spatial characteristics - New Environment for Paik’s “TV GARDEN (1974)”, the Project Gallery (for emerging artists’ experimental exhibits), and the Workshop Circle (for new public programs) - and it aims to promote extended durations and multifarious ways that the public interacts with the art and its stories. Forming a new institutional interface with the public, three independent figures allow for simultaneous yet autonomous programming while the careful open composition fosters unpredictable exchanges and new curatorial potentials. Combined with supplementary mobile elements, the figures also frame additional user amenities.



位于二楼的Flux NJP游戏室,是一个为用户指导学习和探索的空间,设计有媒体集成的定制家具,以及移动图像投影和其他未来技术的基础设施。该房间建在循环核心周围未被充分利用的剩余空间中,以最小和不寻常的占地面积,在占据大部分楼层的开放式画廊中,提供了一个独处的空间和与学习材料的亲密接触。墙体的几何形状为媒体投影划定了沉浸式的表面,为团体或个人使用划定了意想不到的空间,同时产生了一种新的尺度,遮蔽了人们对其局限性的感知。
The Flux NJP Play Room, located on the second floor, is a space for user-guided learning and exploration designed with media integrated custom furnishings and the infrastructure for moving image projections and other future technologies. Built in the underutilized residual spaces around the circulation core in a minimum and unusual footprint, the room provides a space of solitude and of intimacy with the learning material amid the expansive open gallery that occupies most of the floor. The geometry of the wall delineates immersive surfaces for media projections and unexpected spaces for group or personal use while producing a new scale obscuring the perception of its confines.












建筑师:N H D M建筑师事务所
面积: 1,200平方英尺
年份:2017年
摄影作品。白南准艺术中心
结构工程师:SEN结构工程
客户:京畿文化基金会、白南准艺术中心
预算:预留
本地注册建筑师(地下):aLab建筑师事务所
城市:龙仁市
国家:韩国Architects: N H D M Architects
Area: 12000 ft²
Year: 2017
Photographs: Nam June Paik Art Center
Structural Engineer:SEN Structural Engineering
Clients:GyeongGi Cultural Foundation, Nam June Paik Art Center
Budget:Withheld
Local Architect Of Record (For Ground Floor):aLab architects
City:Yongin-si
Country:South Korea