这个想法是要为心灵、身体和灵魂创造一个幸福的空间。一个居住者可以轻松、爱、快乐和幸福地生活的空间。一个他们可以从精力充沛的生活中得到补充和恢复活力的地方,一个让他们有家的感觉的地方。我们花了三个月的时间与我们的客户在一起,以了解他们的生活方式、哲学、梦想、欲望和动机。对我们来说,他们想拥有的经验和他们想生活的情感是最重要的。我们面临的挑战是如何识别和理解客户的感受,并将其转化为住宅。在建筑中,有一个由路易斯-沙利文提出的古老原则,即形式和功能。
The idea was to create a space of well-being for the mind, body, and soul. A space where the dwellers can live with ease, love, joy, and happiness. A place where they can replenish and rejuvenate away from the energetic life, a place where they feel at home. We spent three months with our clients in order to understand their lifestyles, philosophy, dreams, desires, and motivations. The experience that they wanted to have and the emotions that they wanted to live were paramount to us. The challenge was to identify and understand the feelings of our clients and convert them into a residential house. In architecture, there is an old principle told by Louis Sullivan which is form and function.



很简单,它意味着一个事物的结构和它的功能的延续之间的直接关系。对我们来说,这个有100多年历史的原则已经不够用了。我们认为它应该是形式、功能和感觉。每一种形式和每一种功能都会给我们带来一种感觉。我们看到的每一个建筑、酒店、餐厅、咖啡馆、汽车、自行车、沙发、桌子、椅子等等......都会转化为一种感觉,告诉我们是喜欢还是不喜欢,是兴奋还是厌烦,是感兴趣还是无所谓,如此等等。我们相信,我们的大部分工作是带出正确的感觉。
Very simply it means the direct relationship between the structure of a thing and its continuation as a function. To us, this principle which is more than 100 years old is not enough anymore. We believe it should be form, function, and feel. Each form and each function brings out a feeling in ourselves. Every building, hotel, restaurant, cafe, car, bicycle, sofa, table, chair, etc... that we see translates into a feeling which tells us if we like or dislike, get excited or bored, are interested or indifferent, and so on and so forth. We believe the majority of our work is bringing out the right feelings.

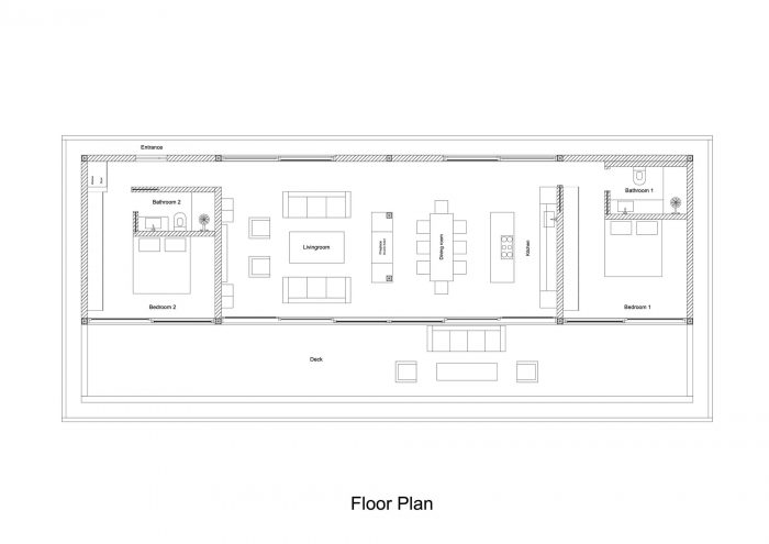
对于芦苇屋,我们的核心是失去内部和外部的障碍。我们也希望新鲜的空气能在屋内循环。为了做到这一点,我们从内部开始设计房子,并继续向外部发展。窗户的数量和大小是空气流通的一个主要问题。首先,我们从内部空间开始,卧室、客厅、餐厅、浴室的大小,窗户的位置,以及它们之间和与环境的关系。每个空间都必须有一个清晰的室外视野,当他们向外看时,他们会看到什么也同样重要。
For the reed house, our core was losing the barrier of inside and outside. We also wanted the fresh air to circulate inside the house. To do those we began designing the house from the inside and continued towards the outside. The amount and size of the windows were a major issue for air circulation. First, we started with the interior space, the size of the bedrooms, living room, dining room, bathrooms, location of windows, and their relationships to each other and to the environment. Each space had to have a clear view of the outdoors and what they will be seeing when they looked outside was equally important.


当我们在设计室内时,我们也同时结束了景观的设计,以确保从屋内有更好的观赏体验。我们设计了每一个小细节,如厨房、浴室、床、门、桌子、沙发、咖啡桌、衣柜、壁炉、橱柜、照明,以及它的所有功能和形式。最后一部分是设计房子的形式。我们需要为户外生活遮挡阳光,并在炎热的夏天保持房子的凉爽。
As we were designing the interior, we also ended up designing the landscape simultaneously to ensure a better viewing experience from inside the house. We designed every little detail such as the kitchen, bathrooms, beds, doors, tables, sofas, coffee tables, wardrobes, fireplace, cabinets, lighting, and all its functions and forms. The last part was designing the form of the house. We needed shade from the sun for outdoor living and to keep the house cool during hot summer days.


我们希望提出一个类似于舒缓感觉的外部设计,在这种情况下,它是日本、巴厘岛和中世纪建筑的融合。为了拥有大的开放空间,我们使用了钢结构和木材,这也使得施工速度加快。所有这些设计都是我们客户的反映,它们共同带来了他们最初想要的情感和生活体验。芦苇之家是关于平衡与和谐的。
We wanted to come up with an exterior design that resembled a soothing sensation which in this case was a blend of Japanese, Balinese, and mid-century architecture. To have big open spaces we used steel structures and wood which also made the construction faster. All these designs are a reflection of our clients and together they bring out the emotions and the experiences they wanted to live in the first place. Reed House is all about balance and harmony.









Architects: Kamil Taner Architecture & Interiors
Area : 317 m²
Year : 2022
Photographs :Burak Teoman
Manufacturers : Boardex, Eglo, REHAU, Alarko Carier, Argpan Outdoor Wood Systems, Izocam , Mk Metal Ltd, Paint Finishes, Parquet:, VitrA, Yuksel Yapi Windows Co
Architecture Design : Kamil Taner, Berkay Gulgezen
Structural Engineering : Nodus Engineering
Electrical And Mechanical : Emsas Electricity
Construction Contractors : CDBS Construction Co
Interior Design : Kamil Taner, Mehmet Tekin, Nisa Kara
Furniture Design : Kamil Taner, Mehmet Tekin
Landscape Design : Kamil Taner
City : Nicea
Country : Turkey