里德大楼与查尔斯-雷尼-麦金托什的1909年格拉斯哥艺术学院形成互补对比--形成一种共生关系,每个结构都加强了另一个结构的整体质量。薄薄的半透明材料与麦金托什建筑的砖石结构形成鲜明对比--光的体积表达了学校在城市结构中的活动,体现了艺术的前瞻性生活。该设计同时从内到外--满足项目的功能需求和心理渴望--和从外到内--与城市校园建立联系,并与对面的麦金托什建筑相联系--体现了学校在城市结构中的愿望。
The Reid Building is in complementary contrast to Charles Rennie Mackintosh’s 1909 Glasgow School of Art – forging a symbiotic relation in which each structure heightens the integral qualities of the other. Thin translucent materiality in considered contrast to the masonry of the Mackintosh building – volumes of light that express the school’s activity in the urban fabric embodying a forward-looking life for the arts. Working simultaneously from the inside out – engaging the functional needs and psychological desires of the program – and the outside in – making connections to the city campus and relating to the Mackintosh building opposite – the design embodies the school’s aspirations in the city’s fabric.



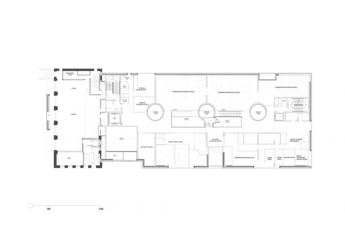
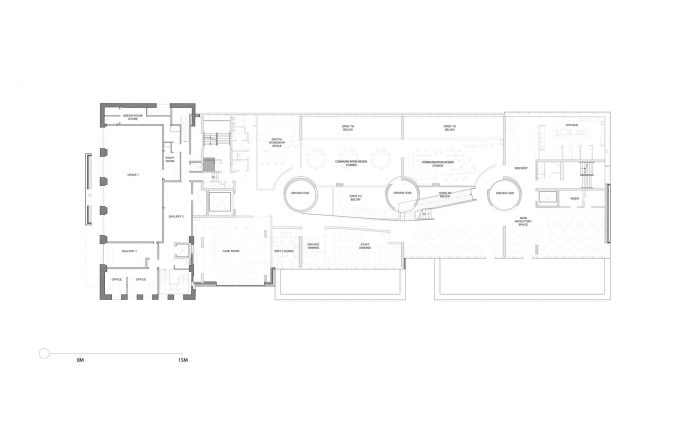
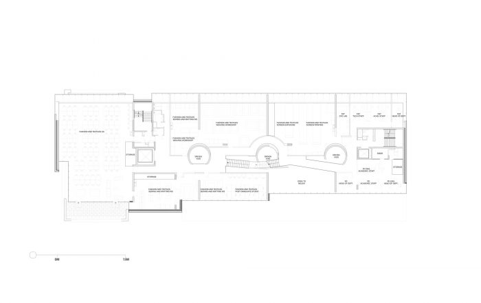
麦金托什以创造性的方式对建筑部分进行了惊人的处理,激发了对不同光线下的体量规划的方法。工作室/车间是该建筑的基本组成部分。空间的定位不仅反映了它们之间的相互依存关系,也反映了它们对自然光的不同需求。工作室位于北面,有大的倾斜的北向玻璃,以最大限度地获得理想的高质量的漫射北光。对自然光质量要求不高的空间,如食堂和办公室,则位于南面,在那里可以通过遮阳来平衡阳光的获取和居住者的需求以及空间的热性能。
Mackintosh’s amazing manipulation of the building section for light in inventive ways has inspired the approach towards a plan of volumes in a different light. The studio/workshop is the basic building block of the building. Spaces have been located not only to reflect their interdependent relationships but also their varying needs for natural light. Studios are positioned on the north façade with large inclined north-facing glazing to maximize access to the desirable high-quality diffuse north light. Spaces that do not have a requirement for the same quality of natural light, such as the refectory and offices, are located on the South façade where access to sunlight can be balanced with the occupants' needs and the thermal performance of the space through the application of shading.


"光的驱动空隙 "允许结构、空间调节和光线的整合。驱动空洞 "的光轴通过建筑的深度提供自然光,通过天空的强度和颜色的变化,提供与外部世界的直接联系。此外,它们为建筑提供垂直循环,消除了对空调的需求。
“Driven voids of light” allow for the integration of structure, spatial modulation, and light. The “driven void” light shafts deliver natural light through the depth of the building providing direct connectivity with the outside world through the changing intensity and color of the sky. In addition, they provide vertical circulation through the building, eliminating the need for air conditioning.

沿着南立面,在与麦金托什主工作室相同的高度,一个马凯尔形式的景观阳台给了学校一个向城市开放的外部社会核心。自然植被与一些石头工程将水引入一个小的循环水塘,将斑驳的阳光反射到里面的天花板上。贯穿新里德楼的 "连接回路 "鼓励各部门之间的 “创造性磨合",这是学校工作的核心。由阶梯式坡道组成的开放回路连接了所有主要空间--大厅、展览空间、项目空间、演讲厅、研讨室、工作室、工作坊,以及用于非正式聚会和展览的绿色平台。
Along the South elevation, at the same height as the Mackintosh main studios, a landscape loggia in the form of a Machair gives the school an exterior social core open to the city. The natural vegetation with some stone work routes the water into a small recycling water pond which will reflect dappled sunlight onto the ceiling inside. A “Circuit of Connection” throughout the new Reid Building encourages the “creative abrasion” across and between departments that is central to the workings of the school. The open circuit of stepped ramps links all major spaces – lobby, exhibition space, project spaces, lecture theater, seminar rooms, studios, workshops, and green terraces for informal gatherings and exhibitions.











































Architects: Steven Holl Architects
Area : 11250 m²
Year : 2014
Photographs :Iwan Baan
Lead Architects : Steven Holl, Chris McVoy, Noah Yaffe
Project Manager : Turner & Townsend
Landscape Architecture : Michael Van Valkenburgh and Associates
Planning : Turley Associates
Project Architect : Dominik Sigg
Assistant Project Architect : Dimitra Tsachrelia
Project Team : Rychiee Espinosa, Scott Fredricks, JongSeo Lee, Jackie Luk, Fiorenza Matteoni, Ebbie Wisecarver
Competition Team : Dominik Sigg, Peter Adams, Rychiee Espinosa
Associate Architects : JM Architects
General Contractor : Sir Robert McAlpine
Engineer : Ove Arup & Partners Japan
Cdm Coordinator : Cyril Sweett
City : Glasgow
Country : United Kingdom