学校教学法的变化和对教学形式的重新解释促使多特蒙德市对Reinoldi-Gesamtschule的位置和主要建筑进行了审查,该建筑已被扩建了几个部分,但年事已高,未来是否还能继续使用。分析报告建议建造一座新的建筑并拆除现有建筑。
The change in school pedagogy and the reinterpretation of teaching forms prompted the city of Dortmund to examine the location and the main building of the Reinoldi - Gesamtschule, which had been expanded in several sections but was getting on in years, for its future viability. The analysis recommended a new building and the demolition of the existing building.


新的U形建筑将自己定位在诱人的学校操场上,但在校园的后退部分远离了街道。新的主楼与现有的两个体育馆和科学扩建部分一起,形成了一个城市单元。
The new U-shaped building positions itself invitingly to the schoolyard but was positioned away from the street on the setback portion of the school campus. Together with the two existing gymnasiums and the science extension, the new main building forms an urban unit.

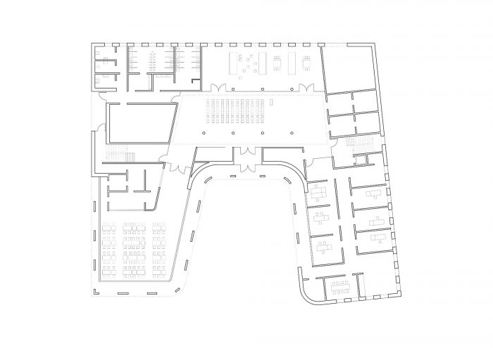
该建筑群在垂直方向上被分割开来,也可以通过外墙和它的材料性看到。门厅、食堂和游戏中心在一楼形成了一个多功能的交流论坛。新的学校行政区域与这个开放的论坛相连。在上面的两层,18间带有个人和团队房间的教室被组织成连贯的群组。一些走廊呈圆锥形拓宽,形成自习区,并汇聚到建筑中心的天井花园中。
The complex is divided vertically, also visible through the façade and its materiality. The foyer, cafeteria, and play center form a multipurpose communication forum on the first floor. The new school administration area is connected to the open forum. On the two upper floors, 18 classrooms with individual and team rooms are organized in coherent clusters. Some of the corridors widen conically to form self-study zones and converge on a patio garden in the center of the building.


在上层形成了一个可以看到校园的图书馆和一个可以看到邻近田野和森林的屋顶平台,并作为一个户外学习区提供给所有用户。除了第一教育者(教师)和第二教育者(同学),作为第三教育者的建筑也极大地影响了新楼的新学习氛围。
A library with a view of the campus and a roof terrace with a perspective of the adjacent field and forest is formed on the upper floor and is available to all users as an outdoor learning area. In addition to the first educator (teacher) and the second educator (fellow students), the building as the third educator also significantly influences the new learning climate in the new building.



另一个基本构件是 "从灰色到绿色 "的方法,它被用作多特蒙德新中学的概念基础。在新的中学建筑项目中,如果我们也看一看并比较一下纯面积值和体积值,就会明白为什么有时少就是多。现有建筑的体积为36,700立方米,而新建筑为21,800立方米。
Another basic building block is the „GreytoGreen“ method, which was used as the basis for the concept of the new secondary school in Dortmund. Why less is sometimes more becomes clear in the new secondary school building project when one also looks at and compares the pure area values and volume values. The existing building had a volume of 36,700 m³ in contrast to the new building of 21,800 m³.



不同的主要面积值,如楼面面积、总楼面面积和交通面积,因新楼而减少了一半以上,尽管由于论坛、食堂和学校行政部门的存在,为学生和教师提供了相当多的可用空间。更少但更好!
The different main area values such as floor area, gross floor area, and traffic area have been more than halved by the new building, although considerably more usable space is available for the students and teachers due to the forum, the cafeteria, and the school administration. Less but better!










Architects: SSP SchürmannSpannel
Area : 5300 m²
Year : 2020
Photographs :Detlef Podehl
Manufacturers : Bedachung Manfred Grefer, Bodenbau Dursun, Gerhard Mohr Malerwerkstätten, Heinrich Rameil, Lühnbau, Ruben-Peter
Structural Planning : Draheim Ingenieure
Building Physics : Müller BBM
Acoustics : Müller BBM
Design Team : Thomas Schmidt, Matthias Solbach, Bastian Scholz
Client : City of Dortmund
Building Services : SSP AG
Fire Protection : SSP AG
City : Dortmund
Country : Germany