La Mejicana在限制中寻找机会。一个有意识地尊重现有的项目,并试图将干预减少到最低限度。特别注重恢复被忽视的元素和重塑内部和外部空间。这个项目是对一个现有建筑的改造。鉴于西班牙对海岸保护的严格规定,不可能在那么近的地方建新房。对这个现有建筑唯一允许的干预措施是维修、升级、结构加固和能源改善。明确禁止增加建筑体积。这些限制既有力地制约了项目的发展,同时也开启了意想不到的可能性。对现有空间的改造是在深刻理解了从原始结构和居民那里继承下来的东西、严格监管的调节因素、新居民的需求以及这个地方所给予的东西的基础上设计的。
La Mejicana looks for opportunities in the limitations. A project that consciously respects the existing and attempts to reduce interventions to a minimum. A special focus on reviving disregarded elements and reinventing interior and exterior spaces. This project is a renovation of an existing building. It would be impossible to build a new house in that proximity to the seafront, given the strict regulations in Spain for coast protection. The only allowed interventions for this existing building were repair, upgrade, structural consolidation, and energy improvement. Being expressly forbidden to increase the built volume. These restrictions have both strongly conditioned the development of the project and at the same time opened up unexpected possibilities. The transformation of the existing space is designed from a deep understanding of what is inherited from the original structure and its inhabitants, the conditioning factors of strict regulation, the needs of the new residents, and what the place gives.




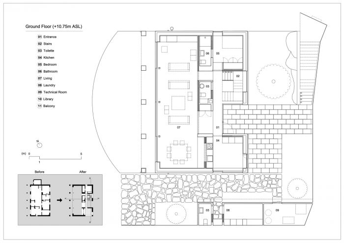
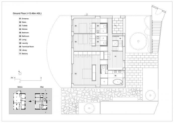
这座房子位于阿尔丹河口附近的一个地块。在房子和水面之间,有一个郁郁葱葱的花园,里面有美丽的树木。这个小天堂是一对加利西亚和德国夫妇留下的遗产,他们在房子建成的那一刻就移民到了墨西哥。然而,房子的体积呈现出一种僵硬的结构和限制。很少有机会使内部和外部空间之间有多孔性和交流。有必要打孔、打破、互换、激发和结束。我们的策略是研究现有建筑的关键点,在尊重原有前提的情况下进行干预。需要更大空间改造的点是进入房子的通道,屋顶的恶化状态,内部程序的重组,以及对新楼梯的需求。这样一来,原本是房子的后立面,变成了项目的一个再生元素,能够将不同的改造交织在一起。这个被遗忘的元素不再被认为是一个平面,而是一个动态的中间部分。新的门槛推动了一个完全不同的房屋居住环境,并建立了不可预见的调解。
The house is in a plot near the Aldán estuary. In between the house and the water, there is a lush garden with beautiful trees. This small paradise is the legacy left behind by a Galician and German couple who emigrated to Mexico at the moment the house was built. However, the volume of the house presented a rigid structure and limits. There were few opportunities to enable porosity and exchange between inside and outside spaces. It was necessary to perforate, break, interchange, inspire and expire. The strategy was to study the critical points of the existing building and intervene while respecting the original prerequisites. The points that required a bigger spatial transformation were the access to the house, the deteriorated state of the roof, the reorganization of the interior program, and the need for a new staircase. This way, what was originally the back façade of the house, becomes a regenerative element of the program, capable to intertwine the different transformations. This forgotten element stops being perceived as a flat surface but as a dynamic in-between. The new threshold impulses a completely different habitation of the house and builds unforeseen mediations.



现有的结构需要大力巩固。地基塌陷,柱子脱落,金属结构腐蚀,屋顶石棉开裂。巩固工作采用了金属元素,因为它使我们能够很容易地适应项目的需要和房屋的不同结构系统:混凝土、砖、木材和金属。能源改善是这个项目的一个重要焦点。我们在保温围墙的外部增加了隔热材料,实施了地板采暖,并将所有现有的窗户更换为更高效的新窗户。最后,我们将现有的水井系统化,以利用雨水来维护花园。我们为需要进行重大改造的干预措施选择了特殊的材料,其余部分尽可能地保持与原来的版本相似。有自然的传统材料,如当地的石头或橡木,结合更多当代的流行趋势,如波浪形的金属板和环氧树脂。
The existing structure required intense consolidation. There were ceded foundations, detached pillars, corrosion in metal structures, and an asbestos-cracked roof. The consolidation has been implemented using metal elements because it allowed us to easily adapt to the program needs and the different structural systems of the house: concrete, brick, wood, and metal. Energy improvement is an important focus of this project. We have added insulation in the exterior of the thermal enclosure, implemented floor heating, and replaced all the existing windows with more efficient new ones. Finally, we have systemized the existing wells to utilize the rainwater for the maintenance of the garden. We have chosen special materials for the interventions that have required a major transformation, maintaining the rest as similar as possible to its original version. There are natural traditional materials like the local stone or oak wood, combined with more contemporary popular trends such as the wavy metal plate and epoxy resins.

















Architects: Alba Balmaseda
Area : 380 m²
Year : 2020
Photographs :Ibai Rigby
Manufacturers : Cortizo, Enetres, Granitos Lalín, Grupo Lesaca
Lead Architect : Alba Balmaseda Domínguez
Collaborator : Esaú Acosta Pérez
Technical Architecture : SPC Arquitectura Técnica
Structural Engineering : EUTECA
Sustainability Consultant : Energanova
Lighting Desing : Spot-lux
Construction : Construcións ANTÓN-BUEU
City : Pontevedra
Country : Spain