现有的公寓和商业建筑可以追溯到1900年,是位于市中心的受保护建筑群的一部分。我们的任务是在这栋建筑中进行交流。在对该建筑的结构进行广泛分析时,规划者确定该历史结构处于不良状态。
The existing apartment and commercial building dating from 1900 was part of a protected building ensemble situated in the city center. The task was to converse in this building. During an extensive analysis of said building’s structure, planners determined that the historical structure was in a poor state.



城市设计委员会和县里的历史建筑保护委员会一致认为,新建建筑是一个合适的解决方案。
设计的基础是,新建筑应该继续成为现有合奏的一部分,这是一套由三个相连的房屋组成的合奏。
The committee for urban design and the committee for the preservation of historical buildings in the county agreed that a new building is an appropriate solution.
The design was based on the idea that the new building should continue to be part of the existing ensemble, which was a set of three attached houses.



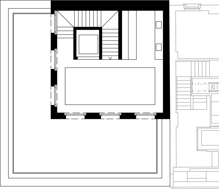
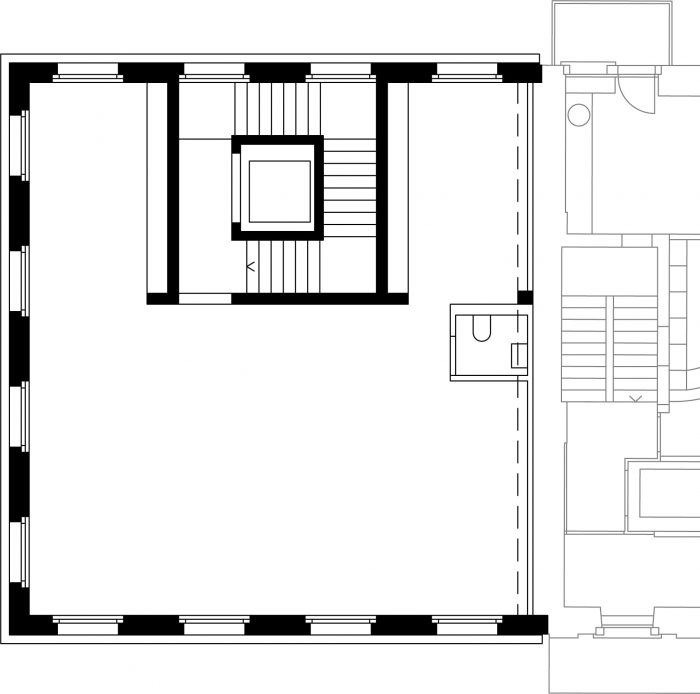
该建筑群的特点是水平排列,分为三个部分:底层、中层和屋顶部分,以及立面的壁画开窗形式。这些类型被包括在内,并以一种现代的方式加以诠释。建筑的结构是通过外移的偏移来实现的。
The characteristics of the ensemble are the horizontal arrangement, the sectioning into three parts; base, middle and roof section, and the mural openings in the façade with standing window formats. The typologies were included and interpreted in a contemporary fashion. The structuring of the building happens through outward shifted offsets.




由绝缘混凝土制成的外墙,一种只有一种物质的材料,为现有建筑提供了一个建设性的类比。未经处理的木窗和细长的拉出式百叶窗补充了这种保留的、高质量和高贵的外观。
The façade made of insulation concrete, a material of one substance only, offers a constructive analogy toward the existing buildings. Untreated timber windows and slender pull-out blinds complement this reserved, high-quality, and noble appearance.



底层通过天窗接受光线,底层将用于餐饮业。上层可以很容易地被分割,因此将被用于商业目的。顶层包含两套公寓。
The lower ground receives light via skylights, and the ground floor will be used for gastronomy. The upper floors can easily be sectioned and will therefore be used for commercial purposes. The top floors contain two apartments.










Architects: Gautschi Lenzin Schenker Architects
Year : 2017
Manufacturers : KEIM, Hunziker Schreinerei, Kästli Storen, Liapor, Nuprotec, Semadeni Glasbetonbau
City : Aarau
Country : Switzerland