作为两兄弟家庭的避暑别墅,Braunas住宅在单层房屋上组织了一个广泛的社交和私人空间项目。两个家庭已经习惯于在周末和假期经常聚在一起,所以把这个项目建成整个家庭的共存空间是一个自然的决定。至于该项目,这意味着唯一严格的空间是夫妻间的套房,儿童卧室由表兄弟姐妹共享,其他每个空间都是共同使用的。
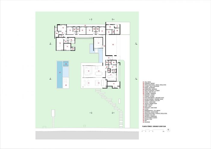
Serving as a summer house for the families of two brothers, Braunas Residence organizes an extensive program of social and private spaces on a single-floor house. Both families already used to get together often on weekends and vacations, so it was a natural decision to build the project as a coexistence space for the whole family. As for the project, that meant the only strict spaces are the couples' suites, children's bedrooms are shared between cousins and every other space is for common use.





在建筑上,该项目的主要力量是将室内空间与宽大的天井相连,包括一个花园和水镜。为了优化自然采光,社交区域被放置在一个透明的盒子里,大玻璃门向前面和后面打开,加强了天井作为主要空间的衔接。这种安排创造了一种内部氛围,减少了距离,使整个地方变得舒适。通过它的透明性,外面的绿色空间与房子相互渗透,在视觉上完善和连接了各个空间。除此之外,丰富的通风和自然采光提供了环境的舒适性。建筑系统同时使用普通混凝土和金属结构。由于较大的跨度和重量,后者被应用于社会区域和阳台。一个金属支架被定位为从屋顶下降的挡板,以保护整个社交区域免受夕阳的影响。
Architecturally, the main force of the project is to connect indoor spaces to a generous patio, including a garden and a water mirror. Designed to optimize natural lighting, social areas were placed in a transparent box with large glass doors opening to the front and back, reinforcing the patio as the main space for articulation. This arrangement creates an internal atmosphere that reduces distances and makes the whole place cozy. Through its transparency, outside green spaces interpenetrate the house, visually completing and connecting the spaces. Besides that, the abundance of ventilation and natural lighting provide environmental comfort. The construction system uses both regular concrete and metallic structures. Due to larger spans and lightness, the latteris applied to social areas and verandas. A metallic brise was positioned as a flap descending from the roof to protect the entire social area from the setting sun.


总的来说,颜色是非常谨慎的,以灰色为主色调,突出了花园。最突出的装饰材料是外墙的粗糙石膏,木质地板和门,以及金属结构。罗马洞石被用作社交区、露台和游泳池的地板装饰。在可持续性方面,太阳能电池板被指定用于加热浴室和游泳池的水,以及收集雨水用于再利用和灌溉。
Overall, the colors are very discreet, in shades of gray, highlighting the garden. The most prominent finishing materials are rough plaster on external walls, wooden flooring and doors, and metallic structure. Roman travertine is used as floor finishing for the social areas, terrace, and swimming pool. In terms of sustainability, solar panels were specified for heating bath and pool water, as well as rainwater harvest for reuse and irrigation.



















Architects: Reinach Mendonça Arquitetos Associados
Area : 855 m²
Year : 2021
Photographs :André Scarpa
Design Team : Tadeu Ferreira, Claudia Bigoto, Daniela Sopas, Felipe Barba, Fernanda Vilaça, Gabriel Mendonça, Gabriel Penna, Giovanna Federico, Guilherme Sampaio, Luana Lopes, Nathalia Grippa, Rodrigo Nakajima, Rodrigo Oliveira, Tony Chen
Landscape : Jardim Paulistano Paisagismo
Engineering : PROJEN
Electrical & Hydraulical Engineering : Zamaro
Construction : EPSON
Country : Brazil