Casamar住宅区位于秘鲁北部太平洋的佐里托斯海滩上。
The Casamar housing complex is located by the Northern Peruvian Sea in the Pacific Ocean on a beach in Zorritos, Perú.




这个项目起源于五个朋友,他们获得了一块海滩地块,在他们需要的时候将其变成个人的度假空间;在不需要的时候,则用于出租。业主将该地块分为五个同质地块,每个地块8米乘100米,这导致了一个细长的房屋模型,并包含同一块重复5次的房屋。
This project originated with five friends who acquired a beach parcel to turn into a personal vacation space whenever they needed it; and, when not, to rent. The owners divided the lot into five homogeneous parcels, each of 8m by 100m, which led to an elongated house model and contained the same piece of housing that repeats itself 5 times.


因此,Casa M1实现了。它的结果是一个综合体,作为每个用途的独立住宅,并通过其元素的配置获得了整体性。
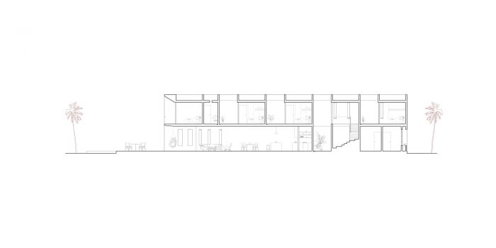
根据每个子地块的细长面积,该单元需要一个长的形状来包含整个独立的环境。此外,业主要求在租给不同家庭的住宅之间有隐私,所以在房屋的相邻两侧之间必须有完全的隐私。
Thus, the Casa M1 materializes. It results in a complex that functions as an individual home for each use and acquires wholeness through the configuration of its elements.
Following the elongated area of each sub-lot, the unit required a long shape to contain the entire individual setting. Also, owners required privacy between dwelling homes leased to different families, so there had to be complete privacy between adjacent sides of the houses.


为了实现这一目标,我们不得不选择横向和后方的正面--北面、南面和东面--极其 "不透明";并制定策略,通过狭窄的开口、顶灯和后来形成阳台的拼接,产生可控的、有效的光线和空气收入。相反,朝向西方,前面可以是非常半透明的,以获得海滩的最佳视野。
To accomplish this goal, we had to opt for lateral and rear fronts -North, South, and East- extremely 'opaque'; and create strategies to generate a controlled and efficient income of light and air through narrow openings, overhead light, and piecework that would later form balconies. Conversely, towards the West, the front could be very translucent to obtain the best view of the beach.




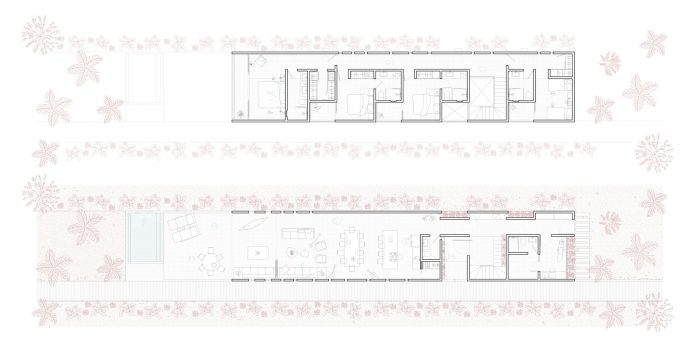
每件卧室作品都是在需要打开通风而又不允许有视觉记录的拗口概念下产生的;除了是方案中最私密的部分,它还必须被放置在作品的一个私密正面。
作为回应,一个模块化的卧室作品被创造出来,通过南面的空隙,与一个私人天井或阳台配合,使其向西面开放,接受来自西南的主导风,并能看到大海。这将导致这个模块件的重复出现,成为项目的组成和配置的核心。
Each bedroom piece arises under the battling notion of needing to open up for ventilation without allowing a visual record; in addition to being the most intimate part of the program, it had to be placed in one of the private fronts of the piece.
In response, a modular bedroom piece is created, which, through voids on the south front, works with a private patio or balcony that allows it to open to the West, receive the predominant wind from the southwest, and have a view of the sea. This would cause the recurrence of this modular piece to become the nucleus of the composition and configuration of the project.


高温和暴雨的赤道气候仍然是一个挑战。为此,热力学发挥了重要作用,并通过天花板作为对环境的正式回应出现。 由于屋顶的高度和倾斜度,自然光照亮了卧室的过堂灯。此外,它与阳台和谐相处,从西南面宽阔的空隙中吸取冷空气,并通过东北面交叉通风的壁橱排出热空气。
The equatorial climate of high temperatures and torrential rains remained a challenge. For this, thermodynamics plays a vital part and appears as a formal response to the context through ceilings. The natural light brightens up the bedrooms with overheard lights thanks to the heights and inclinations of the roof. In addition, it works harmoniously with the balconies to draw cool air from the wide southwest void and drain hot air through the cross-ventilated northeast clerestory.



这项工作的结果转化为这样一个事实,即在参观Casa M1和Casamar建筑群时,用户会遇到不同的、丰富的光线和空气接触情况,丰富了作品的空间路线。此外,它们使人的活动在任何时候都是舒适、诱人和愉快的。
The result of this work translates into the fact that, when visiting Casa M1 and the Casamar complex, the user encounters varied and rich situations of exposure to light and air that enriches the spatial route of the work. Moreover, they make human activity comfortable, inviting, and pleasant at all times.









Architects: Cuatro Cero Cuatro Arquitectura
Area : 3466 ft²
Year : 2022
Photographs :Renzo Rebagliati
Manufacturers : KLIPEN, Marmoleria Gallos, Miyasato, rossello & cia
Lead Architects : Israel Ascarruz, Diego Hernández
Structures : Impacta Design & Building
Engineering : MIA Proyectos
Program : Vivienda(s) de Verano, Zona social (sala, comedor y cocina integrado), Zona Privada ( Dormitorio Principal y 3 Dormitorios Secundarios)
Condominium : 53949 ft2
City : Zorritos
Country : Peru