"一座建筑就是一座城市"。
“A building as a city.”









我们的建议是基于对旧医院建筑作为一个城市空间的理解,它能够容纳城市的活动在里面。走廊成为街道,庭院成为广场,创造了一个独特的空间。所有相关的遗产元素和空间都是为此目的而回收的。
Our proposal is based on the understanding of the old Hospital building as an urban space that is able to hold the city’s activity inside. Corridors become streets and courtyards become squares, creating a unique space. All relevant heritage elements and spaces are reclaimed for this purpose.


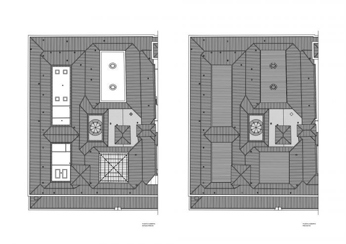
干预措施使圣塞巴斯蒂安医院能够适应当代公共建筑的需要,同时保留了所有具有历史价值的元素,这些元素是翻新建筑的特点。原有的外墙和体量被完全保留下来。在内部区域,现有的拱形房间的体积被恢复;避免了不必要的隔间,所有的吊顶被移除。所有的室内隔断--门和窗--、垂直通信核心和分散的厕所都被取消了,使平面图摆脱了长期以来的修改。
The intervention allows the Hospital of San Sebastian to adapt itself to the needs of a contemporary public building, whilst preserving all those elements of historical value that characterize the refurbished construction. The original facades and volumes are preserved entirely. In the interior areas, the existing volumes of the vaulted rooms are recovered; unnecessary compartments are avoided and all suspended ceilings are removed. All the interior partitions -doors and windows-, the vertical communication cores, and the scattered toilets are eliminated, freeing the floor plan from the modifications added over time.


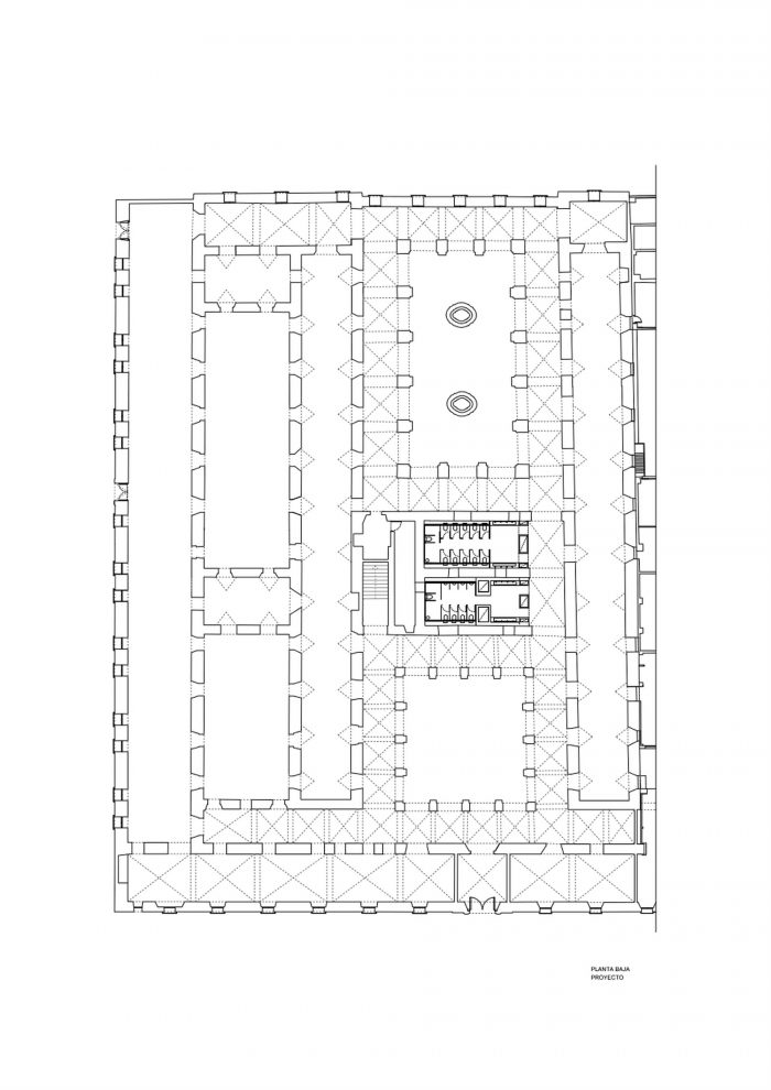
地面层被设想为一个大型的城市交汇中心,一个回归城市的空间。围绕着院子的长方形房舍允许使用,产生了一个动态的结构,在其中出现了美食市场的用途和多功能空间。
The ground floor is conceived as a large urban interchange hub, a space returned to the city. The rectangular premises, which are set around the courtyards, allow ease of use, generating a dynamic fabric in which both gourmet market uses and multi-purpose spaces emerge.






























Architects: José María Sánchez García
Area : 37674 ft²
Year : 2021
Photographs :Roland Halbe
Client : Diputación de Badajoz
Team : Mariló Sánchez, Javier Fernández, Ignacio Hornillos, Sofía Romeo, Cristina Lorenzo, Adrián Paterna, Fernando Benito Fernández
Installations : Aro Consultores, Enrique García-Margallo
Structures : Juan Pedro Cortés
City : Badajoz