社会住房 "这一主题唤起了诸如紧缩、最低生活空间、大众住房、针对低收入人群等词汇。
The theme of "low-income housing" evokes terms such as austerity, minimum living space, mass housing, focused on low-income people.



如果我们已经知道这种类型的共同点,为什么我们不把实验性的解决方案应用于现有的建筑?当然,战略已经从新的项目中实施,但它们很少实现,即使实现了,也是停留在原型状态。
If we already know the common denominator of this typology, why don't we apply experimental solutions to existing buildings? Of course, strategies have been implemented from new projects, but they rarely materialize, and if they do, they remain in prototype limbo.


我们发现了一个机会,一个小的机会,但总算是一个机会;我们的用户(在成为客户之前)想翻新和扩大他的房子,但对场地和用户本身的研究,以及他在房子里的发展,使我们的结果是使他现有的空间有尊严,并为它提供多功能和视觉上的放大。
We found an opportunity, a small one, but at last an opportunity; our user (before becoming a client) wanted to renovate and expand his house, but the study of the site and the user himself, as well as his development in the house, led us to the result of dignifying his existing space, as well as providing versatility and visual amplitude to it.


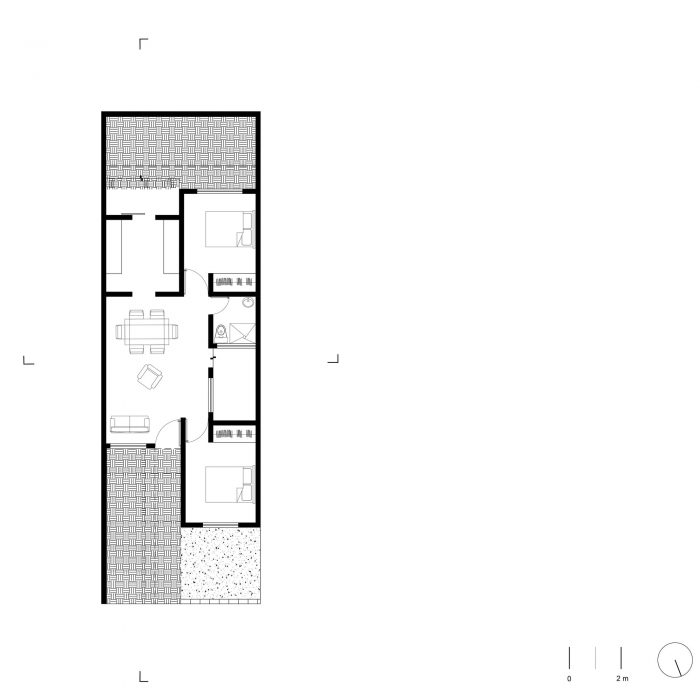
该物业是为一个勤劳的家庭准备的,有6.00米的正面和18.00米的深度。在有限的资源下,这扩大了项目本身的创造性挑战。
Intended for a hard-working family, the property has 6.00 meters of frontage and 18.00 meters of depth. With a limited resource, which expanded the creative challenges of the project itself.


背景分析使我们能够调试那些假定安全并导致成本超支的元素,而这是我们没有想到的。举例说明。
-透明度:如今它意味着安全,我们对房子的第一部分有可见性,即任何站在房子前面的外人都有可能被观察到。
-空间的多变性:用户偶尔有车,所以车库就成了家庭和邻里的露台,视情况而定。
The context analysis allowed us to debug elements that assume security and lead to a cost overrun, which we did not count on. Citation of examples:
-transparency: today it means security, we have visibility to the first part of the house, that is, any outsider standing in front of the house is likely to be observed.
-Versatility of spaces: the user sporadically has a car, so the garage becomes a family and neighborhood terrace, as the case may be.

住房方案是在单一层面上制定的,具有主动和被动的生物气候策略。如包括一个木制的天花板,对现有的混凝土板保持保温;避免对社会区域的影响和利用盛行风的不断循环,由于其窗户从北到南的安排。
The housing program is developed on a single level, with active and passive bioclimatic strategies. Such as the inclusion of a wooden ceiling that maintains a thermal insulation to the existing concrete slab; to avoid the incidence to the social area and the use of the prevailing winds in constant circulation, due to the arrangement of its windows from north to south.










Architects: Apaloosa Architecture and Design Studio
Area : 46 m²
Year : 2020
Photographs : Carlos Berdejo Mandujano
Suppliers : Helvex, Interceramic, AutoDesk, Cemex, Monterrey, Trimble Navigation
City:TUXTLA GUTIÉRREZ
Country:Mexico