我们生活在一个不断变化的世界中,城市变得越来越紧凑、封闭和摩擦,迫使居民过度拥挤;而布宜诺斯艾利斯也无法逃脱这一趋势。这个全国最大和人口最多的城市每天都变得更加拥挤和建设,在这里我们与不可控制的 "人 "的增加相交,以及对未知事物的冲击,与明显增加的其他性。这就是为什么我们搬走了,我们把自己封闭在自己的小世界里,少了同情和亲近,在不久前还曾经是一个有机的社区。像太阳、风、树木、光线和阴影这样原始的问题,似乎越来越不存在,但它们继续居住在这里,居住在我们的共同环境中。这些元素不断地变得更加吸引人,但每次我们都给它们的出现提供更少的空间。要让它们存在。让它们流动并进入我们的家园。
We live in a world in constant transformation, where cities become increasingly compact, hermetic, and frictional, forcing the overcrowding of their residents; and Buenos Aires cannot escape this trend. The largest and most populous city in the country becomes more crowded and constructed every day, where we intersect with the uncontrollable increase of "people", and the shock of the unknown, with an apparent increase of otherness. This is why we move away, we close ourselves off in our little worlds with less empathy and closeness, in what not so long ago used to be an organic community. Issues as primitive as the sun, the wind, the trees, the light, and the shadows, seem to be more and more absent, but they continue to inhabit here, in our common environment. These elements continually become more appealing, but each time we give less room for their appearance. To let them be. Let them flow and enter our homes.




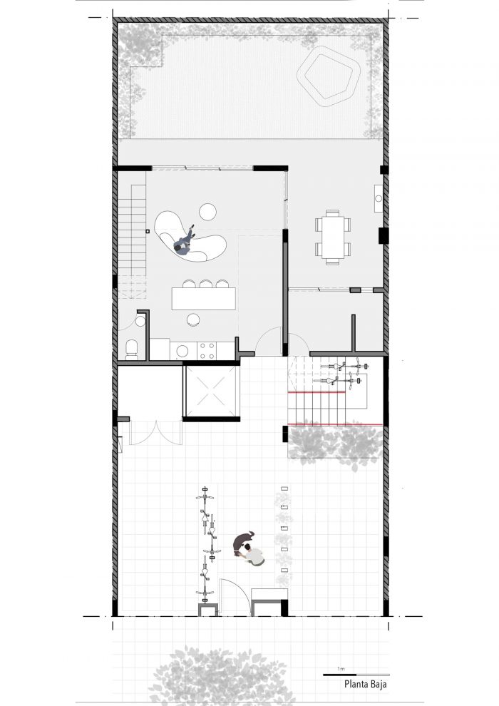
这就是为什么有时我们会问自己这样的问题。我们为什么和为谁建造...?正是在这些答案中产生了所需的东西。我们建造房屋是为了让感官能够接触到我们非常需要的阳光。这样,树叶的声音,风的感觉,以及四季变色的植被就可以与我们的时间流逝和谐共存,共同发展。以此为基础,RH+项目诞生了,寻求重新组合所有这些城市的缺点,并改变它们,以提高居住者的生活质量。在一个95%被废弃的旧建筑占据的地段(几乎没有留下任何土壤吸收的绿色足迹),以及一个由于靠近维加河而需要的社区;决定释放一半的地段,尽管它是一个非常小的地段,用于发展高层建筑,开始。留下尽可能多的吸收性地表,混合种植绿色植物,并增加新的植被,用枝繁叶茂的树木帮助净化周围的空气。
This is why sometimes we ask ourselves the question: Why and for whom do we build…? It is in these answers where the desired arises. We build so that the senses can come into contact with that sunlight that we so much need. So that the sound of the leaves, the perception of the wind, and the vegetation that changes color during the seasons can coexist in harmony and in community with our passage through time. With this as the basis, the RH+ project was born, seeking to recompose all these urban shortcomings and alter them to improve the quality of life of its occupants. In a lot that was ninety-five percent occupied by an old abandoned construction (which left almost no green footprint of any soil absorption), and in a neighborhood that required it due to its proximity to the Vega stream; the decision was made to release half of the lot, even though it was a very small lot for the development of a high-rise building, to begin with. Leaving the largest amount of absorbent land surface possible, with a mixture of green plants and adding new vegetation with leafy trees that help clean the surrounding air.


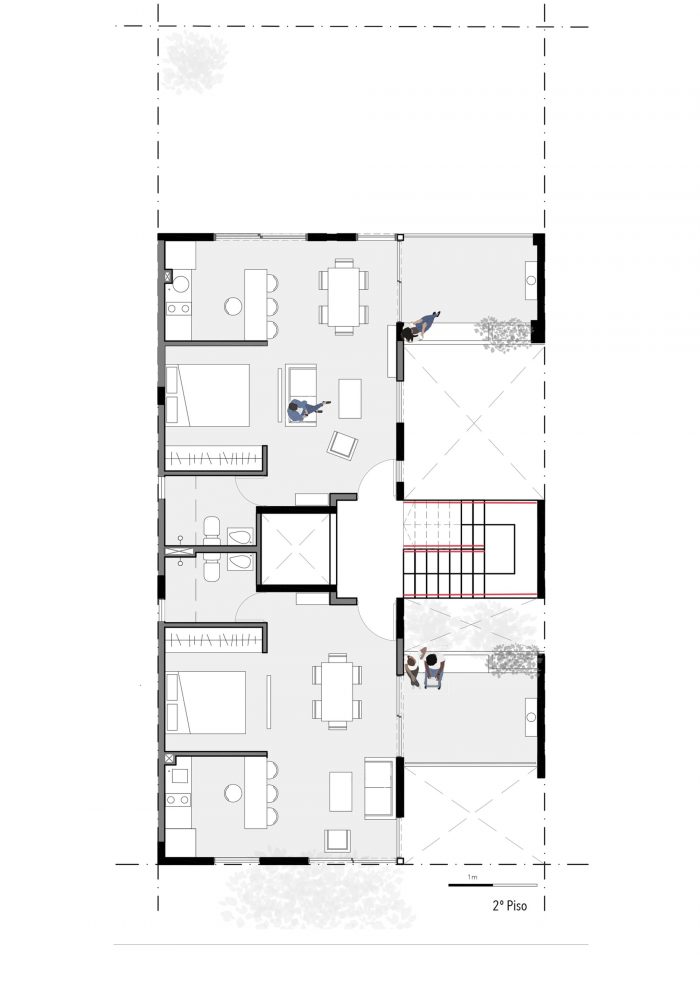
然而,关于 "为谁而建?"的问题,我们希望该项目不要有 "类型 "的公寓,而是在每一层都有不同规模的组合,为其提供不同的类型。摆脱单调和规范,为不同社会阶层和性质的居民提供一个更大的汇合点,合作汇聚在一起,形成一个每个人都可以互动的社区。每套公寓都有交叉通风,阳光直接或间接进入,并与建筑内部和外部的植被永久接触,并有大露台阳台。每一个单元都有一个大的室外空间,有自己的公共植被,由建筑提供,内部庭院的大树和背景的大树拥抱和包含整个社区。该建筑的设计考虑到了它在未来的维护。
However, regarding the “For whom?" question, we want the project not to have “type” apartments, but instead to have a combination of scales that vary on each floor, providing it with different typologies. Escaping the monotony and the norm, providing a greater confluence of inhabitants of different social classes and natures, cooperating to converge and form a community in which everyone can interact. Each of the apartments has cross ventilation, direct or indirect entry of the sunlight, and permanent contact with the vegetation of the building both on the inside as well as on the outside, with its large terrace balconies. Each and every one of the units is supported by a large outdoor space with its own public vegetation provided by the building, where the large trees of the interior courtyard and those in the background embrace and contain the entire neighborhood. The building was designed thinking of its maintenance in the future.


这就是为什么结构是可见的,形成一组连续的暴露的混凝土板。该建筑非常强调感官感受,作为一个原始的和好奇的单纯存在的问题。对其大的开放空间做出了巨大的承诺,允许与自然的充分体验。这种感觉是如此基本和根本,但同时在大都市和我们的布宜诺斯艾利斯又是如此稀缺和被遗忘。我们总是说,”这个项目加强了建筑";为它提供了新的物种,吸收二氧化碳并产生必要的氧气来改善建筑和城市本身的生活。绿地由10棵新树组成,4棵大树和6棵中型树,150多个品种(灌木,悬铃木,爬藤,以及屋顶上的本地植物和吸引蝴蝶的植物),邀请新品种随着时间的推移出现。RH+集体住房建筑给居住在其中的人一缕阳光。也许它从树叶上反弹下来,在令人愉悦的光影游戏中,唤起了宁静,在与邻居共处的过程中,通过和平、平静和安宁的时间。
That is why the structure is visible, forming a set of successive exposed concrete panels. The building places great emphasis on sensory perceptions, as a primitive and inquisitive matter of mere being. Making a huge commitment to its large open spaces, allowing a full experience with nature. A sensation that is so basic and fundamental, but at the same time so scarce and forgotten in the great metropolises and in this case in our Buenos Aires. We always say that “The project strengthened the building”; providing it with new species, which absorb CO2 and produce the oxygen necessary to improve the life of the building and of the city itself. The green space is composed of ten new trees, four large and six medium-sized and more than 150 species (bushes, hanging plants, climbing vines, and native plants and butterflies attracting plants on the rooftop) inviting new varieties to appear over time. The RH+ collective housing building gives those who inhabit it a ray of sunlight. Perhaps it bounces off a leaf of a tree in a delighting play of light and shadow, avoking tranquility that passes through a peaceful, calm, and serene time in coexistence with neighbors.























Architects: RBK arquitectura
Area : 438 m²
Year : 2022
Manufacturers : AutoDesk, FV, ferrum, fuentes de fuego, leddesing.com.ar
City : Buenos Aires
Country : Argentina