尽管离Boavista大道很近,但该地块周围的环境的特点是中等密度的综合住宅。
The surroundings to the plot are characterized by medium density consolidated residential aspects despite being so close to Boavista Avenue.



要重建的房子有三个门面,打算与相邻的住宅建立或重新建立明确的体积关系,但同时又有一定程度的形式自主性和与地形的关系。这座房子最初与北面地块上的一座双胞胎房子建立了关系,当它受到类似的干预时就消失了。目前,它打算重新建立一种关系,虽然性质完全不同--通过对比和连续性。通过体积上的对比,打算低得多,并建立一个直接参考南面地块上带墙的排屋,只有两层,其中一层是半埋的;通过底层的连续性和材料的特点。
The house to rebuild, with three fronts, intends to establish, or re-establish, a clear volumetric relation with the adjoining dwellings, although, simultaneously, with a degree of formal autonomy and relation with the terrain. Originally this house established a relation with a twin house situated on the plot to the north, which disappeared when it was subjected to a similar intervention. At present it is intended to re-establish a relation, though of completely different nature – by contrast and continuity. By contrast in volume, intended to be much lower and establishing a direct reference to the row house with wall moiety on the lot to the south, with only two floors, one being half buried; by continuity through the ground-floor and materials that characterize it.


在街道上的透视阅读中(从北到南),可以清楚地看到这种与底层的连续性关系,以及与南面现有的房屋相协调的建筑体量,为这套建筑提供了一个很好的框架。
In the perspective reading at the street level (from north to south) will be clear this continuity relation with the lower level, as well as the construction volume in harmony with the existent house to south, providing an excellent framework of the set.

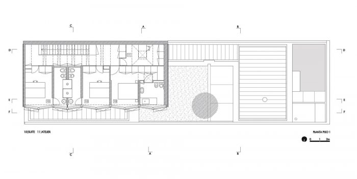
确保形式上的自主性的决定是将其部署为一个庭院式房屋,允许在底层有更大的休息区,以及它们之间的亲密关系,房屋的外部空间和街区的内部。
The decision that will ensure the formal autonomy is its deployment as a courtyard-house, allowing bigger resting areas on the ground-floor and intimate relations between them, the outside spaces of the house and the interior of the block.

东面和西面的立面在上层是完全盲目的,由波尔图市特有的纹理釉面砖板界定。盲目的西立面是合理的,因为它不侵犯相邻的地块,以及防止从这个上层的阅读极其没有特征。
The east and west elevations are, at the upper level, totally blind and defined by textures glazed tile panels, characteristic of the city of Porto. The blind west elevation is justified by not violating the neighbouring parcels, as well as prevents the reading from this upper level extremely uncharacterized.

瓷砖的使用,给葡萄牙的传统带来了新的生命,是为了探索其形式和造型的可能性,而不仅仅是其色彩的可能变化。瓷砖还有一个优势,就是它是一种基本不需要维护的装饰材料,人们可以在任何建筑系统上使用它,而且它是永恒的。我们对它的自然品质感兴趣,它的颜色、质地和根据不同的角度被加工的能力,作为一个不同的实体。
The use of the tile, giving new life to a Portuguese tradition, comes from the intention to explore its formal and plastic possibilities rather than only its chromatic possible variations. The tile has also the advantage of being a finishing material that requires basically no maintenance, one can use it over any constructive system and it’s eternal. We are interested in its natural qualities, its colours, textures and ability to be worked according to the different perspectives, as a different entity.
















Architects: Correia/Ragazzi Arquitectos
Area : 280 m²
Year : 2012
Photographs : Luis Ferreira Alves
Manufacturers : panoramah!®
Construction : Almeidas & Magalhães Lda
Electrical Engineering : Genco
Collaborators : Inês Ruas, João Marques, Nuno Vasconcelos, Rita Breda, Tiago Costa, Glser
Hidraulic Engineering : Glser
Technical Facilites Engineering : Genco
Tile : KINETIC TILE
Designer : Catarina Almada Negreiros, Rita Almada Negreiros
Producer : Fábrica Cerâmica Viúva Lamego
Site Area : 258, 15 m2
Hydraulic Engineering : Glser
Technical Facilities Engineering : Genco
City : Porto
Country : Portugal