Ried Baufeld B "君主 "的217套公寓直接来自于总体规划的逻辑:建筑的外围被绿色景观所包围,在小区的内部则是一个对比强烈的密集庭院。
The 217 apartments of the Ried Baufeld B «Monarch» are directly derived from the logic of the masterplan: the buildings are surrounded by the green landscape on the outer edge with a contrasting dense courtyard towards the inside of the neighborhood.




建筑物与环境的结合来自于景观和建筑环境的紧密交织。庭院在住区中起着核心作用,因为它是一个社会互动的空间。
The incorporation of the buildings into the context emerges from the close inter weavement of landscape and built environment. The courtyard plays a central role in the settlement, as it serves as a space for social interaction.


预制砖构件的建筑元素作为一种强烈的身份识别,标志着对集体生活空间的高度赞赏。在这些拉长的、类似广场的院子里,邻里之间的社会生活可以展开。扩建的庭院结构包含洗衣房、婴儿房和各自住宅的屋顶露台。
The architectural elements of prefabricated brick elements serve as a strong identity and signal a high appreciation of the collective living space. In these elongated, plaza-like courtyards, a neighborly social life can unfold. The expanded courtyard structures contain laundry rooms, stroller rooms, and roof terraces for the respective residencies.


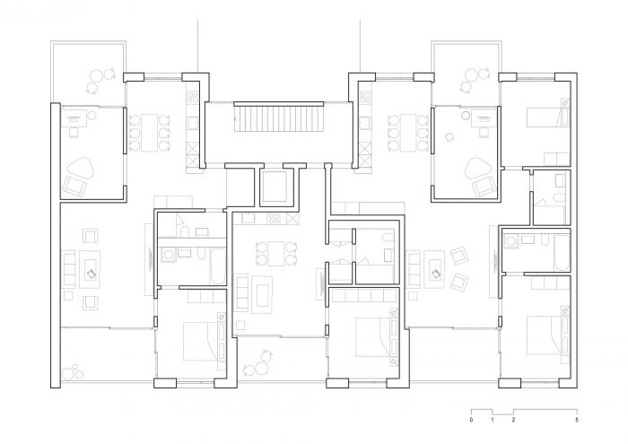
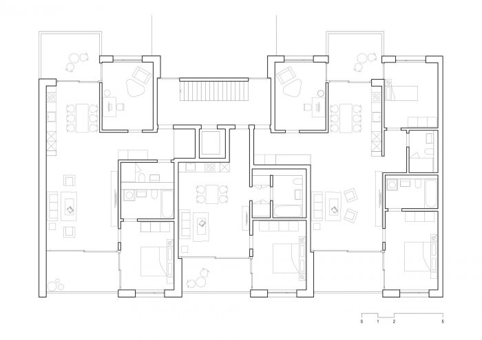
砖砌的体量成功地构建了住宅区,并创造了清晰的地址。东西方向的设计使楼层计划有连续的生活区,因此受益于宽阔的景观和社区庭院的品质。这使得一个新的、活泼的社区成为可能—这是该项目实施的主要目标。
The brick volumes successfully structure the housing estate and create clear addresses. The east-west orientation allows floor plans to have continuous living areas and therefore benefit from both the wide landscape and the qualities of the neighborhood courtyard. This allows for a new, lively neighborhood–the primary goal in the implementation of the project.










Architects: HILDEBRAND, Ruprecht Architekten
Area : 22200 m²
Year : 2022
Photographs :Roman Keller, Roland Juker
Lead Architects : Thomas Hildebrand & Rafael Ruprecht
Building Manager : Marti Gesamtleistungen AG
City : Köniz
Country : Switzerland