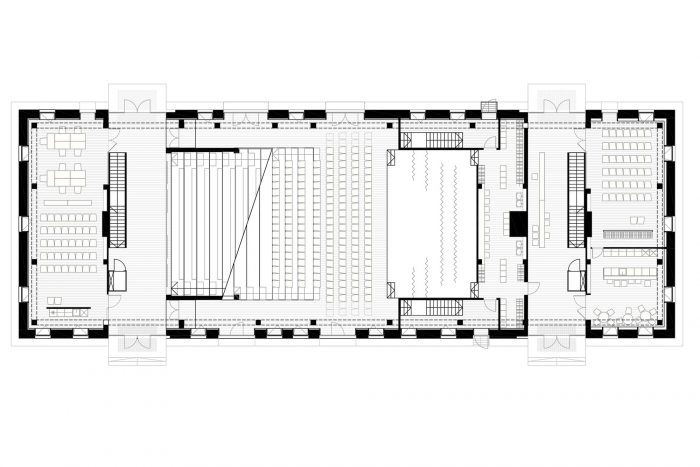
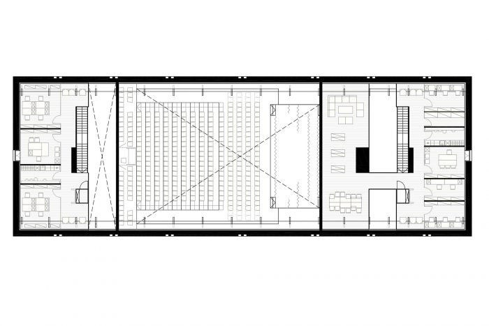
被拆除的Rietavas庄园的最后一座建筑--马车房--已经被重建为文化社区中心,以满足今天的需求。它有2个多功能厅,当地的商业发展机构,旅游信息中心,总面积为1800平方米。
One last building of demolished Rietavas manor - coach house - has been reconstructed to cultural community center to meet today’s needs. It hosts 2 multipurpose halls, local bussines development agency, tourist information center, holds in total 1800 sq.m.



多用途厅适合作为音乐会、戏剧表演、会议和社区会议的场所。
Multipurpose halls are fit to be a venue for concerts, theater perfomances, conferences and community meetings.

该项目展示了以非常柔和和尊重的方式来处理文物建筑和当代建筑的投入。
Projects demonstrates very soft and respectful manner to approach heritage building with input of contemporary architecture.



















Architects: AKETURI ARCHITEKTAI
Area : 1800 m²
Year : 2013
Photographs :Norbert Tukaj
Manufacturers : Jures Medis
HVAC Engineering : Klaipėdos Projektas
Project Management : Klaipėdos Projektas, Juozapas Tilvikas
Structural Engineering : Klaipėdos Projektas, Leonas Aužbikavičius
City:RIETAVAS
Country:Lithuania