这是位于里法纳(距首都圣保罗464公里)的一所房子,从零开始,建在格兰德河的一个水库边上,供一个由一对夫妇和两个年龄分别为19岁和22岁的男孩子组成的家庭在周末使用。
This is a house located in Rifaina (464 km from the capital São Paulo), built from scratch on the banks of a reservoir in the Rio Grande to be used on weekends by a family consisting of a couple with two male children, aged 19 and 22.





丰富的天然材料和纹理,设计师Cacau Ribeiro的室内设计与C4 Arquitetos的建筑设计并行,他们从头到尾采用了相同的审美语言。
Rich in natural materials and textures, the interior design by designer Cacau Ribeiro was created in parallel with the architectural design of the house, by C4 Arquitetos, who adopted the same aesthetic language from beginning to end.

在地板和部分家具上使用烧焦的水泥是客户的第一个要求,以实现所期望的外观--简约和优雅,并具有简洁性。"我们用砖石制作了床的底座和床头柜。卡考说:"我们用水泥板来获得更细腻的厚度,并使电视室的架子和长椅,用水泥奶油覆盖。"她补充说:"在浴室里,应客户的要求也使用了烧焦的水泥,尽管由于这种材料随着时间的推移会出现裂缝,所以不建议使用。据她说,这个项目的亮点是细木工制品。在易于清洁的大房间里,用稻草制成的大型橡木板将卧室和浴室隔开,伪装成入口。同样的资源被用于美食厨房,隐藏了通往浴室和洗衣房的通道。
The use of burnt cement on the floor and in part of the furniture was the first request of the client to achieve the desired look - minimalist and elegant, with simplicity. "We did the bases of the beds and the bedside tables in masonry. We used cement boards to obtain a more delicate thickness and to make the TV room's rack and the benches, covered with cement cream," says Cacau. "In the bathrooms, the burnt cement was also used at the client's request, although it is not recommended due to the cracks that the material can present over time," she adds. According to her, the highlight of the project is the carpentry. In the large and easy to clean rooms, large panels of oak with straw separate the bedroom from the bathroom, camouflaging the entrance. The same resource was used in the gourmet kitchen, hiding the access to the bathroom and laundry room.


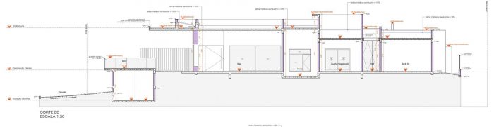
该项目的另一个亮点是客厅、走廊和浴室的天窗,它优化了自然光的使用,给人以宽广和与自然融合的感觉,有利于昼夜循环。"天顶灯的设计好的话,可以提供温暖和光明。我们与负责的建筑师一起构思,将这种自然光引入到空间中,使其变得宽广。我们在下面使用了biribes,这创造了一个美丽的阴影效果,根据太阳的入射率,每分钟都在变化,"Cacau解释说。
Another highlight of the project are the skylights in the living room, hallways, and bathrooms, which optimize the use of natural light, giving a feeling of amplitude and integration with nature, favoring the circadian cycle. "The zenithal lighting provides warmth and lightness when well designed. We conceived, together with the architects responsible, the idea of bringing this natural lighting to give amplitude to the spaces. We used biribes underneath, which created a beautiful shadow effect that changes every minute, according to the incidence of the sun," explains Cacau.



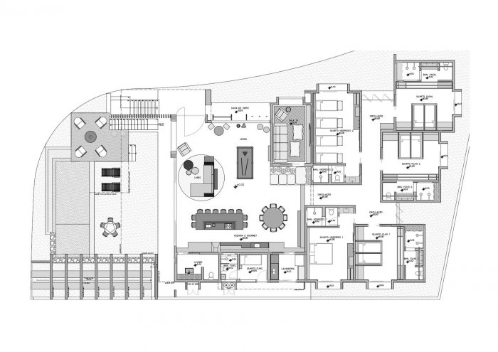
这座房子的建筑面积为377平方米,有一个大客厅,集成了美食空间和游戏区;外墙有一个 "水族馆",木制的微风正对着游戏室,里面放着滑雪设备、救生衣和划桨;洗衣房和厕所在美食厨房后面,被大型细木工板隐藏起来;电视室;四个大套间;桑拿和游泳池。
With 377m² of constructed area, this house has a large living room with an integrated gourmet space and games area; an "aquarium" on the façade, with wooden breezes facing the games room, where the ski equipment, life jackets, and paddles are kept; laundry room and toilet behind the gourmet kitchen, hidden by the large wood panel; TV room; four large suites; sauna, and swimming pool.









Architects: Escritório C4 Arquitetos, Cacau Ribeiro Interiores
Area : 377 m²
Year : 2021
Photographs : Denilson Machado - MCA Estúdio, Ligia Cordeiro
Fabricators : Artelier da Rua, AutoDesk, Gasparinox, Lucenera, Trimble Navigation
Responsible Architects : Gustavo Pinto, Marco Castro
Project Team : Graziele Barradas and Luiz Fernando Coradello
Engineering : Roberto Montans
Collaborators : Bruna Souza
Landscaping : Andrea Esteves
Lighting design : Filippo Giorgi
City : Rifaina
Country : Brazil