普罗维登斯最具特色的空间之一是RISD海滩,Pietro Belluschi的穿孔砖立面给这个连接四合院和市中心球体的公共空间提供了一个抽象的穿孔正面。正是这块砖成为了场地的构造胶水,有能力将场地向山坡上延伸,朝向展望街和新宿舍。砖块作为挡土墙、壁柱和北厅南北两面的接地立面。总体规划的任务决定了床位的最大数量,这反过来又创造了对场地来说规模过大的体量。
One of the most characteristic spaces of Providence is the RISD Beach with Pietro Belluschi’s perforated brick façade giving an abstract perforated front to the one public space that ties the Quad to the downtown sphere. It is this brick that has become the tectonic glue to the site, having the ability to ground the extension up the hill towards Prospect Street and the New Dormitory. The brick serves as retaining walls, pilasters, and the grounding façades of both the north and south faces of North Hall. The mission of the masterplan dictated the maximum amount of beds, which in turn created massing that was overscaled for the site.





位于菲利普-约翰逊(Philip Johnson)的List Building旁边,该建筑的策略是尽可能地从其体量中挖掘出更多的体量,以便将其子组件--角线、露台、材料变化--与Angel、Prospect和Waterman街上的各种背景元素联系起来。认识到几乎所有的当代建筑都是由层状单元(表皮系统、防潮层、防水层、石膏板)组成的困境,本建筑的表皮系统采用了周围环境中的光滑屋顶系统,即RISD和布朗校园中盛行的石板屋顶系统,用于其东面和西面。
Located alongside the List Building by Philip Johnson, the strategy for this building was to excavate out of its mass as much volume as possible in order to relate its sub-components—cornice lines, terraces, material shifts—to the various contextual elements on Angel, Prospect, and Waterman streets. Acknowledging the predicament that almost all of the contemporary construction is composed of laminar units (skin systems, vapor barrier, waterproofing, gyp board) the skin system on this building adopts the slick roof systems of the surrounding context, the prevalent slate roof systems of the RISD and Brown campuses, for its eastern and western faces.

这就使瓦片系统与遮阳篷窗一起具有纪念意义,遮阳篷窗的可操作性加强了瓦片系统。这些立面颂扬了薄的美学。对这个项目的构思至关重要的是采用复合系统的建筑技术,使材料的使用达到最佳状态。
This monumentalizes the shingle system in tandem with awning windows whose operability reinforces the shingle system. These façades celebrate the aesthetic of thinness. Critical to the conception of this project are building technologies that adopt composite systems to bring out the best of optimal material use.


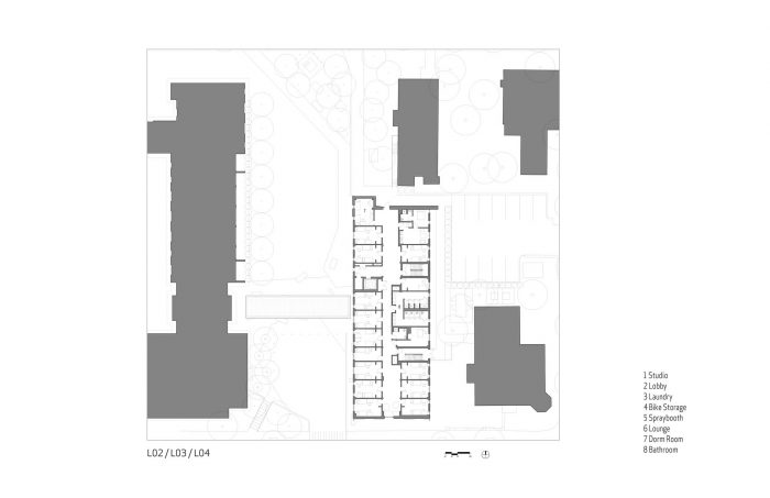
例如,通过具有交叉层压木材填充物的混合钢结构(新英格兰第一个混合CLT/钢结构住宅项目),我们能够获得9英尺高的原木天花板,而不需要添加饰面。反过来,这使得所有的机械系统都位于走廊中,只给入口墙的卧室供电,对房间的影响很小。这样一来,卧室就成了机械系统的集散地,新风的进风和输出与控制空气温度的可变冷媒流量装置共同工作。
For instance, by having a hybrid steel structure with cross-laminated timber infill (the first hybrid CLT/steel housing project in New England), we were able to gain 9’ high raw wood ceilings, without the need for added finishes. In turn, this allows all the mechanical systems to be located in the corridor, feeding the bedrooms of the entry wall only and having a minimal impact on the room. Thus, the bedroom serves as a plenum for the mechanical system with fresh air intake and output working in combination with the variable refrigerant flow unit that controls the air temperature.


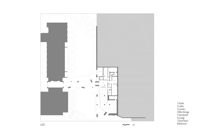
从校园社区的深思熟虑的意见中,设计的特点是为社交、制作、反思和创造性表达的公共空间,为满足当今艺术和设计学生的不同需求而量身定做。该建筑包括通过社交休息室、共享厨房、工作室、画廊空间,以及喷房和自行车库等促进互动的空间。
From the thoughtful input of the campus community, the design features common spaces for socializing, making, reflecting, and creative expression, tailored to meet the varied needs of today’s art and design students. The building includes spaces that facilitate interaction through social lounges, a shared kitchen, a studio, gallery spaces, as well a spray booth, and bike storage.












建筑师:NADAAA
面积:40750平方英尺
年份:2019年
摄影: John Horner
制造商:Sika, Kohler, Nordic Structures, Sherwin-Williams, Symmons, Chicago Faucet, Rhye furniture collection
设计总监:Nader Tehrani
主要负责人:Katherine Faulkner
Managing Principal:Arthur Chang
设计团队:Matthew Waxman, Gretchen Neeley, Nathan Vice, Richard Lee, Aaron Weller
代码:Jensen Hughes
施工经理:Shawmut Design and Construction
景观建筑:Landworks Studio
结构工程:Odeh Engineers
机械:Environmental Systems Inc.
电气:Reilly Electrical Contractors (RELCO)
水管工程:Arden Engineering Constructors
声学:Acentech
信封顾问:Wiss, Janney, Elstner Associates
规格:Kalin Associates Inc.
城市:Providence
国家:美国
Architects: NADAAA
Area: 40750 ft²
Year: 2019
Photographs: John Horner
Manufacturers: Sika, Kohler, Nordic Structures, Sherwin-Williams, Symmons, Chicago Faucet, Rhye furniture collection
Design Principal:Nader Tehrani
Principal In Charge:Katherine Faulkner
Managing Principal:Arthur Chang
Design Team:Matthew Waxman, Gretchen Neeley, Nathan Vice, Richard Lee, Aaron Weller
Code:Jensen Hughes
Construction Manager:Shawmut Design and Construction
Landscape Architecture:Landworks Studio
Structural Engineering:Odeh Engineers
Mechanical:Environmental Systems Inc.
Electrical:Reilly Electrical Contractors (RELCO)
Plumbing:Arden Engineering Constructors
Accoustics:Acentech
Envelope Consultant:Wiss, Janney, Elstner Associates
Specifications:Kalin Associates Inc.
City:Providence
Country:United States