位于Seinäjoki的Kasperi社区的Risuviita为自闭症谱系的人提供了一个社会住房和特殊住房的组合。该项目于2017年秋季竣工,在过去的几个月里,它受到了新居民的热烈欢迎,他们已经把这里当作自己的家,并在这里安顿下来。卡斯佩里的自闭症谱系新住宅区位于两条公园轴线的交汇处。新建筑与周围的公园进行了对话,并与附近的其他建筑结构形成了一个焦点,位于公园长长的视野尽头。
Risuviita in the Kasperi neighbourhood in Seinäjoki offers a combination of social housing and special housing for people with autism spectrum. Completed in the fall of 2017, it has been warmly welcomed by its new residents who have made it their home and settled in over the past few months. The new residential block for Autism Spectre in Kasperi is located at the intersection of two park axis. The new building takes its place in dialogue with the surrounding parkland and views in with the rest of the neighbourhood’s built structure forming a focal point at the end of the long vista over the park.



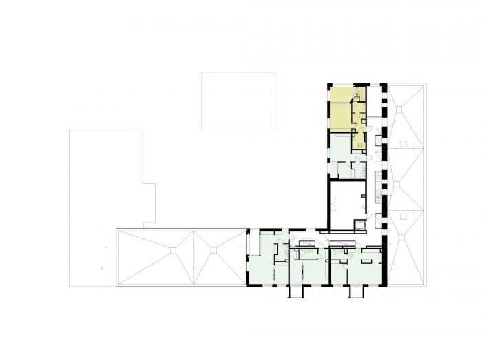
由于为自闭症谱系居民服务的9套公寓与提供社会住房的出租公寓位于同一栋楼里,Risuviita提供了一种平衡的不同形式的生活组合。然而,不同类型的公寓在功能上是相互分离的。在一个U型结构中,建筑从一层到四层高,反映了不同的建筑高度和建筑规模,这是由单户住宅、排屋和高达八层的公寓楼组成的社区的特点。Risuviita建筑在街区的南部较低,在街区的北部较高,在中间创造了一个有遮蔽的庭院,有一个舒适的小气候,并允许最大限度的日光和阳光进入庭院和公寓。
With the nine apartments serving residents with autism spectrum located in the same building with the rental apartments providing social housing, Risuviita offers a combination of varied forms of living in a balanced mix. However, the different types of apartments are functionally separated from each other. In a U-shaped formation, the building grows from one story high to four stories high reflecting the varying building heights and scale of buildings that is characteristic to the neighbourhood composed of a mix of single-family homes, row houses and apartment buildings of up to eight stories in height. The Risuviita buildings are lower on the southern part of the block and get taller towards the northern part of the block creating a sheltered courtyard with a pleasant microclimate in the middle and allowing the maximal amount of daylight and sun into the yard and the apartments.

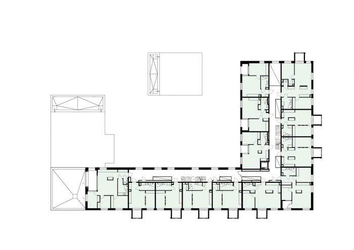
九套为自闭症患者准备的公寓被安置在建筑的第一层,面向有遮蔽的内院。出租公寓被安置在自闭症谱系患者公寓上方的楼层,同时也与他们相邻,这样可以使两种类型的生活都有自己的院子。停车场被放置在街区的西部,与建筑物和院子相隔一段距离。有盖的停车位被放置在通往街区的车道两侧,形成小块停车位和绿化开放区的交替模式。自闭症患者的住宅单元沿Risuviita街有自己的停车场。
The nine apartments that are intended for people with autism spectrum are placed on the first floor of the building facing the sheltered inner yard. The rental apartments are placed in the floors above the apartments for people with autism spectre as well as next to them in a way that allows both types of living to each have its own yard. Parking is placed to the west of the block a little distance apart from the buildings and the yards. Spots for covered parking are placed on both sides of the driveway leading up to the block in a manner that forms an alternating pattern of pockets of parking and open areas of greenery. The residential unit for people with autism spectre has its own parking along the Risuviita street.

有自闭症患者公寓的部分由三个单元组成。在街区的南部,有一个较大的单元,有四套公寓,为在那里工作的工作人员提供空间,以及用于用餐、烹饪和非正式社交聚会的共享空间。两个较小的单元提供了更多私人生活的机会。它们由两套不同大小的公寓和两套公寓的住户共同使用的共享空间组成。其中较小的公寓更适合需要更多支持和帮助的住户。大的那间则是为那些有能力更独立生活的住户设计的。
The part with the apartments for people with autism spectre is composed of three units. In the southern part of the block, there is a larger unit with four apartments, spaces for the staff working there as well as shared spaces for dining, cooking and informal social gathering. Two smaller units offer opportunities for more private living. They are composed of two apartments of different size and a shared space commonly used by the residents of each of the two apartments. The smaller of the apartments are better suited for residents who need more support and assistance. The larger one is designed for residents who are capable of more independent living.

公寓的规划允许对住户的独立生活、由单位工作人员协助的住户生活部分,以及为工作人员保留的独立空间进行明确的功能区分。在这种安排中,人们可以很容易地理解一种包含每个住户自己的院子、自己的公寓以及所有住户共同使用的室内和室外空间的构成。空间的特点逐渐从更多的公共空间变为更多的私人空间。在设计共享空间、室外区域以及院子里的循环和路径时,社会互动和交流的挑战已经被仔细考虑了。作为一个整体,该实体提供了一个社会互动的机会,同时尊重每个居民的个人需求和动机。共享空间的设计方式使它们可以很容易地根据需要进行改变和改造,并为各种用途提供机会。
The plan for the apartments allows for a clear functional differentiation between the independent life of the residents, the part of the life of the residents facilitated by the staff of the unit, as well as separate spaces reserved for the staff. In the arrangement, one can easily comprehend a composition containing a yard of one's own for each of the residents, an apartment of one's own, and the shared indoor and outdoor spaces that are commonly used by all of the residents. The character of the spaces gradually changes from more public to more private. The challenges of social interaction and communication have been carefully taken into consideration in the design of the shared spaces, the outdoor areas as well as in the circulation and paths in the yard. As a whole, the entity offers an opportunity for social interaction while respecting the individual needs and motivation of each of the residents. The shared spaces are designed in such a way that they can easily be altered and transformed according to need and offer opportunities for a variety of uses.



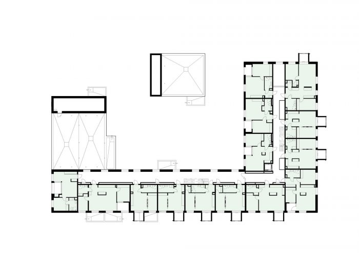
在公寓的设计中,住户的特殊敏感性得到了仔细的考虑,例如,在照明方面,可以根据需要调暗或调亮,特别注意自然光,在空间的清晰组织和功能划分方面,以及在空间的色彩和声学方面。公寓根据功能被明确划分为不同的区域。位于底层的公寓通过各自的门廊直接通向院子。门廊既是一个入口,也是一个露台。在较高的楼层,每套公寓都有一个独立的阳台。客厅空间围绕着阳台或露台布置,以便让日光根据白天和光线的自然节奏,以不同的方式进入房间。通过玻璃阳台,也有从一个室内空间开放到另一个室内空间的景观。也可以利用玻璃阳台来调整光线的水平,或调暗或利用自然的日光。
The special sensitivities of the residents have been carefully considered in the design of the apartments, for example in the lighting that can be made dimmer of brighter according to need, with a special attention to natural light, in the clear organization and functional division of spaces, as well as in the colours and acoustics of the spaces. The apartments are clearly divided into zones according to functions. Apartments on the ground floor have direct access to the yard through individual porches of their own. The porches serve both as an entrance as well as a terrace. On the higher floors, each of the apartments has a balcony of its own. The living room spaces are arranged around the balcony or terrace in such a way as to allow for daylight to enter differently into the room according to the natural rhythm of the day and light. Through the glazed balconies, there are views opening also from one interior space into another. It is also possible to use the glazed balconies to adjust the level of light, either dimming or taking advantage of the natural daylight.










Architects: OOPEAA
Area: 3915 m²
Year: 2017
Photographs: Mikko Auerniitty
Design Team (Competition Stage):VSU Landscape Architects, Anssi Lassila, Teemu Hirvilammi, Anne Kaivo-oja, Hanna-Kaarina Heikkilä, Pirita Hämäläinen
Client:Sevas Kodit Oy
Architect In Charge:Anssi Lassila
Project Architect:Anne Kaivo-Oja
Design Team:Anis Souissi, Iida Hedberg, Teemu Leppälä
City:Seinäjoki
Country:Finland