这是为135名儿童新建的,以 "培养想象力和乡情 "为理念。过去,主人的寺庙与当地人的关系更为密切,孩子们也得到他们更多的照顾。不仅是祈祷,还可以购物、散步、欣赏表演帐篷,因此,寺庙是每个邻居聚集的地方,有一个好的时间。孩子们也在那里玩耍,与当地人有良好的沟通,培养他们对家乡的热爱。但随着时代的发展,这种良好的关系越来越少。
This is a newly built for 135 children based on the concept ‘Cultivate Imagination and the Hometown Love. In the past, the owner’s temple was much closer to local people, and children were taken more care of by them. Not only for praying but also for shopping, taking a walk, and enjoying the show tent so that the temple was the place for every neighbor to gather and have a good time. Children play there as well, have good communication with local people and cultivate their love for their hometown. But the good relationship more and more decreased with the times.




英语中 "Manabu "的意思是 "学习",而 "Maneru "的意思是 "模仿",儿童通过模仿成人在日常生活中的行为来学习和成长。见到长者,学习如何玩耍和控制自己的身体,见到父母,学习礼仪,见到当地人,学习文化。这就是儿童发展其社交能力的方式。
As the word ‘Manabu’ which means ‘Learn’ in English deprived of ‘Maneru’ which means ‘Imitate’, children learn and grow up by imitating adults’ actions in daily life. See seniors and learn how to play and control their own body, see parents, learn manners, see local people, and learn the culture. This is how children develop their socializing skills.




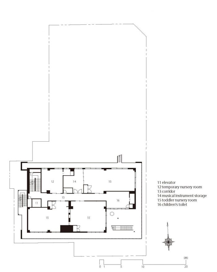
在这个项目中,操场是沿着寺庙的正面通道规划的,这样孩子们可以有更多的交流,发展他们的交流能力。面向寺庙正面通道的房间有一个大窗户,孩子们可以通过看到游客如何做礼拜和问候来与当地人沟通。
In this project, the playground is planned along the front approach to the temple so that children can have more communication and develop their communication skills. The room facing the front approach to the temple has a large window, where children can connect to the locals by seeing how visitors worship and greet visitors.


此外,二楼的幼儿室与三楼的婴儿室用攀爬网连接起来,这样不同年龄段的孩子之间的交流就会增加。晚辈通过崇拜长辈而成长,同时,长辈照顾晚辈,自觉成为长辈的一员。
In addition, the toddler’s room on the second floor is connected to the infant’s room on the third floor with a climbing net so that communication among different ages will increase. Juniors grow up by admiring elders, and at the same time, elders take care of juniors and become conscious of themselves as an elder.

铜粉被用作装饰材料和标志,以安装日本的传统风格和寺庙的本质。这样的材料可以让孩子们感到好奇,刺激他们的好奇心。另外,垂直的百叶窗让孩子们有机会感受到自然界的变化,如雨、阳光、阴影和风,从而培养他们丰富的思维方式。在这些方面,这个幼儿园是一个学习的地方,让他们在享受季节和时间变化的同时,培养他们丰富的思维方式。
The copper powder is used as finishing material and signs to install a Japanese traditional style and the essence of the temple. Such an ageable material makes children wonder and stimulates their curiosity. Also, the vertical louver makes chances for children to feel the change of nature like rain, sunlight, shadow, and wind, which develops their rich mindset. In these ways, this nursery is the learning place for them to develop their rich mindset while enjoying the change of the seasons and times.









Architects: HIBINOSEKKEI, Kids Design Labo, Youji no Shiro
Area : 1052 m²
Year : 2020
Photographs :Studio Bauhaus
City : Okayama
Country : Japan