这个地方的愿景是要创造社区。作为一个微型社会的典范,人们在这里找到了自己的隐私空间,以及聚集、交流、运动和教育的场所,我们在改造之前发现的结构已经有了很多我们今天所期望的空间配置。
The vision for this place was to create community. A model of a micro society where people find their own space for privacy as well as places of gathering, exchange, movement and education, the structure we had found prior to it's make over already had a great deal of that desired spatial configuration we find today.



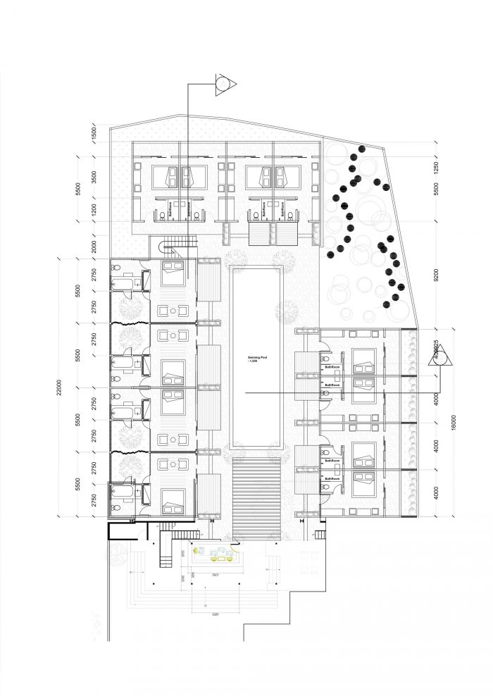
内院被3栋破旧的公寓楼包围,形成了手术的起点,通过增加更多的组件,推倒墙壁,打开坚实的混凝土墙,增加浴室和放置大窗户,使其有足够的光线,新鲜的空气和令人兴奋的视野。
The inner court yard, surrounded by 3 run down apartment buildings, formed the starting point for surgical and effective alteration of floor plans by adding more components, knocking down walls, opening solid concrete walls, adding bathrooms and placing large windows that would allow for enough light, fresh air and exciting views towards its surroundings.

漫游是一个城市的地方,它的密度是将人们紧密联系在一起的关键动力之一。我们给这些聚集的地方一个新的屋顶,在建筑物的顶部,用一座桥连接它们,广泛的甲板空间,咖啡馆,酒吧,餐厅,休息室和其他休闲区。此外,中央游泳池、最近完成的社区厨房和楼下的花园酒吧也为客人和游客提供了活跃的区域。
Roam is an urban place, and its density one of the key drivers to bring people together closely. We gave these places of gathering a new Roof on top of the buildings, connected them with a bridge, extensive deck space, cafe, bar, restaurant, lounge and other recreational areas. Also the central pool, the recently completed community kitchen and downstairs garden bar offer active areas for guests and visitors.

围绕建筑结构的巴厘岛生活是通过密度来实现社区的生活。将传统巴厘岛大院的模式提升到另一个层次,家庭作为一个交流和生活的有机体的感觉一直是Roam设计的关键驱动力。在一个屋檐下 "是另一个关键的设计动力。高效的天棚结构横跨所有的共享空间。通过一系列的材料,如竹子、锡和聚碳酸酯,不同的不透明度将这个地方变成了一个光明的,但又被保护的前哨,在高处俯瞰它的周围。
Balinese life around built structure is that of community through density. Taking the model of a traditional Balinese compound to another level, the feeling of family as an organism of exchange and life was always a key driver in the design for Roam. 'All under one roof' was another key design driver. The efficient canopy structure spans across all shared spaces. Different opacities through a range of materials such as bamboo, tin and poly carbonate turn the place into a light, yet protected outpost high up, overlooking its surrounding.

高大的竹子、棕榈树和其他植物使这里成为一个精心策划而又友好的家庭式场所。在我们对巴厘岛的热爱中,植物是一个关键的形象。这就是为什么它成为设计中最重要的材料。其他材料的选择是通过最佳的适合使用的材料。这涉及到可持续性的话题。你使用的材料越少越好。你建造的东西越少越好。这就是为什么我们选择与现有的建筑合作,用最少的材料对其进行改造,并以高效和细长的空心钢结构增加组件。
High grown bamboo, palms and other plants make the place into a orchestrated yet friendly and homely place. Plant life is a key image in the perception of why we love bali so much. that is why it became the most important material to implement into the design. Other materials were chosen through best fitness for use. This touches the topic of sustainability. The less material you use, the better.The less you build, the better. This is why we chose to work with an existing building, renovate it with the least amount of material, and add components with an efficient and slender hollow steel structure.

V字形的柱子、低矮的天花板和天棚的集群部分具有亚洲的、还原性的吸引力,以一种现代的方式回应它的周围,而不是模仿传统的建筑风格或材料。
The V shaped columns, the low pitched ceilings, and the clustered segments of the canopy have an Asian, reductive appeal to reply to its surrounding in a contemporary way, rather that mimicking a traditional building style or materials

漫游社区找到了一个它的集体和团结的地方,它将随着时间的推移而成长。这也意味着,这个地方可以在未来的几个月和几年里成长、过度生长、适应、老化和改变。该建筑提供了增加令人兴奋的新组件的机会,如会议室、办公室和演讲室、雨棚、桥梁和更多的花园空间。
The Roam community finds a place of its collective and togetherness that will grow throughout time. This means also that the place can grow, overgrow, adapt, age and change in the months and years to come. The architecture gives opportunity to add exciting new components such as meeting rooms, offices and lecture rooms, canopies, bridges and more garden space.

继续设计的选择是无限的,人们感觉到我们今天所拥有的是一个坚实的基础,为未来更多令人兴奋的事情打下了基础。
Options to continue the design are limitless, and one feels that what we have today is a solid foundation for more exciting things to come.















Architects: Alexis Dornier
Area: 1750 m²
Year: 2015
Construction:Surya Kembar Properti
Interior Design:Alexis Dornier
Client:Roam
City:Ubud
Country:Indonesia