Rogač房子位于Vis镇,在同名的岛屿上。房子建在一个陡峭的地块上,俯瞰Vis港口和历史中心,被许多百年树龄的角豆树所包围--因此得名(角豆树-Rogač)。它的布局是朝着田园诗般的海湾和大海的方向安排的。典型的单体结构由粗凿的石头制成,从陡峭的山坡和茂密的植被中升起,而房子的形状与附近的塔楼形状相呼应。
Rogač House is situated in the town of Vis, on the island of the same name. Erected on a steep plot, overlooking the Vis harbor and historical center, the house is surrounded by numerous hundred-year-old carob trees - hence the name (Carob - Rogač). Its layout is organized toward the view of an idyllic bay and the sea. The archetypal monolithic structure, made of coarsely chiseled stone, rises out of the steep slope and lush vegetation, while the shape of the house echoes the shape of the nearby tower.



外墙上的开口安排是对不同视线和隐私程度的深思熟虑的产物。较小的深窗洞口的俏皮造型唤起了像洞穴一样的庇护所的感觉,而较大的洞口,与露台和阳台相连,成为壮观的全景的框架。
The arrangement of the openings on the facade is a product of the thoughtful gradation of different vistas and degrees of privacy. The playful shaping of the smaller deep window openings evokes the feeling of a cavelike shelter while the larger openings, continuous with the terraces and balconies, act as frames for spectacular panoramic views.

房屋的建造采用了正宗的维斯石。石头与磨光的混凝土块和表面协同工作,构成了控制台的露台、阳台、通往房屋入口的桥、路径、凉亭和屋顶。这些表面被设计成从房子的石头结构中伸出来,就像它们被切断的桥梁一样。这座房子所选择的材料保留了当地传统的记忆,使古老的(石头)和现代的(混凝土)共生在一起。这座房子作为一个片段,尊重了与城镇历史中心的形式和建设性关系。
The authentic Vis stone is used for the construction of the house. The stone is in synergy with the honed concrete blocks and surfaces which make up the console terraces, the balcony, the bridge to the entrance of the house, the paths, the loggia, and the roof. The surfaces have been conceived to protrude out of the stone structure of the house as if they were cut off bridges. The chosen materiality of the house preserves the memory of the local tradition, bringing together a symbiosis of the archaic (stone) and the contemporary (concrete). The house as a fragment honors the formal and the constructive relationships with the historical center of the town.

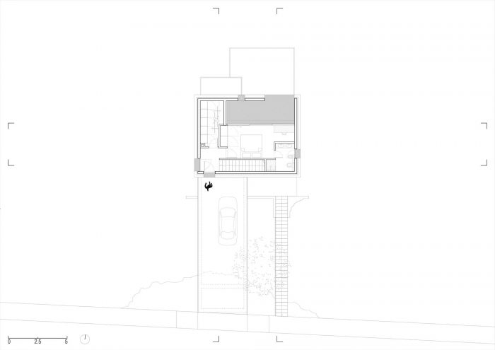
在它的南边,建筑地块的两侧是一条铺设好的道路。由于该地块所处的坡度特别大,再加上建筑法规要求房屋与道路有一定的距离,因此建造了一座混凝土桥作为通往房屋的唯一车道。这个面向道路的南部立面是完全空白的,其结构只剩下两个开口:房子的主入口,由桥来强调,另一个是侧面入口,由雕刻在陡峭地形上的长的外部楼梯来强调。
On its southern side, the building plot is flanked by a paved road. Due to the exceptionally steep slope on which the plot is situated, combined with the building regulations which require a house to be a certain distance from the road, a concrete bridge has been constructed as the sole driveway to the house. This southern facade, facing the road, is completely blank, reduced in its structure to only two openings: the main entrance to the house, accentuated by the bridge, and another, side entrance, accentuated by the long exterior staircase carved into the steep terrain.



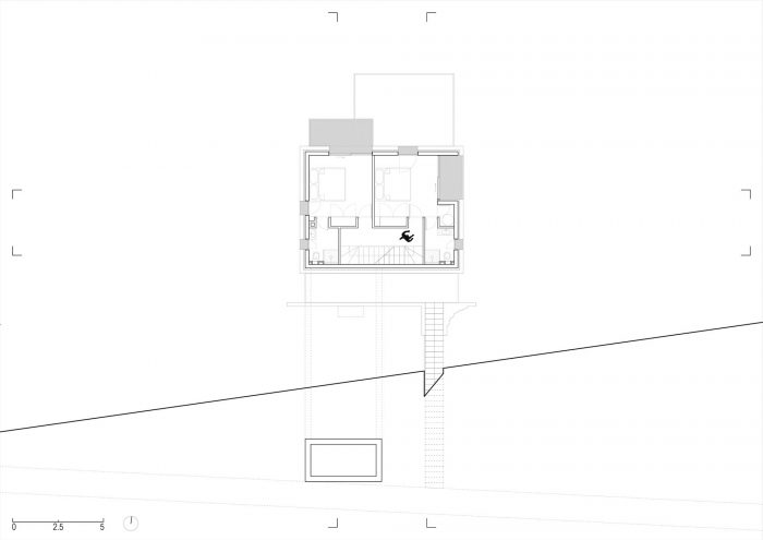
房子的顶层几乎完全被主卧室和相邻的浴室所占据。卧室通向屋顶平台,在高墙的保护下,可以看到维斯和达尔马提亚群岛的独特景色。一个控制台的楼梯通向两间卧室,每间卧室都有自己的浴室和私人阳台和凉亭。另一个楼梯进一步向下通往公共房间。
The top floor of the house is almost entirely taken up by the master bedroom with the adjoining bathroom. The bedroom opens out onto a roof terrace which, protected from all sides by elevated walls, offers a unique view of Vis and the Dalmatian islands. A console staircase leads down to two bedrooms, each with its own bathroom and private balcony and loggia. Another staircase leads further down to the common room.


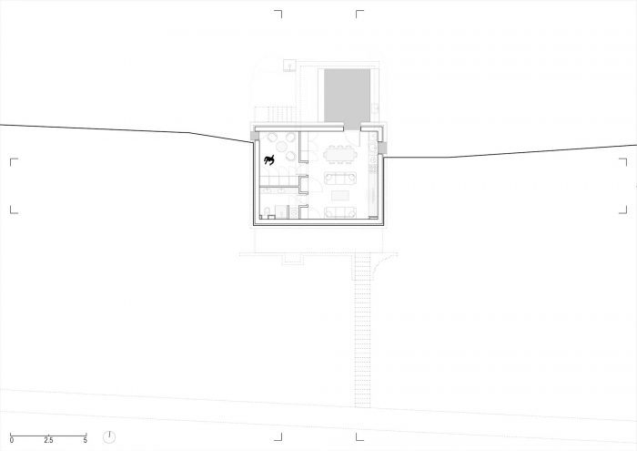
楼梯下的封闭空间隐藏着一个内置的浴室和储藏室,而开放的厨房、起居室和餐厅可以通向宽敞的控制台露台,这是夏季活动的焦点所在。嵌在丰富植被中的露台,利用了房屋提供的阴影和阴凉。房子的底层包括葡萄酒储藏室,它通向放置在上层露台的控制台下的遮阳的夏季厨房。这个空间成为一个亲密的花园露台,与一个单体混凝土游泳池相邻,被茂盛的角豆树所包围,角豆树也成为一个屏幕,将露台从外面隐藏起来。
The enclosed space under the staircase hides an inbuilt bathroom and storage while the open kitchen, living, and dining room give access to the spacious console terrace, the focal point of summer activities. The terrace, embedded in abundant vegetation, makes use of the shadow and the shade that the house provides. The bottom floor of the house includes wine storage and it opens onto a shaded summer kitchen placed under the console of the upper-floor terrace. The space becomes an intimate garden terrace, adjoined by a monolithic concrete pool, surrounded by the lush carob trees which also serve as a screen hiding the terrace from the outside.

































Architects: Studio Archaos
Area : 225 m²
Year : 2021
Photographs :Bosnic+Dorotic
Manufacturers : Ikea, ACB Iluminación, Adimax Astor, Bravarija Botica, Miocen
Lead Architect / Project Team : Srđan Ostojić, Toni Kerum
Cheif Civil Engineer / Project Team : Krešimir Ćavar
City : Vis
Country : Croatia