在瑞士康斯坦茨湖畔的小镇Romanshorn,一个位于市中心的教育、体育和休闲校园正在发展。在其入口处,人们发现了中学的建筑群。新的建筑取代了两座过时的建筑,并连接了未来和过去的发展。它与2000年的现有建筑一起构成了一个空间和功能单元,而沿着入口立面的新画廊则与位于对面的现有建筑建立了联系。其紧凑的设计和定位为校园入口处的未来发展留出了空间,占用了客户提供的最小的场地面积。
In Romanshorn, a small town located at the Lake Constance in Switzerland, a centrally located educational, sports and leisure campus is developing. At its entrance one finds the building complex of the secondary school. The new construction replaces two outdated buildings and links future and past developments. Together with an existing building from the year 2000 it forms a spatial and functional unit, while a new gallery along the entrance façade creates a connection with the existing building positioned on the opposite side. Its compact design and orientation leave room for future developments at the campus entrance, occupying a minimal footprint of the site being made available by the client.




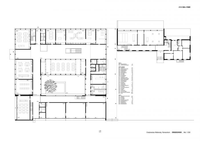
建筑的中心是Salão(大厅)和Patio(内院)。它们构成了建筑的字面核心。这些中心房间被全方位的走廊所包围,这些走廊是向内的,促进了建筑内的视觉接触。所有其他房间,如教室和小组活动室,都向外延伸到周围的校园区域。
In the centre of the building are the Salão (hall) and the Patio (inner courtyard). They form the literal core of the building. These central rooms are enclosed by the all-round corridors, which are directed inwards and promote visual contact within the building. All other rooms, such as classrooms and group rooms, are directed outwards to the surrounding campus area.

建筑物的垂直方向上有一个位于中心位置的开放楼梯和两个位于建筑物四角的截然相反的紧急楼梯。后者使得走廊可以被设计成可以自由使用的娱乐和活动区域,因为它们不必被设计成逃生通道。两层以上的采光井也为这里提供了视觉关系,并将日光从主要的棚顶引入建筑。
The building is vertically accessed by a centrally located open staircase and two diametrically opposed emergency staircases in the corners of the building. The latter allow the corridors to be designed as recreation and movement areas with free use, as they do not have to be designed as escape routes. Light shafts over two storeys also provide visual relationships here and bring daylight from the dominant shed roof into the building.

主入口在Pausenhof的方向。这个区域的屋顶提供了一个沿着整个立面到院子的受天气保护的户外空间。另一个入口在北面朝向门萨大楼,西面朝向一个操场,允许有几个通道进入建筑。
The main entrance is in the direction of the Pausenhof. The roofing in this area offers a weather-protected outdoor space along the entire façade to the courtyard. Another entrance is to the north towards the Mensa building and to the west towards a playground, allowing for several accesses to the building.


内部物质化强调了建筑的三个房间区域:核心区、运动区和教室或小组室。中央的Salão是建筑的 "客厅"。它的首选位置、灵活和开放的使用以及带有愉快的木质表面的设计使它成为学校特色的支柱。受压最重的运动区被矿化了。墙面是裸露的混凝土,地板是着色的硬混凝土。教室以 "Schulstube "一词为基础,并以白色石膏表面和可针刺的柜子正面进行古典的物质化。
The internal materialisation emphasises the three room zones of the building: core zone, movement zone and classroom or group room. The central Salão is the "living room" of the building. Its preferred location, the flexible and open use and the design with pleasant wooden surfaces make it the backbone of the school's character. The most heavily stressed movement zone is mineralised. The wall surfaces are exposed concrete, the floor is pigmented hard concrete. The classrooms are based on the term "Schulstube" and are classically materialised with white plaster surfaces and pinna-able cabinet fronts.

新建筑的外部外观一方面被周围现有建筑之间的比例和结构所调和。同时,该建筑通过使用陶瓷板和预制玻璃纤维混凝土元素的材料化,试图在混合环境中找到自己的独立性。
The external appearance of the new building is mediated on the one hand by the proportions and structure between the surrounding existing buildings. At the same time, the building seeks to find its independence in a mixed environment through its materialisation with ceramic slabs and prefabricated glass fibre concrete elements.















Architects: Architekturbüro Bernhard Maurer GmbH, Ricardo Bak Gordon
Area : 53550 ft²
Year : 2019
Photographs :Rasmus Norlander
Coordination : Nuno Costa, Eleonora Bassi
Collaboration : Catarina Farinha, Frederic Garrigues, Maria Barreiros, Stefano Farina
Client : Sekundarschulgemeinde Romanshorn-Salmsach
Construction Management : Bischof Partner Architektur AG
Foundations And Structures : Frick+Gattinger AG
Hydraulics And Mechanics : Gianotti AG
Electrics And Communications : IBG GRAF AG Engineering
Segurança : Josef Kolb AG, Ingenieure & Planer
Building Physics : Bakus Bauphysik + Akustik GmbH
Landscape : Pauli | Stricker GmbH Landschaftsarchitekten BSLA
Art Intervention : Rachel Lumsden
Refurbishment Area : 13777.81 ft2
Construction Cost : 14 560 000 CHF (BKP 2 Erstellungskosten)
Total Cost : 17 840 000 CHF (BKP 1-9 Gesamte Erstellungskosten)
Energy Standard : Minergie Standard
City : Romanshorn
Country : Switzerland