我一直在北海道进行设计活动,所以我的大部分项目都在那里进行。通过在一个非常寒冷的地方进行设计,我继续思考如何应对与其他地区完全不同的环境。它们主要是 "冷 "和 "雪"。当然,还有其他各种事情需要处理,但这些背景有很大的影响。在这种状态下,我感受到了 "防风室 "的可能性,并思考了扩展和多样性。
I keep on design activities in Hokkaido, so most of my projects ran there. By designing in a remarkably cold, I continued thinking on response to completely different contexts from other areas. They are mainly “cold” and “snow”. Of course there are other various things to deal with, but these contexts have the great impact. In this state, I felt the possibility of “a windbreak room” and thought about the expansion and diversity.



这不仅是一个物理反应,也是对快乐的反应。即使在建筑规范中,也有回应霜冻线区域的规则。然而,规范主要对应的是性能,而不是快乐。有些人认为这很自然,但我认为,它的标准是为了人们的快乐而制定的,这很自然。在这种情况下,我早就认为应该有区域性的标准,放宽对雪地里的 "屋顶 "尺寸的规定。降雪给我们的生活带来了各种限制。其中最严重的是清洁雪。房屋通常主要建在住宅区。这意味着,建筑覆盖率很低。因此,屋顶的尺寸变得更小。
This was not only a physical response, but also a response to pleasure. Even in the building code, there are rules that respond to the area of the frost line. However, the code primarily corresponds to performance, not to pleasure. Some people think it is natural, but I think that it is natural to think that its criterions are for the purpose of people's pleasure. In that case, I have long believed that there should be regional standards and easing of regulations about the size of the "roof" in the snowy land. Snowfall gives various restrictions to our life. The most serious of them is cleaning snow. Houses are often built mainly in residential areas. That means that the building coverage ratio is low. Therefore, the size of the roof becomes smaller.




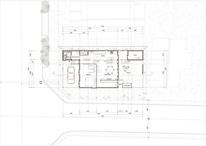
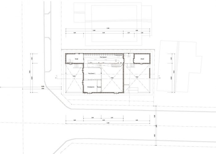
当我设计例如 "防风室 "和主要基础设施道路和停车空间之间的屋顶时,我一直在想的是,通过取消而不是放宽建筑覆盖率,雪地上的生活会得到极大的改善。此外,还有一种可能性,它可以导致创造该地区特有的景观。基于这种想法,我设计了这个房子。首先,我们设置了一个充满建筑覆盖率的大屋顶,并在其下面放置了一个紧凑的单间住宅。通过利用霜冻线来减少空气量。
What I always think about when I designed for example the roof of the approach between the “windbreaker room” and the main infrastructure road and the parking space is that the life in snowy land is dramatically improved by rather doing away with than easing of the building coverage ratio. Furthermore, there is a possibility that it can lead to the creation of landscape peculiar to the area. From this kind of thinking I designed this house. First of all, we set up a large roof full of building coverage ratio and placed a compact one-room dwelling below it. The air volume was reduced by using the frost line.

在室内空间和室外空间之间,大屋顶下有一个长方形。虽然这个空间在建筑规范中被视为室内,但从物理上讲,它可以说既是室外又是室内,既是半室内又是半室外。屋顶下的矩形响应了夏季和冬季的生活乐趣。而且它将连接生活与城市和地球空间。这也是一个中间区域的尝试和可能性。
Between the interior space and the outdoor space there is a rectangle under the large roof. Although this space is treated as an indoor in the building code, physically it can be said that both outdoor and indoor, semi-indoor and semi-outdoor. The rectangle under the roof responds to the pleasure of life both summer and winter. And it will connect life with the city and the earth space. It is also an attempt and possibility of an intermediate area.





















Architects: Jun Igarashi Architects
Area: 137 m²
Year: 2016
Photographs: Ikuya Sasaki
Lead Architect: Jun Igarashi
City:TOMAKOMAI
Country:Japan