在北罗马的一条安静的街道上,在一栋1940年的房子的屋顶上,我们建造了一个由钢和木头组成的轻型结构,以居住在一个新的空间并捕捉雨水。一个年轻的电影制片人的工作室,他决定买下一个预存的房子来改造它并住在里面。该项目是激活新场所的第一个合理的战略步骤,并使整体改造在经济上可行;一个小的、朴素的、温暖的和快速的工作,将允许租用一个独立的单元,在短时间内收回投资,并产生资金来改善房屋的其余部分。
On a quiet street in Roma Norte, on the rooftop of a 1940's house, we built a light structure, made of steel and wood, to inhabit a new space and capture the rain. A studio for a young filmmaker, who decided to buy a pre-existence to remodel and live it. The project is a first logical, strategic step, to activate new places and to make the integral remodeling economically viable; a small austere, warm and fast work, that would allow to rent an independent cell, in a short time to recover the investment and generate funds to improve the rest of the house.



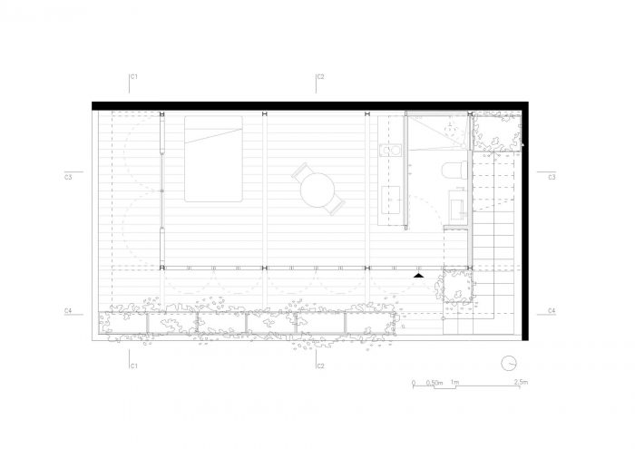
一切都是按模块设计的。主体结构由8根柱子组成一个矩形,柱子的间距为3.6米,每2.4米复制一次。小钢梁划定了周边的界限,每隔30厘米放置的木板支撑着一个轻型屋顶。
Everything is designed in modules. The main structure forms a rectangle from 8 columns 3.6m apart and replicated every 2.4m. Small steel beams delimit the perimeter and wooden planks placed on edge every 30 centimeters support a light roof.
从北侧进入,被一个新的楼梯和连接浴室和小厨房的墙所限定。西侧是由房屋原有的一道隔墙支撑。它的南面和东面的外墙是由铁艺和木头的折叠门窗组成的,以不同的方式控制光线和风的进入。内部空间向带有植被的甲板延伸,提供了新鲜感和隐私。
Access is from the north side, delimited by a new staircase and a wall that articulates the bathroom and kitchenette. The west side is supported by one of the house's pre-existing partition walls. Its south and east facades are made up of folding doors and windows of ironwork with wood, to control the entry of light and wind in different ways. The interior space extends towards a deck with vegetation that provides freshness and privacy.











Architects: TO
Area : 27 m²
Year : 2019
Photographs : Jaime Navarro
Team : Carlos Facio, José Amozurrutia, Úrsula Rebollar
Structural Engineering : Vectores Urbanos
Master Builder : Juan Manuel Escobar
Landscape: Landscape Workshop Environment
Water Catchment : Urban Island
City : Mexico City
Country : Mexico