背景介绍
该设计希望与罗斯康芒镇现有的城市纹理合作,以便为公共领域创造一个连贯的愿景。
罗斯康芒镇的主要机构--教堂和法院--在历史上与镇中心有些脱节,位于市场广场以西的一块土地上。
Context
The design looks to work with the existing urban grain of the Town of Roscommon in order to create a coherent vision for the public realm.
The principle institutions of Roscommon Town, -Church and Court- historically somewhat dislocated from the town centre, are located in pocket of land that sits to the west of Market Square.



新的市政办公室就位于这一带,它曾是19世纪刑事司法系统的一个区域,有法院大楼和郡目标的围墙。
在20世纪中期,除了一些围墙外,监狱被拆除了,而法院大楼在1960年代被扩建,有一个不雅观的混凝土附件,为县议会提供办公场所。正是在这种背景下,新的公民办公室被覆盖了。
It is this quarter, once a precinct of the C19th criminal justice system with its court building and walled enclosure of the County Goal, that the new civic offices are located.
The Gaol was demolished in the Mid 20th Century, apart from some boundary walls, while the Courthouse was extended in the 1960’s with an unsympathetic concrete annex to provide accommodation for the county council. It was onto this context that the new civic offices was to be overlaid.

策略
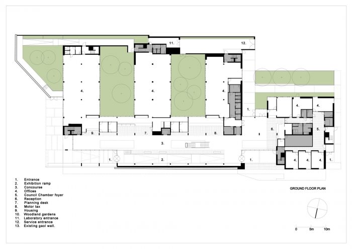
该项目包括约6600平方米的办公场所、实验室、食堂和理事会会议厅,在一个单一的建筑内,并在该镇的大背景下进行一系列独立的干预,以形成一个连贯的城市方案。
建筑本身是由互锁的体量组成的,在19世纪监狱的痕迹中建造,以创造各种外部空间--一系列的林地花园、前院和被上面办公室的悬臂结构所遮挡的有盖 "散步"。
Strategy
The project consists of some 6600m2 of office accommodation, laboratories, canteen and Council Chamber for the Council within a single building together with a series of discrete interventions within the greater context of the town so as to form a coherent urban proposal.
The building proper is composed of interlocking volumes constructed amid the traces of the C19th Gaol to create a variety of external spaces – a series of woodland gardens, a forecourt and a covered ‘walk’ sheltered by the cantilevered structure of the offices above.

一个线性的大厅为项目提供了主要的公共空间和主要的水平循环,将办公室的 "手指 "与议会厅套房连接起来。
A linear concourse provides the principle public space and primary horizontal circulation for the project linking the office ‘fingers’ with the Council Chamber suite.


从这个空间,游客可以在处理业务的同时欣赏到邻近的野生花园。一系列戏剧性的光轴穿过混凝土结构并衬以裂纹玻璃,提供了进一步的日光和瞥见上面的办公室的机会。
From this space, visitors can enjoy views into adjacent wild gardens while transacting their business. A series of dramatic light shafts cut through the concrete structure and lined with fritted glass provide further daylight and glimpses to the offices above.

议会厅是一个独立的套房,有自己的入口,位于方案的头部,被设计成一个宏伟的公共房间,用于议会功能和公民集会。角落里的窗户提供了县城的全景,以及远处连绵不断的风景--这是公民交流的适当背景。
The council chamber, an independent suite with its own entrance located at the head of the scheme, is designed as a grand public room for council functions and civic gatherings. A corner window affords panoramic views of the county with its rolling landscape beyond – an appropriate backdrop for civic exchange.

作为一个连贯的城市方案的一部分,该项目提议重新恢复理查德-莫里斯设计的19世纪法院的原始形式,拆除1960年代的附属建筑,并恢复西南立面,该立面现在面向新的公民办公室。
As part of a coherent urban proposal, the project proposes the re-instatement of the original form of the Richard Morrison-designed C19th Courthouse, by removing a 1960’s annex and restoring the southwestern façade which now addresses the new civic offices.



作为大项目的一部分,新的城镇停车场的建立为我们提供了机会,创造一条新的人行路线,穿过后院,以连接城镇中心和新的市政办公室。石头围墙被恢复了,铺设了花岗岩的鹅卵石以划定路线,并建造了一个混凝土亭子,以创造一个从停车场到法院和公民办公室的公民区的门户。
The creation of a new town car park as part of the greater project afforded us the opportunity to create a new pedestrian route through backlands so as to link the town centre to the new civic offices. Stone boundary walls were restored, pebble paving with granite sets were laid down to delineate a route, and a concrete pavilion constructed to create a gateway from the car park to the civic precinct of Court and Civic Offices.

材料
修复后的监狱石墙与办公室的主要立面融为一体,确立了项目的材料特性。
Materiality
The stone wall of the Gaol that was restored and integrated into the principle elevation of the offices established the materiality of the project.

坚固的清水混凝土墙包裹和折叠,以支持上层的白色渲染,而卡拉拉大理石则为建筑提供了一种荣誉的表达。橡木和LVL的窗框形成线性条状,深浅不一,将日光调节到办公室。
这种色调延伸到室内,地板是抛光的混凝土和白色大理石,墙壁是清水混凝土和裂纹玻璃,细木工制品是白枫木。
Robust fair-faced concrete walls wrap and fold to support upper floors of white render complimented by Carrara marble which in turn provides an honorific expression to the building. Window ‘boxes’ of oak and LVL form linear strips with deep reveals that modulate daylight to offices.
This palate extends to the interior where floors are of polished concrete and white marble, walls are of fair-faced concrete and fritted glass and joinery is of White Maple.

环境
该项目采用简单的技术和策略,以达到A3能源等级和BREEAM优秀认证。
浅浅的平面深度与自然通风相结合,裸露的混凝土结构和对日照的精心控制,有助于创造一个光线充足、温度适宜的工作环境。
Environment
The project uses simple technologies and strategies to achieve an A3 energy rating and a BREEAM Excellent certification.
Shallow plan depth combined with natural ventilation, exposed concrete structure and the careful control of insolation assist in creating a well-lit, well-tempered working environment.

生物质锅炉和光伏电池以及高水平的绝缘材料进一步支持了项目的环保目标。
A Biomass boiler and photovoltaic cells together with high levels of insulation further support the project’s environmental ambitions.







Architects: ABK Architects
Area : 6600 m²
Photographs :Christian Richters
Manufacturers : Pilkington, Technal, Metsa Woods, ATLAS AVAL, HTC, Huega, Icopal, Uniview, Wicona
BER Rating : A3
BREEAM Consultant : BDP
BREEAM Accreditation : Excellent
Environmental Consultants : Homan O’Brien Associates
Project Manager : PM Group
Main Contractor : Stewart Ltd
Client : Roscommon County Council
Conservation Architects : ABK Architects
Civil And Structural Engineers : Punch Consulting Engineers
Cost Consultants : AECOM, Galway
Landscape Architects : Hyland Edgar Driver
Fire Consultants : Ahearne Fire Engineering Consultants
Value : €12.8 million
Design Team : Criona Nangle, John Parker, Leonardo Ponce, Cliona Rice.
Civil : Punch Consulting Engineers
Structural Engineering : Punch Consulting Engineers
Conservation Architect : ABK Architects
City : Roscommon
Country : Ireland