位于巴特西的皇家艺术学院校园提供了一个教育、研究和创业的公式,探索科学、艺术和设计交汇处的创造性可能性。这是一个灵活的建筑解决方案,适应这个有着185年历史的机构不断变化的教学和研究计划,目的是团结和加强皇家艺术学院(RCA)的设计创新和创业文化。
The Royal College of Art campus in Battersea delivers a formula for education, research, and entrepreneurship that explores the creative possibilities at the intersection of science, the arts, and design. It is a flexible architectural solution that adapts to the constantly changing programmes of teaching and research at this 185-year-old institution, with the aim to unite and strengthen the culture of design innovation and entrepreneurialism at the Royal College of Art (RCA).



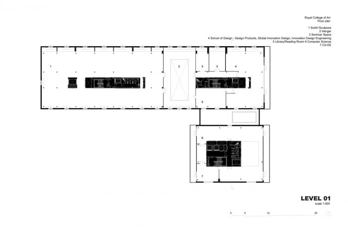
该场地占据了巴特西创意区现有RCA巴特西大楼南面的城市街区。该项目提供了15,500平方米的车间、工作室和研究空间;它由底层的车间和制造设施组成,支持沿Howie街的4层低层工作室大楼,以及沿Parkgate路的8层高的研究大楼。Howie街将成为RCA巴特西校区的主要通道。
The site occupies the urban block to the south of the existing RCA Battersea buildings within the Battersea Creative Quarter. The project delivers 15,500 sqm of workshop, studio, and research space; it is composed of a ground floor base of workshops and manufacturing facilities supporting a low-rise 4-storey Studio Building along Howie Street, and a taller 8-storey Research Building prominently located along Parkgate Road. Howie Street will become the main thoroughfare for the combined RCA Battersea Campus.


车间和工作室大楼的砖砌结构和大型北向夹层灯为巴特西桥路呈现出独特而有背景的轮廓;研究大楼的金属鳍为校园提供了独特的天际线标识。
The textured brickwork and large, north-facing clerestory lights of the workshop and studio building present a unique yet contextual profile to Battersea Bridge Road; the metal fins of the Research Building offer a distinct skyline identity for the campus.

连接性和灵活性。工作室是RCA活动的核心。车间空间被安排成一系列相互连接的体量,上面的工作室空间跨越和悬空,并包括工作室和研究空间的入口。街道层面的体量安排形成了一条通道,连接了沿豪伊街的现有RCA建筑,并允许通过场地的视野,大型的图片窗提供了与工作室的视觉连接。上面的工作室层的悬空体量在街道层提供了有盖的走道和遮蔽的座位区,以及上面的阳台和露台。
Connectivity and flexibility. The workshop is the nucleus of RCA activities. Workshop spaces are arranged as a series of interconnected volumes, over which the upper studio spaces span and overhang, and incorporate the entrances to the studio and research spaces. The street level arrangement of volumes forms a passageway that connects the existing RCA buildings along Howie Street and allows for views through the site and large picture windows provide visual connections to the workshops. The overhanging volume of the studio levels above provide covered walkways and sheltered seating areas at street level, as well as balconies and terraces above.

以前封闭的拉德斯托克街的一部分被纳入了底层;上面的工作室楼层横跨这个空间,创造了一个双层高度的 "机库"--一个用于生产和展示大型作品的灵活区域,其空间也足够举办RCA的集会和活动。这个空间也可以向公众开放,形成从豪威街到校园主要接待区的另一条通道。
A portion of the previously closed-off Radstock Street is incorporated into the ground floor; upper studio floors span across this space to create a double-height “Hangar” – a flexible zone for the production and display of large-scale work that is also spacious enough to host RCA assemblies and events. This space can also be opened to the public, creating another thoroughfare from Howie Street to the main reception area of campus.


工作室楼层提供了一系列三个梯形的楼板,每个楼板包括大约2000平方米的高质量工作空间。这些空间包含一个灵活的基础设施,可以适应RCA的一系列项目。除了为室内工作室提供自然光和空气的基本品质外,混凝土楼板还延伸形成悬臂式的外部走廊,提供遮阳和自然通风,并为在其中工作的人提供与户外的直接联系。
The studio floors provide a series of three terraced floorplates, each comprising approximately 2000 sqm of high-quality workspace. These spaces contain a flexible infrastructure that can be adapted to a range of RCA programmes. In addition to the essential qualities of natural light and air supplying the indoor studios, the concrete floorplates extend to form cantilevering external galleries, providing shade and natural ventilation, and an immediate connection to the outdoors for those working within.

研究楼位于底层工作室之上,由七个560平方米的楼板组成。与工作室楼层的原则相同,每个空间都是一个灵活的研究单位,配备了临时的实验室空间。创新RCA,新兴的研究生商业孵化器,位于5和6层。7层有一个活动空间和露台,可以看到北部和RCA校园的其他地方。
The Research Building is organised above the ground floor workshops as a cubic stack of seven 560 sqm floorplates. Sharing the principles of the studio floors, each space is a flexible research unit equipped with provisional laboratory space. Innovation RCA, the burgeoning post-graduate business incubator, is located on levels 5 & 6. Level 7 contains an event space and terrace with views towards the North and to the rest of the RCA campus.


强大的物质性。为了支持其作为一个高效和灵活的容器,能够适应不同的工作模式,巴特西校区的材料是简单而坚固的。室内由混凝土平板组合而成,支撑在8米长的混凝土填充钢管的网格上,并有一个暴露的、可适应的服务安排。
Robust materiality. To support its role as an efficient and flexible container that can adapt to different modes of working, the materiality of the Battersea campus is simple and robust. The interiors are formed from a combination of concrete flat slabs supported on an 8 m grid of concrete filled steel tubes, with an exposed and adaptable services arrangement.


底层的外墙是由简单的佛兰德邦德砖构成的,在一些区域打孔,用开放的花纹砖砌成,为车间和可操作玻璃板后面的雕塑工作室提供通风。在工作室的上层,底层砖的图案被翻转过来,通过独特的纹理暴露出头砖的切割端和制造的痕迹。
The ground floor façade is formed from a simple stock brick in a textured Flemish bond, perforated in areas with open patterned brickwork to provide ventilation to the workshop and sculpture studio behind operable glass panels. On the upper studio storeys, the ground floor brick pattern is turned inside-out, exposing the cut ends of the header bricks and marks of manufacture through a distinctive texture.

研究楼与砖石语言不同,采用了蜿蜒的白色鳍状物的垂直构成,在整个外墙进行校准,以缓和太阳辐射和眩光,并促进内部工作空间的自然通风。
The Research Building departs from the masonry language with a vertical composition of sinuous white fins, calibrated across the façade to moderate solar gain and glare, and facilitate natural ventilation to the workspaces within.

环境复原力。该建筑已达到英国建筑性能评估体系的优秀等级。其高效的形式是为了在一个灵活的围护结构内提供正确的日光控制、绝缘和自然通风水平,结合耐用、低维护的材料和可适应的服务组织。
Environmental resilience. The building has achieved a BREEAM Excellent rating. Its efficient form is derived to deliver the correct levels of daylight control, insulation, and natural ventilation within a flexible envelope, combined with durable, low maintenance materials and adaptable services organisation.

裸露的混凝土上层建筑具有高含量的水泥替代物,其质量为被动的内部提供了额外的热援助。此外,在工作室建筑的屋顶上有一个广泛的太阳能阵列,以减轻整体的能源负荷,设置在 "蓝色 "和 "棕色 "屋顶的组合中,以帮助满足可持续的排水要求,并促进更大的生物多样性。
The exposed concrete superstructure has a high content of cement replacement, and its mass provides additional thermal assistance to the passive interior. In addition, there is an extensive solar array located on the roof of the studio building to ease overall energy loads, set within a combination of ‘blue’ and ‘brown’ roofs to assist with sustainable drainage requirements and promote greater biodiversity.









Architects: Herzog & de Meuron
Area : 16841 m²
Year : 2021
Photographs :Iwan Baan
City:LONDON
Country:UNITED KINGDOM