几何和技术限制是这个位于特拉维夫市中心的复式公寓选择设计语言的关键。我们没有隐藏公寓的机械和电气系统,而是决定将其暴露出来,使其成为设计的一个组成部分。天花板和特色墙选择了具有丰富纹理的混凝土围护结构,并在项目的不同空间中仔细注意展示客户的折衷主义收藏。
Geometric and technical constraints were key to the design language which was chosen for this Duplex apartment in Central Tel Aviv. Instead of concealing the Mechanical and Electrical systems of the apartment, the decision was to expose them and make them an integral part of the design. A concrete envelope, which is rich in texture, was chosen for the ceiling and feature wall, and careful attention was given to the display of the client's eclectic collections, throughout the different spaces of the project.




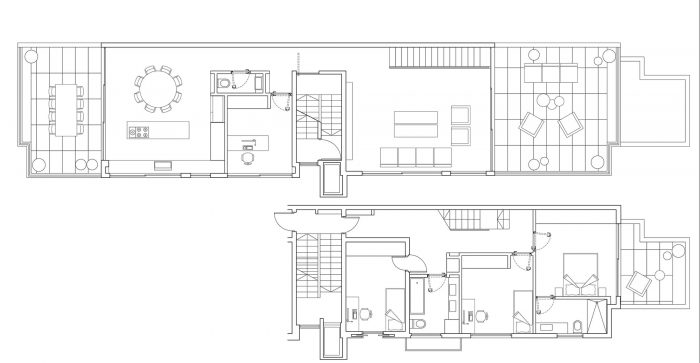
该复式住宅被设计成倒置的布局,利用位于顶部的较大的平面图,用于客厅、餐厅和厨房空间。而3间卧室和2间浴室则位于较小的底层。设计核心的一个关键元素是一个钢制楼梯,它从混凝土特色墙的一侧悬空,并与一个精致的连续栏杆相连,栏杆由非常薄的钢棒构成。
The Duplex was designed as an upside-down layout, utilizing the larger floor plan, situated on the top, for the Living, Dining, and Kitchen spaces. Whereas 3 bedrooms and 2 bathrooms were located on the smaller bottom floor. A key element at the core of the design is a steel staircase that cantilevers on one side from the concrete feature wall and is connected to a delicate continuous balustrade, constructed of very thin steel rods.



由于该公寓是现有建筑的新建扩建部分,主入口的位置在平面图的中心,是一个既定的位置。这将顶层平面分割成两翼。在西面,客厅有落地窗,将室内空间与阳台及其弗洛拉缓冲开来,而在东面,厨房和餐厅元素被连接在一个空间里,它面对自己的阳台和户外用餐区。
Since the apartment is part of a newly built extension to an existing building, the location of the main entrance, at the center of the floor plan, was a given. This dissects the top floor plan into 2 wings. On the west, the living room features floor-to-ceiling windows which buffer the indoor space from the balcony and its Flora, whereas on the east, the kitchen and dining elements are connected in one space, which faces its own balcony and outdoor dining area.














Architects: Erez Shani Architecture
Area : 180 m²
Year : 2021
Photographs :Tal Nisim
Manufacturers : Desalto, Ligne Roset, Living Divani
Lighting Design : Anna Zalsin Lighting Design
Project Management : Ben Ziv Group
Landscaping : Ganan al Ha'Gag
Metalwork : Whitson Yogev, Shlomo Dora
Woodworks : Kamoor
City : Tel Aviv-Yafo
Country : Israel