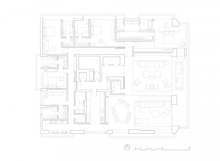
RS公寓被伊帕内玛海滩的360度景观所包围,是一个符合客户需求的项目:一个业主家庭可以去度过一些季节并接待他们在里约热内卢的朋友的地方。520平方米的平面图被完全调整,以便大部分的房间--五个套房,综合客厅、餐厅和家庭区以及服务区--都可以位于公寓的周边。由于入口被放置在工厂的中央部分,房间的分布方式填补了轮廓,因此被放置在外墙上--这提供了一个优越的视线。
The RS Apartment, surrounded by a 360º view of the Ipanema beach, is a project that matches customer demand: a place where the owner family could go to spend some seasons and receive their friends in Rio de Janeiro. 520m² floor plan was fully adapted so that most of the rooms - five suites, the integrated living, dining and home area and the service area - could all be located around the perimeter of the apartment. As the entrance is placed in the central portion of the plant, the rooms are distributed in a way to fill the outline, thus being placed on the facade - which offers a privileged sight.





空间中普遍存在着一种极简主义美学--以及一种舒适、友好和充满生活气息的氛围。这种情况是由混合了国内和国际选择的家具安排提供的--其中一些是由Arthur Casas设计的,如Amorfa桌子、Belly灯罩和Willy的餐具柜。此外,柔和的色调、纳沃纳石灰石地板和金属砌体在客厅中占主导地位--尽管陶瓷、德尔菲诺扶手椅和卡利托-卡瓦洛萨的画作在中性色彩中提供了一抹蓝色。同时,在房间里,浅色的橡木选择带来了温暖的感觉。
A minimalist aesthetic prevails at the spaces - as well as a cozy, friendly and full of life atmosphere. This situation is provided by a furniture arrangement that mixes national and international choices - some of them designed by Arthur Casas, such as Amorfa table, Belly lampshade, and Willy's sideboard. In addition, a soft palette, Travertine Navona stone flooring, and metal masonry predominate in the living room - although the ceramics, the Delfino armchair, and the Carlito Carvalhosa’s painting offer a touch of blue within the neutral colors. Meanwhile, in the rooms, a light oak option brings warmth.

尽管他们并没有真正住在这个地方,但有一个成功的尝试,就是既要管理好私密区域的个性,又要管理好客厅的伟大(这是聚集客人的理想区域)。找到的解决方案是一个长而隐蔽的推拉门,关闭时提供亲密感,打开时提供宽度。同样的解决方案也适用于夫妇的房间:如果有统一房间的意图,套房可以扩大。所有区域的概念之间的和谐融合在视野的增强中,里约热内卢的自然景观--这个项目一直强调的基本条件。
Even though they don’t actually live in the place, there is a successful attempt to manage both individuality of intimate areas and greatness of the living room (the ideal area to gather their guests). The solution found is a long and discreet sliding door, which provides intimacy when closed and width when opened. The same solution is applied to the couple’s room: the suite can be expanded if there is an intention to unify the rooms. The harmony between the concepts of all areas merges in the enhancement of the view, the natural landscape of Rio de Janeiro - essential condition always highlighted by this project.
























Architects: Studio Arthur Casas
Area : 520 m²
Year : Project Year
Photographs :Filippo Bamberghi
Manufacturers : Flexform, Andrew Neyer, Cassina, -, Arquivo Contemporâneo, Belcolore, Casas Edições, Casual Exteriores, Casual Interiores, Etel, Herança Cultural, Hugo França, Lumini, Micasa, Nani Chinellato, Phenícia, Studio Objeto, Tora Brasil, Way Design
Lead Architect : Arthur Casas
Project Team : Alessandra Mattar, Victoria Chaves, Sabrina Aron
Engineering : IACL Interiores - Arch. Carlos Affonso Agapito da Veiga
Lighting Project : Maneco Quinderé
Automation : NOISE
City : Rio de Janeiro
Country : Brazil