Bureau Fraai受Stadgenoot开发公司的委托,在这个过去四个世纪里一直以工业区著称的小岛上设计了一栋拥有21套中等收入出租公寓的住宅楼。四个世纪前,这里是荷兰东印度公司的造船厂所在地,在19世纪和20世纪的大部分时间里,这里一直是一个工业区,当时,这里的标志性建筑Van Gendthallen生产重型机械和机车。随着阿姆斯特丹市中心的密集化,Island Oostenburg现在变成了一个充满活力的高密度和多功能的社区。
Bureau Fraai was appointed by Stadgenoot Development to design a residential building with 21 middle-income rental apartments on the island that for the last four centuries had been known as an industrial area. After it started four centuries ago as the home of the shipyards of the Dutch East India Company, it remained an industrial area for the major part of the 19th and 20th century when among others heavy machinery and locomotives were produced in the still existing iconic Van Gendthallen. As the city centre of Amsterdam is densifying, Island Oostenburg is now transformed into a lively high-density, and mixed-use neighbourhood.





在红色单色建筑Red Ruby的设计中,Bureau Fraai从现有的Van Gendthallen中获得灵感,这些建筑的特点是红褐色的砖石和拱形屋顶。为此,对红宝石的砌筑非常重视,注重砌筑图案、方向和深浅错落的平衡构成。红色的灌浆砖砌体,红色的窗框、围墙、覆土的组合,使得单色外墙丰富而精致。这与典型的拱形屋顶相结合,因此与该地区城市设计师的要求无缝衔接,即要求 "一体成型 "的坚固建筑具有强烈的多样性特征。
For the design of the red unicoloured building Red Ruby, Bureau Fraai took inspiration from the existing Van Gendthallen, which are characterized by red-brown masonry and gable roofs. For that reason, much attention has been paid to Red Ruby's masonry with a focus on a balanced composition of masonry patterns, directions, and staggered depths. The combination of the red grouted brickwork, the red window frames, fences, and cladding has resulted in rich and refined unicoloured facades. This, combined with the archetypal gable roof, thus fits seamlessly into the brief of the urban designers of the area, in which solid buildings ‘out of one piece’ with strong diverse identities, were requested.

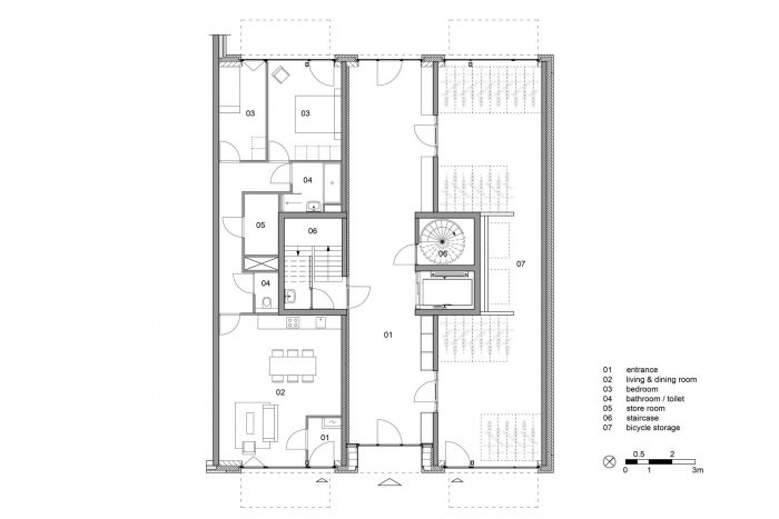
该住宅楼共有六层,共有21套中型公寓。上层的20套公寓采用开放式布局,大阳台、大窗户,使公寓感觉非常宽敞灵活。顶层的4套公寓,正好位于拱形屋顶下,有一个额外的层高,这使得引入夹层成为可能。
The residential building consists of six floors with a total of 21 medium-sized apartments. The 20 apartments on the upper floors have an open layout with large balconies and large windows, which makes the apartments feel very spacious and flexible. The four apartments on the top floor, which are located right under the gable roof, have an extra floor height, which makes it possible to introduce a mezzanine floor.



在底层,宽敞的入口大厅被设计成内部巷道,连接街道与集体庭院和自行车停车场。这里不仅仅是一个玄关,更是撞见邻居聊天的好地方。自行车停车位刻意没有隐藏在地下室中,而是设计成入口的一个组成部分,在临街的显眼位置,并采用高品质的装修和照明。
On the ground floor, the spacious entrance hall is designed as an internal alley that connects the street with the collective courtyard and bicycle parking. More than just an entrance hall, it is the perfect place to bump into your neighbours and have a chat. The bicycle parking is deliberately not hidden in a basement but rather designed as an integral part of the entrance with a prominent position on the street side and high-quality finishing and lighting.






建筑师:Bureau Fraai
面积:300平方米
年份:2020年
照片:Studio de Nooyer
制造商:Engels Baksteen, Living ceramics, Otis, Saint Gobain Gyproc
客户:Stadgenoot Ontwikkeling II b.v.
承包商: Heijmans Woningbouw
结构工程师:Goudstikker de Vries
声学工程师:Peutz
技术工程师 : Inbo
城市:阿姆斯特丹
国家:荷兰
Architects: Bureau Fraai
Area: 300 m²
Year: 2020
Photographs: Studio de Nooyer
Manufacturers: Engels Baksteen, Living ceramics, Otis, Saint Gobain Gyproc
Client:Stadgenoot Ontwikkeling II b.v.
Contractor:Heijmans Woningbouw
Structural Engineer:Goudstikker de Vries
Acoustic Engineer:Peutz
Technical Engineer:Inbo
City:Amsterdam
Country:The Netherlands