在河内市中心具有保护价值的建筑中加入现代元素,是我们这次为The Running Bean解决的方程式--当我们向北走时。目前的状况概述--这是一座位于河内中心的古老的房子,在几种形式的商业活动经过它之后,这个地方自然不再保留原有的设计。这座建筑的宽度相当狭窄,缺乏自然光,原始结构几乎被破坏。然而,古老的固有的一些哥特式的线条和理想的高度是仍然是亮点。
To add the contemporary to a building that has conservation value right in the heart of Hanoi is the equation that we need to solve this time for The Running Bean - while we head North. Current condition overview - This is an ancient house located right at the center of Hanoi, after several forms of business passed through it - naturally this place no longer conserved the original design. The building is quite narrow in width a lack of natural light and an almost corrupt original structure. However, the old inherent with a few Gothic lines and the ideal height is the spotlight of the remained.



有很多方法来保护一个遗留的价值,但Red5团队选择了冻结它。为什么我们叫它FROZEN?想象一下,冰山的象征,传播冷空气,冻结角落,以及古宅内的空间。我们使用了整合方形立方体、斜面阵列或斜面切割的方法,结合玻璃材料、玻璃砖的蓝色光调,创造出一种运动和蔓延的冰冻感。
There are many ways to preserve a legacy value but the Red5 team chose to freeze it. Why do we call it FROZEN? Imagine the symbol of the iceberg, spreading cold air, freezing corners, and spaces inside the ancient house. We used the method of integrating square cubes, slanted arrays, or diagonal cuts combined with glass materials, glass bricks with a blue light tone to create a sense of movement and spread of the freezing.





建筑的外墙被剥去了旧的砂浆层,露出了旧的砖墙。哥特式的图案被不锈钢包裹着,使其更具现代感。我们没有直接从正门进入建筑,而是把它推得更深一些,现在的入口大门是由玻璃墙制成的--由两种不同类型的透明和半透明玻璃镶成,创造出透明冰块的形象,里面有切口。在入口处,有一个玻璃砖地板,显示出下面铺设的原始水泥地板。
The facade of the building was stripped of the old mortar layer to reveal the old bricks wall. The Gothic pattern is wrapped in stainless steel to make it more contemporary. Instead of directly entering the building from the main gate, we pushed it back a little deeper, the entrance gate is now made of a glass wall - paneled by 2 different types of transparent and translucent glass to create the image of the transparent block of ice with cuts inside. Leading the way in, there is a glass-brick floor that reveals the raw cement floor laying beneath.


一楼的核心是开放的咖啡柜台,它是由透明玻璃砖和不锈钢制成。在柜台上方,有一个由蓝色玻璃和不锈钢制成的对角线矩形块,与冷冻运动产生强烈的共鸣。我们把两个侧墙的饰面砂浆层也去掉了,多放了一层斜面玻璃,以配合斜面的柜台天花板。由于宽度的劣势,我们想增加建筑的原始高度,我们通过额外放置一层镜子,使其感觉更高更大气。为了完成它,选择了黄色的灯光层作为主灯,但我们在柜台天花板内增加了一层蓝色的灯光,以创造颜色效果和冰山的感觉。
At the heart of the ground floor is the open coffee counter, which was made of transparent glass bricks and stainless steel. Above the counter, there is a diagonal rectangular block made of blue glass and stainless steel to strongly resonate with the freezing movement. We removed the finishing mortar layer on both of the sidewalls as well and put an extra layer of beveled glass to match the slanted counter ceiling. Because of the disadvantage of the width, we wanted to increase the original height of the building, which we did by placing an additional layer of mirrors to make it feel higher and airier. To finish it off, the yellow light layer was chosen to be the main light, but we added a layer of blue light inside the counter ceiling to create the color effect and the feel of the iceberg.


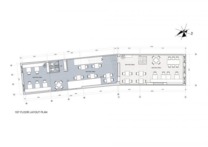
接下来,有一个供2-3位只想快速喝一口咖啡的客人使用的坐席区。这个区域使用混凝土墙和多层玻璃墙来隐藏厨房区和技术区,使其看起来更大。在开放式天花板的突出下,中庭负责在白天提供光线。主过道和楼梯系统由玻璃和蓝色LED灯组成,创造了一种在冰山内行走的感觉。在一楼,我们精心使用了由玻璃、镜子、彩绘石膏制成的盒子形状的阵列--将多种材料的盒子形状层层整合在一起,让人感觉到自己在冰山里面。
Next, there is a sitting area for 2-3 guests that just want to take a quick sip of coffee. This area uses concrete walls and layers of glass walls to hide the kitchen area and technical area and to make it seem larger. Highlighted with the open ceiling, the atrium is responsible for providing light during the day. The main aisle and the stairs system were made of glass and blue LED light, creating a feeling of walking inside the iceberg. On the first floor, we carefully used arrays of box shapes made from glass, mirror, painted plaster - to integrate multi-material box shape layers on top of each other, making it feel like you are inside the icebox.


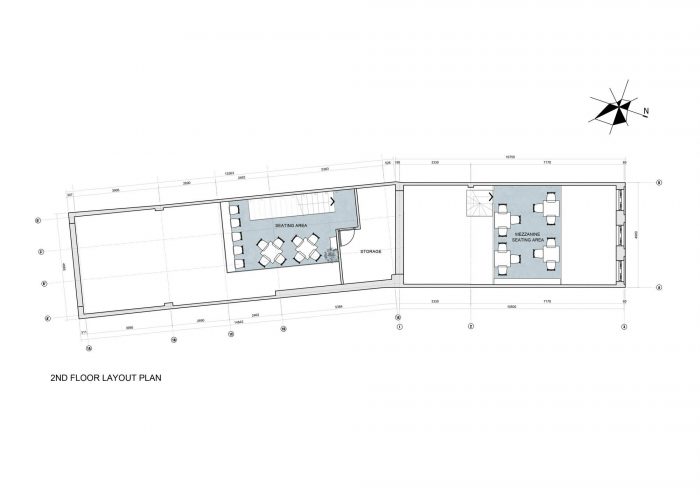
至于旧的砖墙,一部分被保留下来,另一部分则与米白色效果的墙面相结合。傍晚时分,整个空间被一种色调为蓝色的LED灯光所覆盖,反映出冰山的感觉--与底层相同。由于需要扩大面积和所需的座位数,我们将结构从两层改为三层,加上交织的夹层。天花板被推高,为自然光创造空间,以克服一开始的光线不足问题。
As for the old brick walls, some of them are kept, while the other is combined with the off-white effect wall. In the evening, the entire space is covered with a hue of blue LED light reflecting the feel of the iceberg - the same as the ground floor. Because of the need to enlarge the area and the number of seats required, we changed the structure from two to three floors plus the interwoven mezzanines. The ceiling is pushed up to create spaces for natural light, to overcome the lack of light problem at first.


这个项目的整个家具都是由与空间产生共鸣的材料制成的:不锈钢、工业皮革、水磨石、旧木头和房子的旧砖头遗迹。
The entire furniture of this project is made of materials that resonate with the space: stainless steel, industrial leather, terrazzo, old wood, and old brick remains of the house.





























Architects: Red5studio
Area : 240 m²
Year : 2022
Photographs :Wuyhoang Studio
Manufacturers : Lam.weavingspaces, Light Art, Van A Chau
Construction : Rex Interior
Design Team : Lai Chinh Truc, Nguyen Vinh Nhi, Tran Thi Kim Duyen, Pham Hoang Duy Nhan, Le Hung Thao
Client : Inn Saigon – The Running Bean
Country : Vietnam