Ryokan位于曼利的中心地带,就在著名的曼利海滩前面,这是游客、冲浪者和排球运动员经常光顾的澳大利亚标志性海滩。该建筑最初是一个两层的维多利亚式酒馆,建于18世纪末。多年来,上面又多建了两层,变成了一栋四层的混合用途建筑,底层是商店,上层是公寓。
The Ryokan is located in the heart of Manly, right in front of the famous Manly Beach, an iconic Australian beach frequented by tourists, surfers, and volleyballers. The building was originally a two-story Victorian-style tavern, built in the late 18th century. Over the years, two extra stories were built on top, turning it into a four-story mix-use building, with ground-floor shops and upper-story apartments.




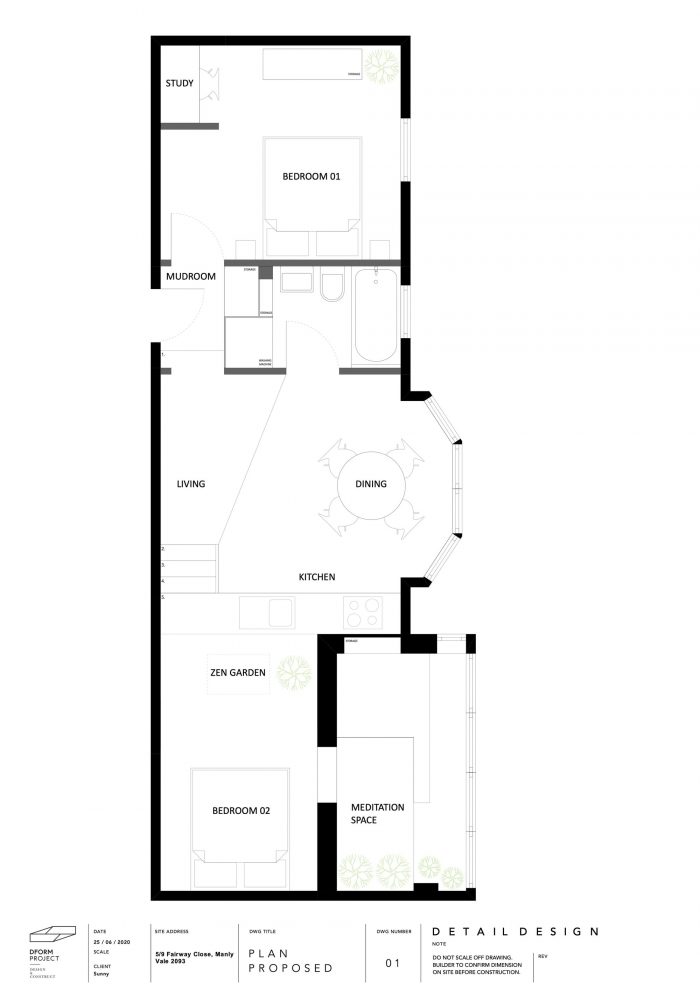
在Dform Projects公司的Dan Yang重新设计之前,该楼层的规划并不是特别周全......没有很多华丽的曼利阳光进入这个52平方米的公寓。这一点,加上复杂的管道,给建筑师带来了挑战,需要一个创造性的设计方案。建筑师拆除了卧室的墙,让自然光更深入地进入公寓,并将浴室移到远离入口的地方。他们还打通了厨房、客厅和餐厅的空间,将它们合并成一个更大的重叠区域。
Before the redesign by Dan Yang from Dform Projects, the floor plan was not particularly well thought out… not a lot of that gorgeous Manly sunshine made its way into the 52sqm apartment. This, alongside the complex plumbing, created a challenge for the architects that required a creative design solution. The architects demolished the bedroom wall to allow natural light to penetrate deeper into the apartment and moved the bathroom away from the entrance. They also opened up the kitchen, living, and dining spaces, combining them into a larger, overlapping area.


落地木材的引入将 "外部 "带入,增强了公寓的 "自然 "感觉,这是应客户要求向美丽的环境点头,以创造 "独特的曼利体验"。这种感觉从第一个入口处就可以看出来,在这里,美和功能相遇。门厅是杂物间和玄关的混合体,玄关是一种日本的入口。这里有一个壁龛,可以挂外套和放钥匙。壁龛下面有一个储鞋的口袋。
The introduction of floor-to-ceiling timber brought the ‘outside’ in, enhancing the ‘natural’ feel of the apartment, a nod to the beautiful surroundings at the clients request to create ‘a uniquely Manly experience’. This feeling is evident from the first point of entry where beauty and function meet. The foyer is a hybrid of a mudroom and a genkan, a Japanese entryway. There is a niche to hang jackets and place your keys. Below the niche is a pocket for shoe storage.

玄关。在起居室创造了一个浮动的平台,创造了一个榻榻米式的生活区,也通向卧室。在厨房里,亚光黑色元素与厨房防溅板上的青铜镜相遇。建筑师决定,在这种木质背景下,铜镜可以创造出一种更柔和的环境反射。
The entrance. A floating platform was created in the living area creating a Tatami-style living area that also leads to the bedroom. In the kitchen, matte black elements meet bronze mirrors for the kitchen splashback. The architects decided a bronze mirror in this wooden context can create a softer ambient reflection of the surrounding.

厨房。厨房的长凳与卧室的平台无缝融合。在进入卧室时,有一个禅宗花园,墙上有一棵盆景树出来。花园坐落在与厨房相连的玻璃墙后面。零维护的盆景树来自栩栩如生的材料,战略性地放置在天窗下,所以每天12-1点左右自然阳光进入空间,照在盆景上。在花园的另一边是一个透明的窗帘,允许光线通过卧室,但也提供了隐私。
The kitchen. The kitchen bench blends seamlessly into the bedroom platform. In entering the bedroom, there is a zen garden with a bonsai tree coming out of the wall. The garden sits behind a glass wall that connects with the kitchen. Zero maintenance Bonsai Tree from lifelike materials, strategically placed under the skylight, so around 12-1 everyday natural sunlight comes into the space and shines on the Bonsai. On the other side of the garden is a sheer curtain that allows light to pass through to the bedroom but also provides privacy.

在床垫旁边,有两个小的定制壁龛作为床头柜,上面有两盏壁灯,用于营造夜间的氛围。卧室的旁边是一个冥想空间。冥想空间的入口是通过一个小窗洞,其灵感来自日本传统茶馆。建筑师有意降低了天花板,提高了平台,以压缩垂直空间,引导你在通过开口后坐在平台上。在这里,建筑师增加了另一个零维护的垂直花园。在这个房间里,你可以从工作和压力中脱离出来。
Beside the mattress, two small custom niches act as bedside tables, above which are two wall lights for night time ambiance. Next to the bedroom is a meditation space. The entry to the meditation space is through a small window opening inspired by traditional Japanese teahouses. The architects intentionally lowered the ceiling and raised the platform to compress the vertical space directing you to sit on the platform once passed through the opening. Here, the architects added another zero maintenance vertical garden. In this room, you can detach from work and stress.

冥想空间。卧室和冥想室下面有大约15立方米的储存空间,可用于储存大件和季节性物品。第二间卧室隐藏在主入口的另一侧。当卧室的门打开时,木材包覆的隔墙成为木材玄关的延伸。一个小而实用的书房隐藏在门厅延伸部分的后面。
The meditation space. There is roughly 15m3 of storage space underneath the bedroom and the meditation room which can be used for storing bulky and seasonal items. The Second bedroom is hidden on the other side of the main entrance. When the door to the bedroom opens, the timber cladding partition wall becomes an extension of the timber Genkan. A small but practical study is hidden behind the foyer extension.









Architects: Dform Project
Area : 52 m²
Year : 2021
Photographs :Never Too Small | Nam Tran
Manufacturers : Australian Timber Ceilings, Wonderwood
Interior Design And Construction : Dan Yang
Interior Design And Styling : Sunny Wang
Model & Fashion Designer : Romon Yang
Videographer : Never Too Small (NTS)
City : Manly
Country : Australia