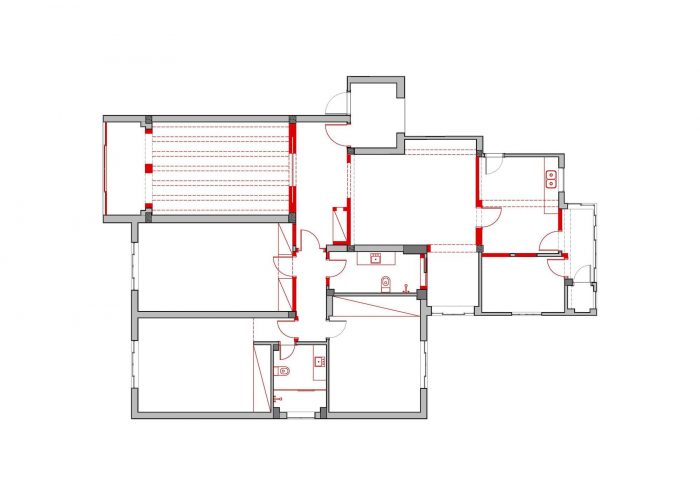
这座位于Higienópolis社区的公寓仍然符合1940年代的原始规划。尽管它有宽敞的房间,但它们都是分割的。墙壁限制了人的流动,也限制了自然光和通风。我们的愿望和挑战是将这些生活区连接成一个单一的空间。对社交区的干预建议是在阳台和厨房之间建立一个永久的连接,那里是最宽敞的光线入口,为空间的使用开辟了新的视角。
The apartment located in the Higienópolis neighborhood was still in accordance with the original plan from the 1940s. Despite its spacious rooms, they were all segmented. The walls refrained the flow of people, and also natural light and ventilation. The desire and challenge were to connect the living areas into a single space. The intervention proposal for the social area was to create a permanent connection between the balcony and the kitchen, where the most generous light entrances are located, opening up new perspectives for the use of the space.



当墙壁被放下的时候,我们决定将柱子和横梁留在裸露的混凝土中,房间的板块没有任何干预,只间接照明。我们设计了一个特殊的灯具,放置在墙壁与石板的交界处,以突出它们。墙壁上过多的装饰物、假木梁和纹理被移除,只保留了被修复的镶木地板。在客厅里,一个新的混凝土长凳按照建筑的原始结构作为边柜使用。
While the walls were put down, a decision was made to leave the pillars and beams in exposed concrete and the slabs of the rooms free of interventions, lit only indirectly. A special light fixture was designed and placed where the walls meet the slabs in order to highlight them. Excessive finishings, fake wooden beams, and textures were removed from the walls, keeping only the parquet, which was restored. In the living room, a new concrete bench works as a sideboard in accordance with the original structure of the building.



在建筑调查中,我们注意到阳台已经与客厅融为一体。我们选择回到原来的计划,在这个计划中,它们是分开的。一扇新的玻璃门使两个区域在需要时可以连接起来。
During the architectural survey, we noticed that the balcony had been integrated with the living room. We chose to return to the original plan in which they were separated. A new glass door enables the connection between both areas when needed.


厨房通过一个开口与客厅相连,这是基于在两个房间之间保持持续沟通的愿望。这个框架被涂成绿色,以突出干预。一个水磨石柜台在这些空间之间提供了更大的整合。聚集在客厅的人,可以坐在一起,分享烹饪经验。
The kitchen is connected to the living room, through an opening, based on the desire to maintain constant communication between the two rooms. This frame is painted green to highlight the intervention. A terrazzo counter provides greater integration between those spaces. The ones gathered in the living room, can sit together and share the cooking experience.


除了被隔离之外,厨房还不够大,不能包括一个早餐桌。因此,厨房的面积被增加了,为桌子和一个更大的柜台提供了空间。这一改变需要改变通往洗衣房的通道,以前洗衣房很小,但光线充足。一个新的窗户让光线从洗衣房穿过厨房。
In addition to being isolated, the kitchen was not large enough to include a breakfast table. Therefore, the kitchen area was increased providing room for both a table and a larger counter. This alteration required changing the access to the laundry room, previously tiny but with abundant light. A new window allowed the light to pass through the kitchen from the laundry room.

像大多数老式公寓一样,这间公寓的浴室面积不大,也缺少供客人使用的盥洗室。由于浴室很大,所以可以将其中一间分成两间,一间是孩子的浴室,另一间是盥洗室。
Like most old apartments, this one had few bathrooms for its size and also lacked a lavatory for guests. As the bathrooms were large, it was possible to split one of them into two, a bathroom for the children and, the lavatory.


该公寓有三个房间,用一条走廊与社交区分开。其中一个房间被改造成了电视室,并改变了它通往社交区的通道。通过拆除走廊和电视室之间的墙,创建了一个面向亲密走廊区域的衣柜。
The apartment had three rooms separated from the social area by a corridor. One of these rooms was adapted to a TV room and its access changed to the social area. By demolishing the wall between the hallway and the TV room, a wardrobe was created facing the intimate corridor area.




Architects: Renata Lovro Arquitetura
Area: 220 m²
Year: 2021
Photographs:Paula Monroy
Manufacturers: Adobe, Archicad, AutoCAD, Color Mix, Deca, Fogões shop, Mazza Cerâmicas, Poloar, Suvinil
Project Team: Renata Lovro, Marina Legaspe, Fernanda Serra Tavares
Civil Engineering: Mário Negrão
City: São Paulo
Country: Brazil