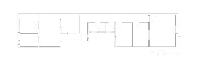
该项目包括将位于巴塞罗那圣安东尼区的一套1880年的公寓改造成两座阁楼。通过滑动门和门廊系统连接街道和院子,创造了一个新的住房景观,让人想起日本的传统房屋。原来的住宅被走廊和房间完全分割开来,彼此之间和与外部几乎没有联系。第一个意图是通过拆除现有的隔墙、地板和天花板来打开空间和恢复原来的高天花板,增加自然采光和促进通风。
This project consists in the conversion of an 1880’s apartment into two lofts, located in the Sant Antoni district of Barcelona. A new housing scenery is created by a succession of rooms that connect the street to the courtyard through a system of sliding doors and porticos, reminiscent of the Japanese traditional house. The original dwelling was totally compartmentalized by corridors and rooms barely connected to each other and to the outside. The first intention was to open up the space and recuperating the original high ceilings by demolishing the existent partition walls, floor and ceilings, increasing the incidence of natural lighting and promoting ventilation.





结构和方案。设计利用了建筑现有的结构,由一系列承重墙和木梁组成,创造了一个简单而诗意的语言,产生了一个灵活的程序。承重墙都被改变了,以实现有序的几何形状的重复,建立了不同房间之间的界限。新的开口是由结构加固物设置的,不再需要的孔隙被填上。这个元素被重新建造了两次,以满足住宅的功能要求;因此,现有的结构定义了程序,而程序定义了修改后的结构。通过这种干预,一个新的23米长的视觉从街道到庭院穿过空间,产生了一连串的门槛和与外部相关的房间,增强了阁楼的视觉深度。
Structure and program. The design takes advantage of the building existent structure, formed by a sequence of load-bearing walls and wooden beams, to create a simple and poetic language that generates a flexible program. The load walls were all altered to achieve a repetition of an ordered geometry which establishes the limits in-between the different rooms. New openings were set up by structural reinforcements and apertures that were no longer needed were filled in. This element is built again twice to meet the dwelling functional requirements; therefore, the existent structure defines the program while the program defines the modified structure. With this intervention a new 23 meters long visual crosses the space from the street to the courtyard, giving rise to a succession of thresholds and rooms related to the exterior that enhances the visual depth of the lofts.

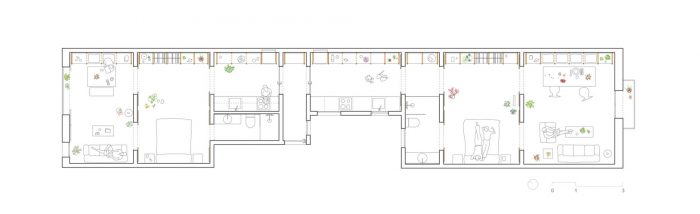
滑动的门和边界。不同空间之间的边界具有相同的墙面和孔径比例,这为安装栗色的滑动门提供了可能性,当滑动门打开时,完全覆盖了白色的墙壁。这个系统产生了灵活和扩散的限制,创造了一个动态的构图,房间可以是完全的、部分的或互不相关的。当门关闭时,每个房间本身就是一个实体,而当门打开时,每个房间是一个完整实体的一部分。作为光和影的过滤器,门在扩大或收缩空间的同时,为居民提供隐私。这些轻盈的元素给空间带来了新的规模,强调了其垂直维度。另一个视觉效果是,这些门的比例相同,但尺寸比传统的门要大,这让人感觉身处一个更高的空间。
Sliding doors and boundaries. The boundaries between the different spaces have the same ratio of wall surface and aperture, which opens the possibility for installing chestnut sliding doors that completely cover the white walls when there are opened. This system generates flexible and diffuse limits that create a dynamic composition where the rooms can be completely, partially or non-related to each other. When doors are closed, each room is an entity in itself, whereas when the doors open, each room is part of a complete entity. Acting as light and shadow filters, the doors expand or contract the space while providing privacy to the inhabitants. These svelte elements give a new scale to the space emphasizing its vertical dimension. Another visual effect that provides the perception of being in a higher space is the fact that the apertures have the same proportion but larger dimensions than a conventional door.



灵活的货架系统。阁楼的存储需求由一个创新的23米长的货架结构解决,该结构由木梯构成,中间的距离为60厘米。41个梯子的阶梯支撑着白色的钢筋和白色的漆面木板,它们稳定了系统的水平负荷,并根据它们放置的高度而具有不同的功能。房间的程序决定了这个模块化灯光系统的使用;在起居室,它作为一个大长凳和图书馆,在卧室,它是一个开放的衣柜,在洗衣房,它集成了干衣机和洗衣机,在厨房,架子提供了存储能力,集成了冰箱并作为一个厨房酒吧,最后,在阁楼入口大厅,橱柜隐藏了锅炉和电气面板。与可交换程序的房间概念相一致,纵向存储单元也可以被修改,以满足用户的要求,而不改变其最初的概念。事实上,这种灵活性为再次将两个阁楼统一到一个住宅中提供了可能。
Flexible shelving system. The lofts storage needs are solved by an innovative 23 meters long shelving structure made of timber ladders with an in-between distance of 60 centimeters. The rungs of the 41 ladders support the white steel bars and the white lacquered wooden boards, which stabilize the horizontal loads of the system and have different functions depending in the height they are placed. The program of the rooms defines the use of this modular light system; in the living rooms it serves as a large bench and a library, in the bedrooms it is an open wardrobe, in the laundry room it integrates the clothes dryer and washing machine, in the kitchens the shelves provide storage capacity, integrate the fridge and act as a kitchen bar and finally, in the lofts entrance hall the cupboard hides the boilers and electrical panels. In coherence with the concept of rooms with exchangeable programs, the longitudinal storage unit can also be modified to meet the users’ requirements without altering its initial concept. Indeed, this flexibility opens the possibility to unify again the two lofts in a single dwelling.



自然、时间和光线。沿着整个空间的梯子的垂直节奏给它的周边墙面带来了厚度,同时照亮了内部。白色油漆的墙壁和天花板,加上连续的抛光混凝土地板,形成了一个风景的包络,在那里光和时间吸引了微妙的物体阴影。这个空间可以被理解为一连串打孔的白色盒子,使自然光的过渡,给人一种生活在大灯内的感觉,滑动门可以打开或关闭。悬挂的植物,与栗子的结构相协调,形成了一个动态的抽象的树干、树枝和树叶,为创造的氛围带来了生命力。同时,植物的存在改善了室内空气质量,调节了湿度。活的、死的和惰性的材料融合成一个新的家庭环境,其中反映了不同程度的时间上的无常。
Nature, time and light. The vertical rhythm of the ladders along the entire space gives a thickness to its perimeter wall while illuminating the interior. The white painted walls and ceilings, in addition to the continuous polished concrete floor, form the envelope of a scenery where light and time draw the subtle objects shadows. The space could be understood as a succession of perforated white boxes that makes the transition of natural lighting, giving the sensation of living inside large lamps that the sliding doors can turn on or turn off. The hanging plants, in harmony with the chestnut structure, form a dynamic abstraction of trunks, brunches and leaves that brings life to the created atmosphere. At the same time, the presence of plants improves the interior air quality and regulates the humidity. The living, dead and inert material merge into a new domestic environment where the different degrees of temporal impermanence are reflected.






























Architects: Roman Izquierdo Bouldstridge
Area: 109 m²
Year: 2019
Photographs: Adrià Goula
Manufacturers: Cosentino, Acor
Lead Architect: Roman Izquierdo Bouldstridge
City:Barcelona
Country:Spain