圣约翰-保罗二世大楼是澳大利亚天主教大学Banyo校区的一个标志性项目。该建筑的选址和规划以及相关的景观是校园总体规划中的关键因素,以确定校园的核心,并增强校园的认同感。
The Saint John Paul II Building is a landmark project for the Australian Catholic University Banyo campus. The siting and planning of the building and associated landscape was the key element within the campus masterplan to define the campus heart and for the enhancement of campus identity.



所采用的概念框架与强烈的连续性和不变性产生了共鸣,并由以前的庇护十二世省立神学院的遗产和历史所丰富。反映在JPII大楼玻璃外墙上的遗产建筑的形象,提高了社区对该地遗产意义的认识。
The conceptual framework adopted resonated with a strong sense of continuity and constancy, enriched by the heritage and history of the previous Pius XII Provincial Seminary. The image of the heritage building reflected in the glass facade of JPII building heightens the community’s awareness of the significance of the heritage of the site.

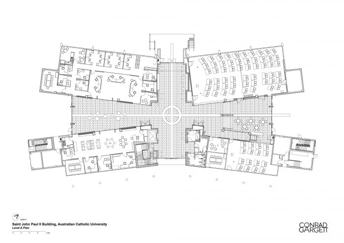
该建筑设计为十字形平面,由三条轴线界定:中央、纵向和垂直。中轴线设定了建筑的对称性,以向现有的遗产建筑致敬。纵轴为建筑提供了组织纪律性。纵轴象征性地将人与天空联系起来。
The building, designed in a cruciform plan, is defined by three axes: central, longitudinal and vertical. The central axis sets the symmetry of the building to pay homage to the existing heritage building. The longitudinal axis provides the organisational discipline for the building. The vertical axis symbolically connects man with the sky.

设计团队和客户的包容性方法导致了社区法庭的建立,这是对其历史的颂扬。社区法庭创造并唤起了 "回廊 "的氛围和 "大法庭 "的正式性。 设计的可渗透性为活动提供了便利,并为该地的活力做出了贡献。一系列的空间被设计为学习创新、研究和学生参与。旅程和兴趣的主题交织在这些空间中,小教堂周围的圣经植物的种植选择推动了这种信息传递。
The inclusive approach the design team and client lead to the creation of a community court, an ode to its historical past. The community court creates and evokes the ambience of the ‘Cloister’ and the formality of the ‘Great Court’. The permeability of the design facilitates activities and contributes to the vitality of the place. A series of spaces were designed for learning innovation, research and student engagement. The themes of journey and interest are interwoven through these spaces and the planting selection of biblical plants in the chapel surrounds drives this messaging.

圣保罗神学院现有的 "前院 "区域成为圣弗朗西斯花园,以提供与圣约翰保罗二世大楼的连接。它还在视觉上包围了社区法庭的西南边缘。这个概念采用了神圣花园的纪律,一个冥想和反思的地方。圣弗朗西斯花园呈正方形,由小路分成四个部分,在交汇点形成一个十字架。四个部分中的一个部分现有的Poinciana树被用来象征知识之树和十字架的木材。其他三个广场上有一个圆形的弗朗西斯玫瑰(白色)花坛,以纪念1941年来到庇护十二世神学院的三位方济各会的修女。其他植物也有寓意,象征着一个包容所有人的圣地。
The existing ‘forecourt’ area of St Paul’s Theological College became the Saint Francis Garden to provide a connection to the Saint John Paul II Building. It also visually encloses the SW edge of the Community Court. The concept adopts the discipline of the Sacred Garden, a locus for meditation and reflection. Saint Francis Garden is square in form, divided into four parts by paths that form a cross at their point of intersection. The existing Poinciana tree, in one of the four quarters is used to symbolise the tree of knowledge and the wood of the cross. The other three squares have a circular bed of the Francis rose (white), to commemorate each of the three Franciscan Sisters who came to the Pius XII Seminary in 1941. Other plants also bear allegorical meanings to symbolise an inclusive sanctuary for all.

该建筑以其对比鲜明的现代语汇,成为校园内学习创新、研究和学生参与的核心。基地的渗透性促进了学生的支持活动,并为这个地方的活力做出了贡献。
The building, with its contrasting contemporary vocabulary, is a centrepiece on campus for learning innovation, research and student engagement. The permeability of the base facilitates student support activities and contributes to the vitality of the place.

社区法庭和圣弗朗西斯花园已成为学习、冥想、灵感和反思的场所。景观创造了一个社区中心,使学生和教职员工能够体验到这个地方的精神和历史。总的来说,这个景观展示了地方的重要性和精致的连接性。
The community court and Saint Francis garden have become a locus for learning, meditation, inspiration and reflection. The landscape has created a community hub, allowing students and staff to experience the spirituality and history of the site. Overall the landscape demonstrates the importance of place and refined connectivity.










Architects: Conrad Gargett
Area : 5400 m²
Year : 2016
Manufacturers : ZC Technical
City:BANYO
Country:Australia