冠状病毒大流行的空间结构是以位于空间中心的光之花园为标志的,这个空间充满了柔和的光线和新鲜的空气,创造了一种安全感,同时也不拒绝人们的聚集,培养了一个社区。
The spatial structure of the coronavirus pandemic was created with the Light Garden at the center of the space as a symbol of a space filled with soft light and fresh air that creates a sense of security, without denying the gathering of people and fostering a community.




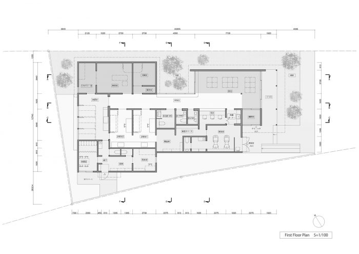
候诊室由木头制成,两面朝向花园,创造了一个具有自然感的舒适空间,而在检查室、治疗室和手术室,我们试图通过在空间中使用色彩来创造一个考虑空间特点的空间。
The waiting room is made of wood and faces the garden on two sides, creating a cozy space with a sense of nature, while in the examination, treatment, and operating rooms, we tried to create a space that considers the characteristics of the space by using color in the space.


该建筑是由六个具有不同功能特点的体量(房间)和三个空隙(花园)组合而成的。这样创造出来的建筑是郊区城镇景观的一个节点,它似乎是以一种有些不连贯和混乱的方式形成的,我相信它将被城镇所接受,因为这样的实体可以肯定长期以来所培育的城镇景观。
The architecture is composed of a combination of six volumes (rooms) with different functional characteristics and three voids (gardens). The architecture thus created is a nodal point to the suburban townscape, which seems to have been formed in a somewhat disjointed and chaotic manner, and I believe that it will be accepted by the town as such an entity that can affirm the townscape that has been nurtured over a long period of time.





















Architects: CLOUD ARCHITECTS
Area: 214 m²
Year: 2022
Photographs:Takumi Ota
Manufacturers: Aica, KMEW, LIXIL , Sangetsu, Toto
Lead Architects: Masato Kawakami
Structural Engineering: Route Structure Design Office
Design Architect: Masato Kawakami, Takuya Uemura
Program / Use / Building Function: Urology Clinic and barber shop
Country: Japan