该项目是对日本福冈市一套有30年历史的公寓进行平面改造,是我和妻子以及两个孩子的家。通过使用可移动的书柜作为卧室的隔断,我设计了一个空间随着家庭形式的变化而扩展和收缩的房子。在战后的日本,大多数单位都是为父母和孩子的核心家庭设计的,客厅、餐厅、父母的房间、孩子的房间、厨房和浴室被挤在一个大约80平方米的小矩形里。你在这里看到的是家庭形式和平面图之间的一对一对应关系。
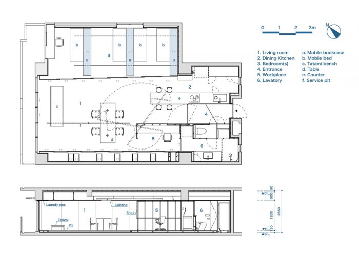
The project is a flat renovation of a 30-year-old apartment in Fukuoka City, Japan, a home for myself, my wife and our two children. By using movable bookcases as partitions of the bedrooms, I designed a house where the space expands and contracts as the form of the family changes. In postwar Japan, Most of the flat units were designed for nuclear families of a parent and children, with the living room, dining room, parents' room, kid room, kitchen, and bathroom squeezed into a small rectangle of around 80 square meters. What you see here is a one-to-one correspondence between the family form and the floor plan.






然而,家庭的成长和变化是每时每刻的。现在还小的孩子,在不远的将来会确立自己的地位并离开这个家。孩子们离开后,父母享受空间是合理的,但传统公寓中零散的房间太过拥挤,无法再利用,通常最终成为储藏室,堆满了尘封的纪念品的纸箱。在这种背景下,我们的想法是创造一个可以随着家庭的变化而扩展和收缩房间的房子。
However, the family grows and changes from moment to moment. Children, who are small now, will establish themselves and leave the house in the not too distant future. It would be reasonable for parents to enjoy the space after children leave, but the fragmented rooms in a conventional flat are too cramped to reuse and usually ends up as storage, filled with dusty cardboard boxes of mementos. Against this backdrop, the idea was to create a house where the rooms can expand and contract as the family changes.



卧室由三个可移动的书柜分割,它们可以分散开来,形成四个小凹室,也可以聚集在一起,形成一个大房间。每个房间的空间都可以自由分配,通过打开面向客厅的聚碳酸酯推拉门,整个房子可以变成一个大空间。
The bedrooms are divided by three movable bookcases, which can be scattered to create four small alcoves, or gathered in one place to create one large room. The space of each room can be freely allocated, and by opening the polycarbonate sliding doors facing the living room, the entire house can be made into one large space.


对于材料和细节,我们追求的是实用性和客观性。在城市中发现的日常材料被重新诠释,成为建筑元素。可移动的书柜/隔板是通过修改图书馆使用的现成产品。客厅和卧室之间的推拉门是厚厚的聚碳酸酯板,其导轨由波纹金属制成;这是利用城市中的材料对日本纸屏的诠释。
For the materials and details, we pursued practicality and objectivity. Everyday materials found in the city are reinterpreted and become architectural elements. The movable bookcases/partitions are by modifying readymade products used in libraries. The sliding doors between the living room and the bedrooms are thick polycarbonate panels with rails made of corrugated metal; an interpretation of Japanese paper screens using materials found in the city.

为了提高热舒适度,增加了保温层以覆盖整个单元,包括相邻单元的边界。在一个住宅区里,对邻近单元的热传递是不容忽视的。天花板上有背着铝箔的保温板,这种材料通常用于工厂,可以反射从窗户进来的光线,并将其引向房间深处。窗边的长凳是一件小家具,灵感来自于日本房间的实用性。它是一个折叠衣服的地方,也是一个有趣的儿童游乐场。一个悬臂式的旋转灯照亮了餐台或大型工作桌。像榻榻米长椅一样,它的结构是由不锈钢方管制成的,由于内部有一坨铅作为配重,所以可以保持平衡。
To enhance the thermal comfort, insulation was added to cover the entire unit, including the boundaries of neighboring units: In a housing complex, heat transfer to the neighboring unit cannot be overlooked. The ceiling is lined with insulation panels backed with aluminum foil, a material normally used in a factory, which reflects the light coming through the windows and leads it deep into the room. The bench by the window is a small piece of furniture inspired by the practicality of a Japanese room. It is a place to fold clothes and a fun playground for children. A cantilevered rotating light illuminates the dining counter or the large working table. Like the tatami bench, its structure is made from stainless steel square pipe, balancing thanks to a lump of lead inside as a counterweight.







































Architects: ICADA, Masaaki Iwamoto Laboratory
Area : 86 m²
Year : 2021
Photographs :Yurika Kono, Yashiro Photo Office
Manufacturers : ModuleX
Lead Architect : Masaaki Iwamoto
Energy Consultants : Tokyo University of Science
Structure : XYZ structure
Contractor : ExWorks
Energy Consultant : Kozo Takase, Tokyo University of Science
Lighting Design : ModuleX
City : Fukuoka
Country : Japan