业主是一对70多岁的夫妇,购买这个房子是为了开始他们的生活。他们在买房后就订婚了,并在房子在建的时候在里面结婚。他们喜欢烹饪和收藏艺术品,所以白墙和黑钢的色调既是盐和胡椒的隐喻,也是装裱艺术品的背景。流行的颜色突出了他们艺术收藏中的颜色。
The Owners, a couple in their mid-70's, purchased this home to start their lives together. They got engaged after they bought the house, and got married in the house while it was under construction. They love to cook and collect art, so the palette of white walls and black steel is both a metaphor for salt and pepper, as well as a setting for framing their artwork. Pops of color highlight the colors in their art collection.



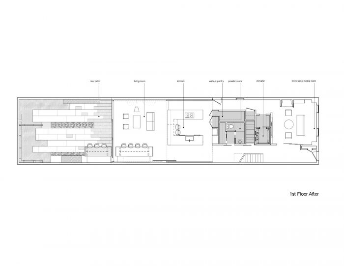
房子是围绕着一个包含服务空间的中央核心组织的,这创造了一个沿周边的无缝流动,主要的空间都是朝向前面和后面。现有的房子被剥离到其基本元素:砖墙、结构框架构件和户外空间。后面的二楼被拆除,以创造一个面向后花园的两层楼的客厅/餐厅。钢结构被插入,以允许后方有一整面玻璃墙。厨房位于房子的中心,面向花园,室内外的餐桌和长椅(都是建筑师定制设计的)创造了一个强大的烹饪、饮食和享受户外空间的相互依赖关系。一个科腾钢喷泉提供了平静的水声。
The house is organized around a central core containing service spaces, which creates a seamless flow along the perimeter, with major spaces facing front and back. The existing house was stripped down to its basic elements: brick walls, structural framing members, and outdoor space. The rear second floor was removed to create a two-story living/dining room facing the rear garden. Steel structure was inserted to allow for a full glass wall to the rear. The kitchen sits at the center of the house facing the garden, and an indoor-outdoor dining table with bench (both custom-designed by the architect) create a strong interdependence of cooking, eating, and enjoying the outdoor space. A Corten steel fountain provides the calming sound of water.



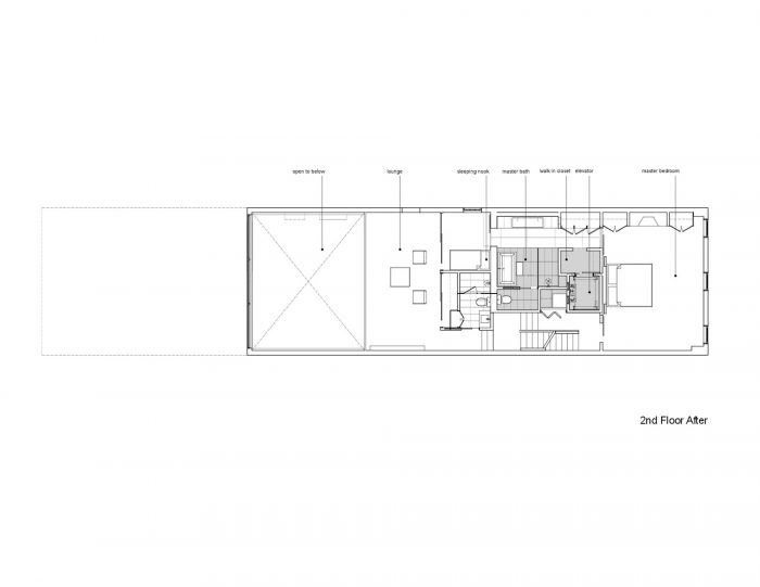
老有所养是一个重要的设计因素。电梯隐藏在中央核心区内,所有的流通路线都足够宽,可供轮椅使用。主人的浴室有定制的不锈钢扶手,并有一个开放的淋浴间供轮椅进入。
Aging in place was an important design factor. An elevator is concealed within the central core, and all circulation routes are wide enough for a wheelchair. The master bathroom has custom stainless grab bars and an open shower for roll-in access.






















Architects: Kube Architecture
Area: 2500 ft²
Year: 2015
Photographs: Greg Powers
Manufacturers: Hansgrohe, Bedco Mobility, Illuminations, Inc., Metal Specialties
City:WASHINGTON D. C.
Country:United States