Salva46是我们对灵活共存的调查。探索21世纪的游牧生活方式。在这里,运动和流动性与隐私和稳定性形成对比。 这是一个关于共享微型生活的实验--两个同样平衡的空间由一个中央公共区域支撑着。在一个循规蹈矩的世界里,这是一场对立的游戏。
Salva46 is our investigation into flexible co-existence.Exploring the nomadic lifestyle of the 21st century. Where movement and fluidity contrast with privacy and stability. An experiment in shared micro living - two equally balanced spaces pivoted by a central communal area. A play of opposites in a world of conformists.



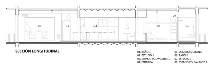
规格。两个独立的单元,每个单元有四个内部区域。着重于睡眠、工作、放松和卫生的基本要求。为生理和精神健康提供了一个平衡点。建筑物的每个立面都有一个单元,共享中央公共空间的通道,其中包括厨房、餐厅和社交功能。
The specifications: Two independent units each housing four internal zones. Focusing on the basic requirements of Sleep, Work, Relaxation & Hygiene. A balanced equilibrium for physiological and mental well-being. One unit in each façade of the building, sharing access to the central common space which contains the kitchen, dining and social functions.

前提是:隐私的平衡。在白天,每个居民都可以封闭和保护他们的空间,而不阻挡自然光的穿越。而在晚上,双方都可以通过滑动实心门来隔离和保护单元。 3.40米的高度将能量输送到上层,两个多功能夹层悬浮在床的上方。将自然光引入淋浴间,也许还有从上面看过来的奇怪的目光。
The Premise: the balance of privacy. During the day each inhabitant can enclose and secure their space without blocking the traverse of natural light. While during the night, both can isolate and cocoon the units by sliding the solid doors. The 3.40m height funnels energy to the upper levels with two multipurpose mezzanines levitating over the beds. Channeling natural light into the shower and perhaps the odd wayward glance from above.

生态学、修复和升级再造都是主题的核心,恢复和替换了原有的液压马赛克瓷砖。过去在锡切斯附近生活的厨房被改造和重新使用,补充了马赛克地毯和液压围栏的丰富拼接。
Ecology, restoration and up-cycling are all central to the theme, with the recovery and replacement of the original hydraulic mosaic tiles. The kitchen, which had a past life near Sitges, was adapted and re-used, complementing the rich patchwork of mosaic carpet and hydraulic perimeters.

工业镶木地板简洁的现代线条与19世纪裸露的砖块的裂缝形成对比。白色的氧化层将时间凝固,向上照射的光亮突出了建筑物的缺陷。 轻松的家具作品完成了这个实验,结合了木材、石头和金属结构元素的平衡。没有人会说我们没有享受这段旅程……我们希望租户们也能享受这段旅程!
The clean modern lines of industrial parquet contrasts with the cracks and crevasses of the 19th century exposed brickwork. Frozen in time by a white oxidation, with the up-lit luminosity highlighting the buildings imperfections. Relaxed furniture pieces complete the experiment, combining a balance of woods, stone & metal structural elements. No one will say we didn't enjoy the journey... we hope the tenants do too!













Architects: MIEL Arquitectos, Studio P10
Area : 65 m²
Year : 2014
Photographs :Asier Rua
Cost : 1.230 €/m2
City : Barcelona
Country : Spain