Samrudhhi是一个坐落在苏拉特市最近开发的郊区住宅区的房子。Samruddhi是古吉拉特语,意思是繁荣,是一个三代同堂的家庭的房子,他们都倾向于拥有一个有 "家 "的感觉。设计理念试图创造性地解决一个功能性和可持续发展的住所的非常简单而基本的需求。该设计通过使用庭院、自然光和可渗透的外墙作为关键组成部分,理解并回应气候和环境的最佳精神,培养了可持续住宅的理念。
Samrudhhi is a House nested in Surat city’s lately developed suburban residential neighborhood. Samruddhi, a Gujarati word meaning prosperity, is a house for a family of three prospering generations with a mutual inclination towards having a ‘Home’ that feels ‘Homely’. Design ideas attempted to creatively address very simple yet essential needs of a functional and sustainable abode. The design nurtures the idea of a sustainable dwelling by understanding and responding to the climate and context in the best of its spirit by the use of Courtyard, Natural light, and a permeable facade as key components.





由于这是一块190平方米的小块土地,需要容纳大约10个不同的空间功能,建筑的占地面积必须最大化。虽然地块大小的限制清楚地表明,平房将上升到四层,但要保留其简陋的规模和阻止低层公寓的外观是一个挑战。更重要的是,要在住宅中整合一个双层高的庭院,作为自然光和空气的来源,并使其成为一个有凝聚力的家庭空间,这是一个相当大的挑战。根据客户的要求,所有的服务设施都必须放置在正面(入口),最终使建筑师希望实现的视觉和体验的联系变得复杂。
Since it’s a small piece of land of 190 Sq.Mt. with requirements spanning to accommodate around 10 different spatial functions, the building footprint had to be maximized. While the limitation of plot size clearly indicated that the bungalow would rise up to four stories, it was a challenge to retain its humble scale and discouraging an outlook of a low-rise apartment. All the more, it was quite challenging to integrate a double-height courtyard in the residence, as a source of Natural light and air, along with it being a cohesive family space. Vastu compliance being the client’s primary insistence, all the services had to be placed on the front (entry) side, eventually, complicating the visual and experiential connections that an architect desires to achieve.



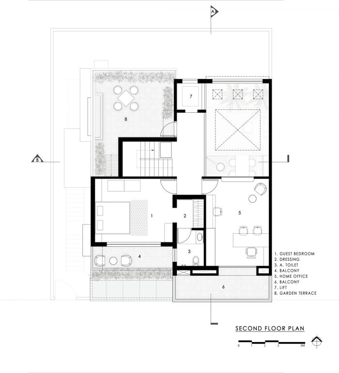
空间配置围绕着将功能空间放在庭院周围的想法,旨在将它们的物理和视觉联系延伸到三层楼。该安排也优先考虑隐私问题,在庭院周围安排私人和半私人空间。开阔的庭院被战略性地安置在东北侧,连接起居空间、餐饮空间、较高一层的Pooja空间以及高层的学习区和家庭办公室。考虑到 "Vastushastra "的规范,厨房和起居室被放置在平房的南侧,有一个功利性活动的缓冲空间。这个创造出来的缓冲区被一个砖砌屏风所包围,提供了所需的隐私、通风以及南部外墙的被动冷却。
The spatial configuration revolves around the idea of placing functional spaces around the Courtyard aiming to extend their physical and visual association across three stories. The arrangement also prioritizes privacy as a concern in arranging private and semi-private spaces around the court The Open-to-sky courtyard is strategically positioned on the North-East side connecting the Living space, Dining space, Pooja space on the Higher Ground Floor and study area & home office on the upper floors. Considering norms of ‘Vastushastra’, Kitchen and living room are placed on the Southern side of the bungalow with a buffer space with utilitarian activities. This created buffer is enveloped with a Brick Screen offering desired privacy, ventilation as well as passive cooling for the Southern facade.



向外开放并将树带入屋内,标志着将自然作为生活体验不可缺少的一部分的设计意图。一个非常简单的材料调色板,即砖和裸露的混凝土,以其最真实的精神来解决这个简陋住所的结构、气候和审美需求。尽管是一个传统的调色板,但通过探索形式和表面的变化,使它们成为内部和外部的美学画布,发挥了作用。一块半的佛兰芒砖就是这样一个有意识的决定,通过其空腔和厚度实现被动冷却。
Opening up to outside and bringing the tree inside the house signifies the design intent of integrating nature as an indispensable part of the living experience. A very simplistic material palette of Brick and exposed Concrete is explored in the truest of its spirit to address the structural, climatic as well as aesthetic needs of this humble abode. Albeit a conventional palate, it is played around by exploring variations in forms and surfaces such that they become an aesthetical canvas for inside as well as outside. One and a half brick Flemish bond was one such conscious decision to achieve passive cooling through its cavity as well as thickness.

印度白石地板的使用,由于其纹理和颜色,给人以传统和现代的感觉。砖是立面的重要组成部分,在塑造一些室内元素,如门把手和百叶窗方面也发挥了重要作用。院子里巨大的通风的北面立面有一个解决的机械系统,使其可以有效地操作。这个带有玻璃多扇百叶的大窗系统是通过具有锥齿轮和叉形旋转开启器技术的手动齿轮操作的。
The use of Indian white stone flooring gives a traditional as we as modern feel owing to its textures and colors. Brick being such an important part of elevation also plays an important role in shaping a number of interior elements such as door handles and louvers. The huge ventilated Northern facade of the courtyard has a resolved mechanical system to make it efficiently operable. This large window system with glass multiple louvers is operated through hand gear having a bevel gear and fork-swivel opener technique.













Architects: AANGAN Architects
Area: 430 m²
Year: 2021
Photographs: Pratikruti09
Manufacturers: Technal, Kohler, Legrand, AltraTech Cement, Armano Tiles, Astral Pipes, Futura Lights, Jay Jalaram Brick Works, Mitsubishi, New Age Lifts, Rajveer Corporation, Solarium Green Energy LLP, TechnoFab, Telesia Windows, Yale Locks
Lead Architects: Vishal Shah, Vishal Desai
Landscape Architect: AANGAN Architects, Niti Shah
Contractor: Akshat Enterprise
Structure Engineers: Sai Consultants
Project Architect:Payal Lukhi
Project Engineer:Jigar Ariwala
Drawing Incharge:Ishita Bardolia
Textile Designer:Filigree Fabriculture
Furniture Manufactures:Conifur Furniture
Architects:AANGAN Architects
City:Surat
Country:India