河边的合奏。
Sanba和Stad "项目包括一个位于安特卫普斯海尔德河弯道上的独特位置的双联体。它包括一个历史悠久的仓库的改造和一个豪华优雅的住宅楼的新建工程。
An ensemble by the river.
The ‘Sanba and Stad’ project comprises a dyad at an exclusive location in the bend of the river Scheldt in Antwerp. It includes the renovation of an historic warehouse and the new construction of a lavish and elegant residential building.



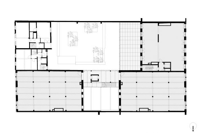
Sanba是一个模型类型的仓库,贯穿整个城市街区,在Rijnkaai和Braziliëstraat有两个相同的外墙。坚固的、混凝土结构的深层地板反映在中央庭院周围,有真实的楼梯和通道,可以进入建筑。
Sanba is a model type warehouse which runs throughout the city block and has 2 identical facades on the Rijnkaai and in the Braziliëstraat. The deep floors with robust, concrete structures are reflected around the central courtyard with the authentic stairs and passageway which give access to the building.

建筑的这一部分将被翻新,最大限度地保留仓库的原始特征。在河边增加了一个两层楼的顶楼。这个顶楼--屋顶别墅--凭借其自身的雕塑特性,其铜制屋顶与相邻的仓库形成对比,同时 "盖住 "了仓库。
This part of the building is to be renovated with maximum retention of the warehouse’s original identity. A two-storey penthouse has been added to the riverside. This penthouse – the roof villa – is leant form by virtue of its own sculptural identity whose copper roof creates contrast with while “capping off” the adjacent warehouse.


Stad是一座位于Rijnkaai一侧的新建公寓楼。该建筑的特点是其15米长的外墙,与斯海尔德河及其壮丽的弯道有一种开放的关系。内部区域是与Sanba共享的。每层都有一个宽敞的住宅单元,面向建筑的两边。除了一根柱子外,住宅完全没有结构,允许完全灵活地根据个人要求定制空间。
Stad is a new-build apartment building located on the Rijnkaai side. The building is characterised by its 15m long façade which has an open relation to the Scheldt and its magnificent bend. The inner area is shared with Sanba. Each layer houses a spacious residential unit oriented to both sides of the building. With the exception of a single column, the homes are entirely structure-less, allowing for total flexibility in tailoring the space to individual requirements.

特色的立面结构在特殊的周围环境和与生活息息相关的亲密关系之间寻求平衡。外墙表面的微妙变化使整个建筑中每个住宅的规模变得亲密。就像嫁接在这些变化上一样,随着高度的增加,窗户的开口变得越来越大:从第一层的亲密生活空间到最高层与河流的更直接关系。
The characteristic façade structure seeks a balance between the special surrounds and an intimacy that goes hand in hand with living. Subtle shifts in the façade surface intimate the scale of each residence in the building as a whole. As if grafted upon these shifts, the window openings become more and more generous as the height increases: from intimate living spaces on the first floor to a more direct relationship with the river on the highest floors.










Architects: HUB
Year : 2012
Photographs :Ilse Liekens
Manufacturers : AutoDesk, Reynaers Aluminium, TECU®
Lead Architects : HUB
Design Team : Bureau Bouwtechniek, Abt, Tecon Groep
Clients : Maurice Verbaet, Rijnkaai bvba
Mixed Program : 3800.0 m²
Underground Parking : 1250.0 m²
City : Antwerpen
Country : Belgium